近一周时间内,关于北京共有产权房和公租房的消息可真不少,小编已经应接不暇了,闲话少说,先上提纲~
1.顺义共有产权房6月29日申请,均价20000元/平
2.通州、平谷共有产权房规划设计出炉
3.通州5个公租房项目6月27日启动网上登记
4.朝阳区两公租房项目配租

请看详细信息
1.顺义共有产权房6月29日申请,均价20000元/平
北京首开中晟置业有限责任公司开发建设的首开•晟品景园二期项目立项为限价商品住房,于2017年9月27日由北京市燕顺保障性住房投资有限公司收购,转化为共有产权住房。现该项目开放统一申购,登记时间为2018年6月29日上午 10:00至2018年7月13日下午17:00。
项目基本信息:
项目名称:首开•晟品景园
企业名称:北京首开中晟置业有限责任公司
销售均价:20000元/平方米
产权比:5:5
项目位置:项目位于顺义新城仁和镇,四至为:东至顺泰路西边界,西至顺康路东边界,南至石园大街道路红线北边界,北至顺义区自来水公司第二水厂、大龙公司自建限价房项目边界。
套数:300套
单套面积及户型为:约63平方米一居,约80—83平方米两居
建筑面积:地上约12.47万平方米,其中1号和9号楼为共有产权住房,共有产权房地上建筑面积约2.45万平方米,毛坯交房,套型主要为1号楼房源180套:一、二、三单元(两梯四户),户型为约81—83平方米二居。9号楼房源120套:一、二单元(两梯四户),户型为约63平米一居共2套、80—83平方米两居118套。
网申地址:http://zzfws.bjjs.gov.cn
更多选房注意事项请戳顺义区住建委网站:http://jianwei.bjshy.gov.cn/NewsDetail.aspx?newsid=2236
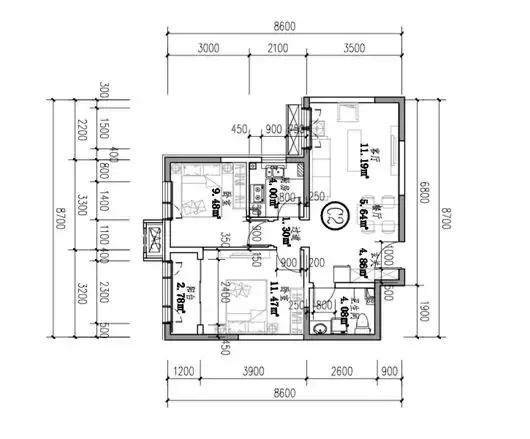
户型图:
C1户型(约81平两居)

C2户型(约83平两居)

2.通州、平谷共有产权房规划设计出炉
通州共有产权房:
根据佳爷房谈的统计通州到目前为止共有4宗共有产权房。但均无具体消息,而近期,通州首开新奥联合体项目的相应规划出炉,其户型等重要信息也首次流出。
通州4宗共有产权房地块:

首开新奥联合体地块信息:
2017年9月通州新城0204街区TZ00-0024-0006、0007地块被首开+新奥联合体以24亿元拿下。
地块位置:该地块位于通州宋庄,分为东西两个地块,全部建设共有产权房,全部为南北朝向的板楼设计
地块均价:均价21000元/平
产权比、容积率等信息暂无
房源套数:1680套
车位配比:1:1
主力户型:90平米以下,占71.23%
得房率:89平三居最高在82%左右
户型图:
89-120平:

89平3居:

平谷共有产权房:
平谷金科共有产权房项目规划设计已经出炉。
地块信息:
2018年2月,金科9.1亿元拿下了平谷兴谷街道PG-0007-6004、6008地块。
地块位置:项目位于平谷区兴谷街道,分为两个地块
项目均价:15500元/㎡
产权比、容积率等信息暂无
建设用地面积:51499.675㎡
总建筑面积:179098.996㎡,其中规划地上建筑面积约123649㎡,住宅面积118434.59㎡,设有2400㎡幼儿园配套,地下总建筑面积55450㎡
规划楼栋:高层住宅9栋,小高层住宅2栋
总套数:1284套
主力户型:约87㎡二居963套、约113㎡三居321套
装修情况:项目为全装修交房
户型图:
87平2居:


113平3居:

3.通州5个公租房项目6月27日启动网上登记
台湖银河湾、燕保•马驹桥家园公租房、西集运潮馨苑公租房、台湖东亚家园、永顺镇商务园C2公租房项目,以上五个项目的房源将面向通州区保障性住房轮候家庭,采取“快速配租”的方式进行配租,有关事宜公告如下:(更多详细信息请戳通州区住建委网站:http://jw.bjtzh.gov.cn/n12644385/n12644513/c16406419/content.html)
登记时间:
2018年6月27日上午10:00-7月3日下午5:00(共7天)
登记结果仅针对本次配租工作,公布房源配租完成后,登记结果自动失效。
本次配租登记工作由申请家庭通过网络自行登记的方式进行。申请家庭自行登录北京市保障性住房建设投资中心网站(http://www.bphc.com.cn/),点击“业务办理”—“快速配租登记”按钮进入登记系统界面,并按照相应提示进行操作。
项目详情:
燕保•马驹桥家园公租房项目:
该项目位于通州区马驹桥镇兴贸二街兴贸一区。本次可配租房源共计336套,零居室72套,建筑面积约30.56-37.21平方米;一居室162套,建筑面积约42.41-43.02平方米;两居室102套,建筑面积约58.46-59.76平方米。租金标准为24元/建筑平方米•月。
户型图如下:


台湖银河湾公租房项目:
该项目位于通州区台湖镇海盛四街14号院。本次可配租房源共计810套,零居室581套,建筑面积约44.72-45.44平方米;两居室229套,建筑面积约55.92-63.78平方米。租金标准为31元/建筑平方米•月。
户型图如下:


西集镇中心区运潮馨苑公租房项目:
该项目位于通州区西集镇仪府路12号院,本次可配租房源共计65套。其中,零居室7套,建筑面积约47平方米;一居室58套,建筑面积约52平方米。租金标准预估为16元/建筑平方米•月。
户型图如下:

台湖东亚家园:该项目位于通州区湖亦路。本次可配租房源共计48套,小套型(零居)23套,建筑面积约为30.37平方米;中套型(一居)16套,建筑面积约为40.50平方米;大套型(二居)9套,建筑面积约为52.5平方米,租金标准为17.6元/建筑平方米•月。(该项目具体户型图以选房现场为准)
永顺镇商务园C2
该项目位于通州区安北一路3号院。本次可配租房源共计861套,小套型(零居)587套;中套型(一居)76套;大套型(二居)198套,租金标准为28元/建筑平方米•月。(该项目具体房源信息以选房现场为准)
配租过程中如有腾退等原因产生的房源可一并纳入上述配租房源。
上述公租房项目的租金包含物业费,不包含供暖费、水费、电费、燃气费、电话费、上网费、有线电视初装及收视费等。
4.朝阳区两公租房项目配租
根据朝阳区房管局消息,位于朝阳高井和西甸路6号院的两公租房项目分别于6月26人和6月27日起面向朝阳区保障性住房轮候家庭配租。两项目房源共计1343套,从登记数来看,属于“大规模了”,而房源所处于的位置也是极好的。
高井公共租赁住房项目:
朝阳区高井公共租赁住房项目,现面向朝阳区公租房轮候家庭公开配租,时间为 2018年6月26日10:00--7月2日17:00。
基本信息:
朝阳区高井公共租赁住房项目位于北京朝阳区朝阳北路82号院。
项目房源共计770套,套型主要为小套型553套,中套型111套,大套型106套,公告中没有告知具体面积,租金均价约65元/平方米(现租金标准为预估租金,最终租金标准以签订的租赁合同为准)。
登记网站:http://www.bphc.com.cn/(北京市保障性住房建设投资中心网站)
户型图:

朝阳区瑞湾家园公共租赁住房项目:
朝阳区瑞湾家园公共租赁住房项目剩余房源,面向取得公共租赁住房配租资格,且尚未配租配售保障性住房的朝阳区备案家庭,采取“快速配租”方式进行配租,时间为 2018年6月27日10:00--2018年7月2日17:00。
项目基本信息:
瑞湾家园公共租赁住房项目位于北京市朝阳区西甸路6号院。
项目配租房源,房源共计573套,均为大套型,面积为55-57平米。在配租过程中若该项目有新腾退的大套型房源,将纳入到上述配租房源中,租金标准为39元/平方米。
登记网站:http://www.bphc.com.cn/(北京市保障性住房建设投资中心网站)
户型图:

