这个案子是福建的别墅庭院,整体为新中式风格,建筑整体造型端庄典雅,院子也非常规整。最有特色的是院子中有温泉接口,这是绝大多数庭院所没有的。

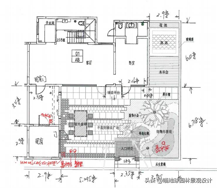
这是业主之前设计的平面图,整体空间几乎没有布局,只是在铺装上做了太多的花样!这也是好多初级设计师的通病!







业主的需求相对比较简单。
1.水景(养鱼)
2.休憩就餐空间
3.温泉泡池(考虑隐私性)
针对这个案子,需要考虑的主要有几点:
1.入口景观空间的仪式感。2.客厅、老人房及西侧茶室看出来的景观效果。3.就餐区的空间结构处理。4.温泉泡池的隐私性处理。5.整体庭院空间的参差设计。6.庭院水景开挖后的土方平衡。7.整体功能区合理的划分。8.交通系统的设置及步道系统的多样性及趣味性。
设计完成图

这是设计完的平面规划设计图,整体设计完全按照设计需求而定,注重一步一景的空间景观,开合有度,步道与功能空间无缝衔接。这里就不详细讲解如何推敲空间了,感兴趣的可以去看我的讲解视频。

这是我录制讲解视频的时候绘制的平面图,这样就能看明白了吧[呲牙],好多网友看不懂CAD图!
效果图











希望对您有用[呲牙]