前言
如今,铝板大量得取代了铝塑板幕墙,但任然有不少项目会应用到铝塑板,本文介绍了铝塑板幕墙工程中常见的质量问题分析及安装工艺、维护建议等



性能
超强剥离度
铝塑板采用了新工艺,将铝塑复合板最关键的技术指标-剥离强度,提高到了极佳状态,使铝塑复合板的平整度、耐候性方面的性能都相应提高。
材质轻易加工
铝塑板,每平方米的重量仅在3.5-5.5公斤左右,故可减轻震灾所造成的危害,且易于搬运,其优越的施工性只需简单的木工工具即可完成切割、裁剪、刨边、弯曲成弧形、直角的各种造形,可配合设计人员,做出各种的变化,安装简便、快捷减少了施工成本。
防火性能卓越
铝塑板中间是阻燃的物质PE塑料芯材,两面是极难燃烧的铝层。因此,是一种安全防火材料,符合建筑法规的耐火需要。
耐冲击性
耐冲击性强、韧性高、弯曲不损面漆,抗冲击力强,在风沙较大的地区也不会出现因风沙造成的破损。
超耐候性
由于采用了以KYNAR-500为基料的PVDF的氟碳漆、耐候性方面都有独特的优势,无论在炎热的阳光下或严寒的风雪中都无损于漂亮的外观,可达20年不褪色。
涂层均匀 彩色多样
经过化成处理及汉高皮膜技术的应用,使油漆与铝塑板间的附着力均匀一致,颜色多样,让您选择空间更大,尽显您的个性化。
易保养
铝塑板,在耐污染方面有了明显的提高。我国的城市污染较为严重,使用几年后需要保养和清理,由于自洁性好,只需用中性的清洗剂和清水即可,清洗后使板材永久如新。
易加工
铝塑板是易于加工、成型的好材料。更是为追求效率、争取时间的优良产品,它能缩短工期、降低成本。铝塑板可以切割、裁切、开槽、带锯、钻孔、加工埋头,也可以冷弯、冷折、冷轧,还可以铆接、螺丝连接或胶合粘接等。
- 耐候性佳、强度高、易保养。
- 施工便捷、工期短。
- 优良的加工性、断热性、隔音性和绝佳的防火性能。
- 可塑性好、耐撞击、可减轻建筑物负荷,防震性佳。
- 平整性好,轻而坚。
- 可供选择颜色多。
- 加工机具简单、可现场加工。
- 花型和图案可以定制制作。

铝塑板幕墙工程常见质量问题
1.铝塑板的变色、脱色
铝塑板产生变色、脱色,主要是由于板材选用不当造成的。铝塑板分为室内用板和室外用板,两种板材的表面涂层不同,决定了其适用的不同场合。室内所用的板材,其表面一般喷涂树脂涂层,这种涂层适应不了室外恶劣的自然环境,如果用在了室外,自然会加速其老化过程,引起了变色脱色现象。室外铝塑板的表面涂层一般选用抗老化、抗紫外线能力较强的氟碳树脂涂层,这种板材的价格昂贵。有些施工单位欺骗业主,以室内用的板材冒充抗老化、抗腐蚀的优质氟碳板材,榨取不合理的利润,因而造成工程上所用的铝板出现严重的变色、脱色现象。
2.铝塑板的开胶、脱落
铝塑板开胶、脱落,主要是由于黏合剂选用不当的。作为室外铝塑板工程的理想黏合剂,硅酮胶有着得天独厚的优越条件。以前,我国的硅酮胶主要依赖进口,其身价令很多人望而却步,只有那些高层建筑上身价不菲的幕墙工程才敢于问津。现在,我国的郑州、广东、杭州等地都先后投产了不同品牌的硅酮胶,致使价格大跌。现在,在购买铝塑板的时候,销售商会推荐那种专用的快干胶。这种胶在室内使用尚可,用在气候变化无常的室外,便出现板材开胶、脱胶的现象。
3.铝塑板表面的变形、起鼓
造成铝塑板表面变形、起鼓的原因是多方面的。以前在施工中,出现过这种质量问题,我们曾认为是板材本身的质量原因;后来,经过大家的集中分析才现,主要问题出在粘贴铝塑板的基层板材上,其次才是铝塑板本身的质量问题。经销商经常给我们提供铝塑板的施工工艺,其推荐使用的基层材料主要是高密度板、木工板之类。其实,这类材料在室外使用时,其使用寿命是很脆弱的,经过风吹、日晒、雨淋后,必然会产生变形。既然基层材料都变形了,那么作为面层的铝塑板那有不变形之理?可见,理想的室外基层材料应经过防锈处理后角钢、方钢管结成骨架为佳。如果条件允许的话,采用铝型材作为骨架就更为理想了。这类金属材料制作的骨架,其成本并不比木龙骨、高密板高出许多,可确实保证了工程质量。
4.铝塑板胶缝整齐
铝塑板在装修建筑物表面时,板块之间一般都有一定宽度的缝隙。为了美观的需要,一般都要在缝隙中充填黑色的密封胶。在打胶时有些施工人员为了省时的需要,不用纸胶带来保证打胶的整齐、规矩,而是利用铝塑板表面的保护膜作为替代品。由于铝塑板在切割时,保护膜会产生不同程度的撕裂情况,所以用它来做保护胶带的替代品,不可能把胶缝收拾得整整齐齐。
分类
铝塑板品种比较多,通常按用途、产品功能和表面装饰效果进行分类。
按用途来分类
a. 建筑幕墙用铝塑板
其上、下铝板的最小厚度不小于0.50mm,总厚度应不小于4mm。铝材材质应符合GB/T 3880的要求,一般要采用3000、5000等系列的铝合金板材,涂层应采用氟碳树脂涂层。
b. 外墙装饰与广告用铝塑板
上、下铝板采用厚度不小于0.20mm的防锈铝,总厚度应不小于4mm。涂层一般采用氟碳涂层或聚酯涂层。
c. 室内用铝塑板
上、下铝板一般采用厚度为0.20mm,最小厚度不小于0.10mm的铝板,总厚度一般为3mm。涂层采用聚酯涂层或丙烯酸涂层。
按产品功能分类
a. 防火板
选用阻燃芯材,产品燃烧性能达到难燃级(B1级)或不燃级(*级A**);同时其他性能指标也须符合铝塑板的技术指标要求。
b. 抗菌防霉铝塑板
将具有抗菌、杀菌作用的涂料涂覆在铝塑板上,使其具有控制微生物活动繁殖和最终杀灭细菌的作用。
c. 抗静电铝塑板
抗静电铝塑板采用抗静电涂料涂覆铝塑板,表面电阻率在109Ω 以下,比普通铝塑板表面电阻率小,因此不易产生静电,空气中尘埃也不易附着在其表面。
按表面装饰效果来分类
a. 涂层装饰铝塑板
在铝板表面涂覆各种装饰性涂层。普遍采用的有氟碳、聚酯、丙烯酸涂层,主要包括金属色、素色、珠光色、荧光色等颜色,具有装饰性作用,是市面最常见的品种。
b. 氧化着色铝塑板
采用阳极氧化及时处理铝合金面板拥有玫瑰红、古铜色等别致的颜色,起到特殊的装饰效果。
c. 贴膜装饰复合板
即是将彩纹膜按设定的工艺条件,依靠黏合剂的作用,使彩纹膜黏合剂在涂有底漆的铝板上或直接贴在经脱脂处理的铝板上。主要品种有岗纹、木纹板等。
d. 彩色印花铝塑板
将不同的图案通过先进的计算机照排印刷技术,将彩色油墨在转印纸上印刷出各种仿天然花纹,然后通过热转印技术间接在铝塑板上复制出各种仿天然花纹。可以满足设计师的创意和业主的个性化选择。
e. 拉丝铝塑板
采用表面经拉丝处理的铝合金面板,常见的是金拉丝和银拉丝产品,给人带来不同的视觉享受。
f. 镜面铝塑板
铝合金面板表面经磨光处理,宛如镜面。

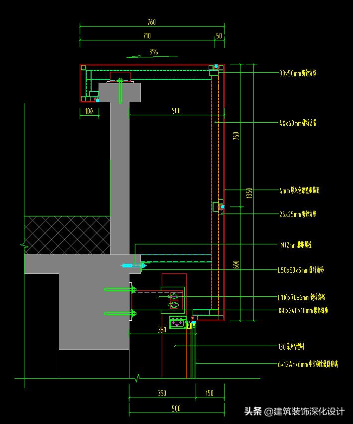
干挂铝塑板施工工艺
国标图集《外装修(一)06J505-1》做法

需要图集请关注,私信留言!



需要图集请关注,私信留言!


需要图集请关注,私信留言!

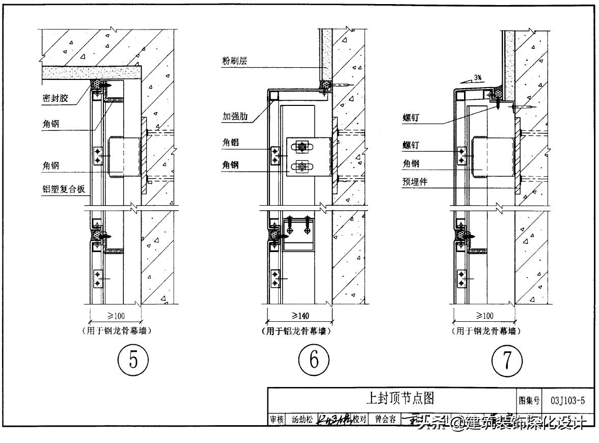
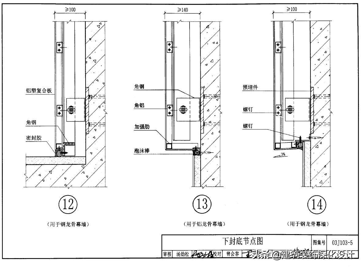
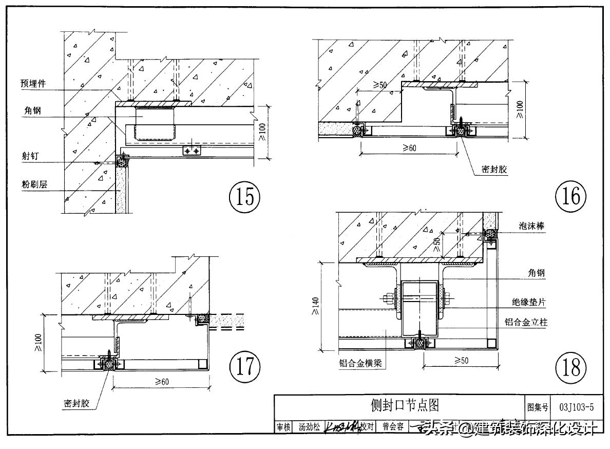
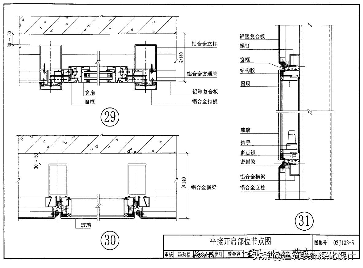
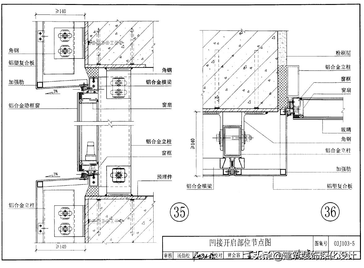
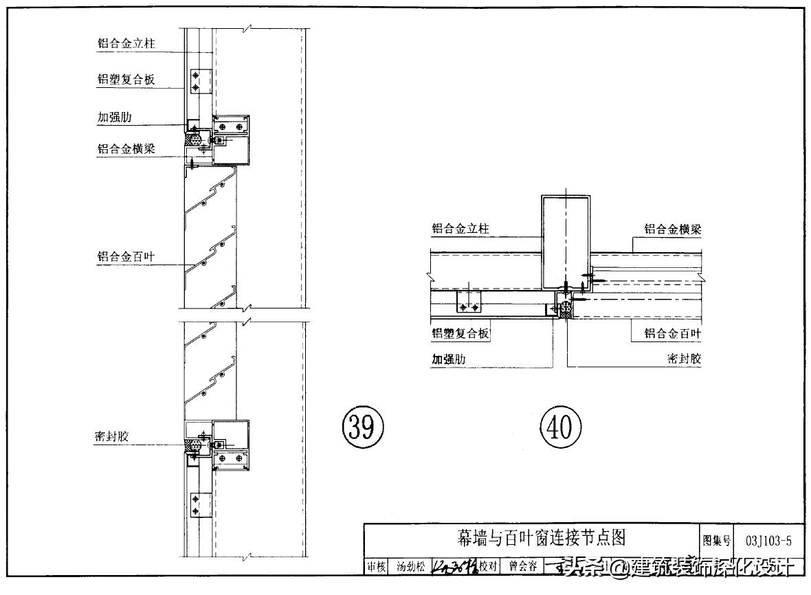
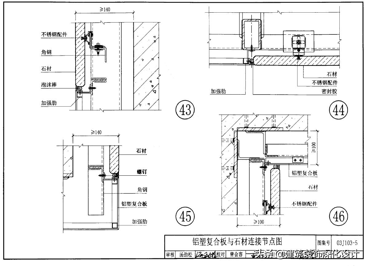
国标图集《铝塑板复合板(框架)幕墙 03J103-5》做法



需要图集请关注,私信留言!



需要图集请关注,私信留言!


需要图集请关注,私信留言!


需要图集请关注,私信留言!


需要图集请关注,私信留言!


需要图集请关注,私信留言!



需要图集请关注,私信留言!

需要图集请关注,私信留言!


需要图集请关注,私信留言!


需要图集请关注,私信留言!


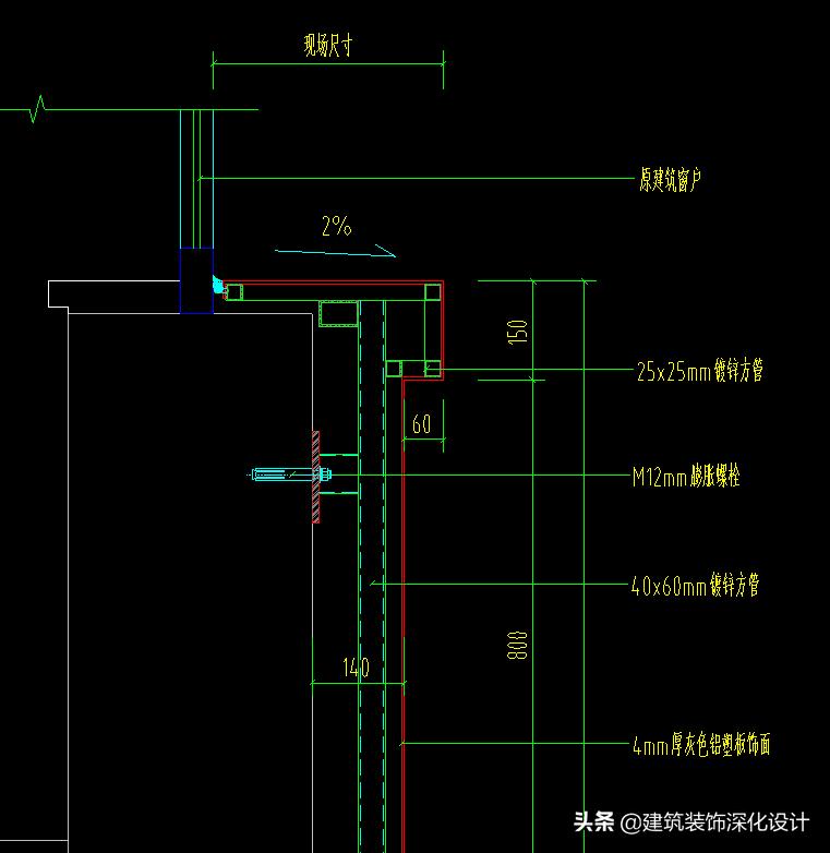
①、放线工作根据土建实际的中心线及标高点进行;饰面的设计以建筑物的轴线为依据铝塑板骨架由横竖件组成,先弹好竖向杆件的位置线,然后再将竖向杆件的锚固点确定。
②、安装固定连接件在放线的基础上,用电焊固定连接件,焊缝处防锈漆二度。连接件与主体结构上的预埋件焊接固定,当主体结构上没有埋设预埋铁件时,可在主体结构上打孔安设膨胀螺栓与连接铁件固定。
③、安装骨架用焊接方法安装骨架,安装随时检查标高,中心线位置,并同时将截面连接焊缝做防锈漆处理,固定连接件做隐蔽检查记录包括连接件焊缝长度、厚度、位置埋置标高、数量、嵌入深度。
④、安装铝塑板在型材内架上,先攻铣螺丝孔位,用铆钉将铝塑板饰面逐块固定在型钢骨架上;板与板之间的间隙为10~15㎜再注入硅酮耐候密封胶;铝板安装前严禁拆包装纸,直至竣工前方撕开包装保护膜;根据铝塑板箭头指示方向施工。
铝塑板的干挂,先做墙面基础,有角钢的,有方管的,有铝合金方管的,有幕墙专用料的。做完基础以后,根据尺寸计算出面板的尺寸,开始加工面板,专业的说叫做盘。先下出基材,基材的尺寸长和宽都加上4cm,然后用专用的修边机器在铝塑板的背面,每条边的2cm处,修出铝塑板厚度2倍的折边缝,裁去每个角多余的部分,然后将边折过来,一定要成直角,用1·5×1·5×1·5cm的铝七字角固定,(用4·2钻头钻眼,铆钉加固)。现在可以挂盘了,用快钉和专用件把铝塑板固定在墙面基础上,留出相应的胶缝,自上自下都可以挂。 应注意的是:框架要平,垂直,成方,尺寸误差在5mm左右。铝塑板的盘要方,方向要一致,误差控制在3mm左右。打胶要从上至下,先用泡沫棒填充,然后注胶,用腻刀压平,撕去保护膜。
按照行业标准,铝塑板的厚度一般要再3mm以上,3mm铝塑板铝厚要再10丝(也就是0.1mm)以上,室内用的铝塑板一般为3mm,铝厚有10丝、15丝、21丝等集中常用厚度.
一般铝塑板常见的铝厚有如下几种.
外立面用材,用0.20毫米,0.30和0.40毫米,以及0.50毫米这四种.其中0.30和0.40最为常见.
内立面用材,用0.15和0.12-0.10毫米这类结构的铝厚较为广泛.
户外招牌底板铝塑板
铝塑板常见的规格是1.22m x 2.44m,表面可分为哑光和亮光两种,亮光价格高于哑光。

铝塑板结构主要有两种工艺:
1、木工板打底,再贴铝塑板
木板打底安装方法就是木工板打底面,然后采用木工胶粘合铝塑板。这种制作方法稍微复杂,对木匠的手艺要求要高,由于木工板防腐比较差,容易受潮变形,因此不宜用于户外,这种方式主要用于室内背景墙。

2、干挂铝塑板
干挂铝塑板,主要用于室外门头招牌,就是省去了中间的木工板,即将铝塑板直接固定到钢架上。没有底板承托,因此对铝塑板的要求比较高,一般采用铝箔比较厚的铝塑板,那样才能保证招牌的平整性和牢固性。这种方式主要用于室外门头招牌。

铝塑板招牌具有平整度高,色彩多样,材质轻、坚固耐用,安装方便快捷,易加工,易于保养且防火性能优越等特点。是目前门头制作中使用概率最高的一种材料。
铝塑板招牌案例展示




铝塑板使用注意的事项
(1)铝塑板应以适当的方式贮存或安装于干燥通风的地方,避免积水,且环境温度不高于 70℃。避免安装于异常环境下,如烟尘、大风沙、辐射、有害气体及化学品环境。
(2)铝塑板运输或贮存时均需平放。在搬运时必须将板 4 边同时抬起,切勿单边拖拉,以免刮伤板面。
(3)用开槽机或锣机开槽时,应使用圆头或≥90。的 V 型平头锯片或铣刀开槽,需留有0.2—0.3mm 厚塑料芯板连同面板一起弯边,以增加强度和韧性以及防止铝片氢化。弯角过急或切割伤及铝面板或留下的塑料过厚均会造成弯边时铝板断裂或漆膜爆裂。
(4)弯边时需用力均匀,一次成型,不要反复弯折,否则会使铝面板断裂。
(5)为保持铝塑板的平整性和增强其抗风能力,铝塑板弯边后需内衬骨架并用胶与板材粘贴。
(6)用于弧形面装修时,应使用弯曲设备弯曲铝塑板,徐徐用力,使板逐步达到所需的曲面,切勿一步到位。弯曲半径应大于 30cm。
(7)按相同的流程方向将铝塑板安装于同一平面.否则可能造成视角色差。
(8)铝塑板安装后应在 45 天内撕去保护膜,否则,保护膜因在阳光下长期爆晒会老化.撕膜时可能引起遗胶现象。
(9)内墙板应在室内使用,不宜安装在室外,以保证其使用年限。
(10)施工或使用过程中板表面若有污染,可用中性洗涤剂或酒精轻轻清洗,忌用强酸、强碱性洗涤剂清清洗。
铝塑板幕墙的安全性
(1)幕墙工程应遵循安全可靠、实用美观和经济合理的原则;幕墙工程材料、设计、制作、安装施工及工程质量验收.应执行行业标准 JGJl33—2001 《金属与石材幕墙工程技术规范》、03J103—5《铝塑复合板(框架)幕墙》和国家标准 GB50210~2001《建筑装饰装修工程质量验收规范》等相关规定。
(2)幕墙及其连接件应具有足够的承载力、刚度和相对于主体结构的位移能力。幕墙构架立柱的连接金属角码与其它连接件应采用螺栓连接,并应有防松动措施。
(3)要求有防火性能的幕墙应符合现行国家标准《建筑设计防火规范》(GBJ16)和《高层建筑设计防火规范》(GB50045)的有关规定。
(4)主体结构与幕墙连接的各种预埋件,其数量、规格、位置和防腐处理必须符合设计要求。污染,可用中性洗涤剂或酒精轻轻清洗,忌用强酸、强碱性洗涤剂清洗。
(5)单元幕墙连接处和吊挂处的铝合金型材的壁厚应通过计算确定.并应≥5mm。
(6)幕墙的金属框架与主体结构应通过预埋件连接.预埋件应在主体结构混凝土施工时埋入。当没有条件采用预埋件连接时.应采用其他可靠的连接措施,并应通过试验确定其承载力。

(7)立柱应采用螺栓与角码边接,螺栓直径应经过计算,并应≥10mm。不同金属材料接触时应采用绝缘垫片分隔。
(8)幕墙的抗震缝、伸缩缝、沉降缝等部位的处理应保证缝的使用功能和饰面的完整性。幕墙工程的设计应满足维护和清洁的要求。
(9)幕墙工程主要材料为骨架材料、板材、密封填缝材料 3 类。选用工程材料应符合国家或待业标准的规定.应有出厂合格证,材料的物理力学及耐候性应符合设计要求。铝塑板性能应符合国家标准 GB/T17748《铝塑复合板》规定的外墙板的技术要求,其中铝塑板上下两层铝板厚度均为 0.5mm;表面涂层采用氟碳树脂含量 i>75%;膜厚≥25m;l80。 剥离强度≥7.0N/mm 尤为重要。
(10)密封填缝胶应采用中性硅酮耐候密封胶。密封胶应用与所接触材料的相容性试验报告。幕墙性能应满足风压变形性能、空气渗透性、雨水渗漏性能等设计要求。
铝塑板的清洗与维护
铝塑板表面烤漆需要定期的专业化的清洗与维护。这样的清洗并不仅仅是为了使建筑物的墙体保持干净漂亮的表面,而是要定期将积在烤漆表面的对烤漆有侵害的污垢去除,以保证烤漆的长期质量。建筑墙体的清洗应该用人工或者适当的清洗设备由上到下进行。不要使用任何带有腐蚀性的物品擦洗烤漆表面。
具体清洗步骤如下:
(1)先用大量清水冲洗板表面
(2)使用浸有经水稀释过的洗涤剂的软布轻轻的擦拭板面
(3)再用大量的清水冲洗板面,将赃物冲走
(4)检查板面,对于没有洗干净的地方用洗涤剂重点清洗
(5)用清水清洗板面,直至将洗涤剂全部冲掉
清洗铝塑板时不要清洗热的板面(温度超过 40 时),因为水分过快的挥发对板面烤漆有害。特别需要注意的是,应选用适当的洗涤剂,一个基本的原则是一定要选中性洗涤剂。不要使用强碱性洗涤剂(例如氢氧化钠、氢氧化钾或碳酸钠)、强酸性洗涤剂腐蚀性洗涤剂以及烤漆溶解性洗涤剂。另外大面积清洗前,最好先选一小块板面做试验,待确认安全后再正式开始。
铝塑板的养护
(1)铝塑板在施工完毕前,不得撕下表面保护膜,以免作业中擦伤表面。
(2)镜面铝塑板表面亮丽光滑,灰尘不易附着,每月擦拭 2-3 次即可。擦拭时不得用尼龙刷子、丝瓜布及挥发性溶剂或盐酸类清洁剂等。否则会损坏镜面表层。最好用软布醮一般玻璃用中性清洁剂或中国石油公司出品的去渍油轻轻擦拭。
(3)铝塑板如用于室外湿气较重及易产生雾气凝结的场所,须常用软布将雾气轻轻擦掉,即可保持持久亮丽之效果。


以上是关于铝塑板幕墙工程中常见的质量问题分析及安装工艺、维护建议,希望对你有帮助。