Ireland Z-Square House
设计方:Mccullough Mulvin Architects
位置:爱尔兰
分类:别墅建筑
内容:实景照片
图片:14张
摄影师:Henrietta Williams

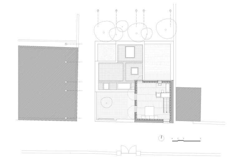
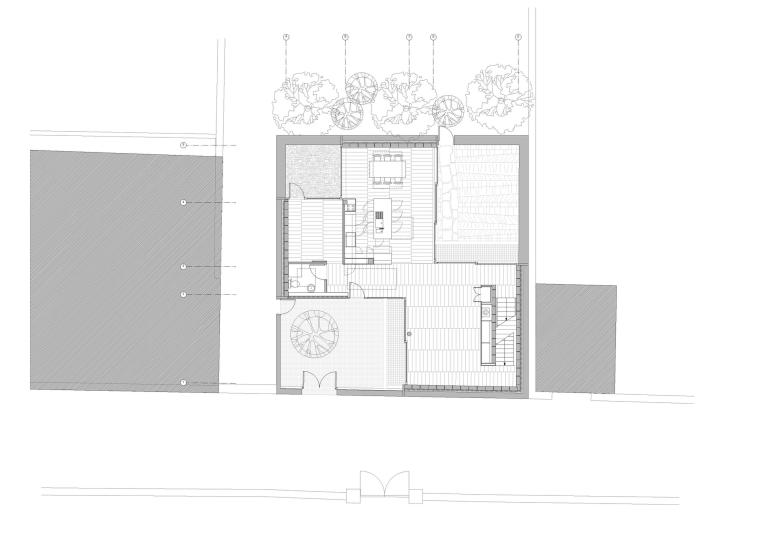
这栋由马厩改建而来的别墅遵循着可持续的原则,别墅坐落在都柏林的南部,别墅的场址位于一栋大的爱德华时代风格别墅后部的花园中,别墅的场址是一个13.0 x 13.0的正方形。别墅的平面图与一栋穆斯林住宅相似,有一个外部的花园场地,花园被一堵整齐的围墙围住,内部的空间在连续的混凝土拱腹下自由的流通着。外部的空间中被规划了各式各样的花园。别墅的屋顶是另一个种植景观,拥有良好的屋顶光线。别墅外部的墙壁是由层列的花岗岩和杉木面板组成的。

爱尔兰Z直角别墅外部实景图

爱尔兰Z直角别墅内部庭院实景图

爱尔兰Z直角别墅内部实景图

爱尔兰Z直角别墅内部实景图

爱尔兰Z直角别墅内部庭院实景图

爱尔兰Z直角别墅内部过道实景图

爱尔兰Z直角别墅内部过道实景图

爱尔兰Z直角别墅平面图

爱尔兰Z直角别墅平面图

爱尔兰Z直角别墅平面图

爱尔兰Z直角别墅剖面图

爱尔兰Z直角别墅剖面图

爱尔兰Z直角别墅剖面图