130㎡绝美奶油风装修,在家的每一天都像度假般舒服!
奶油风“横空出世”,又软又甜又治愈,难怪那么多人会喜欢!
本期要为大家分享的女主家,就是一套很有代表性的奶油风装修案例。130㎡的四居室户型,给人一种软糯温馨的感觉,偶尔也流露着复古的精致感,让人一眼难忘。
话不多说,赶快一起来参观下屋主的新家吧!

▲装修实拍图
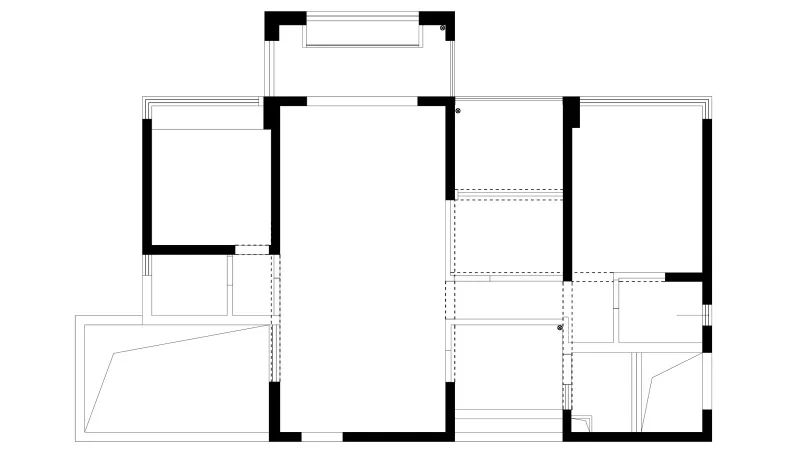
//户型分析//
- ①整屋面积约130㎡,四居室的户型,格局方正。
- ②房子的中间是客餐厅,卧室分布在两侧。
- ③布局没有太大的问题,只用做微调即可。

▲户型平面图
//设计亮点//
- ①打通部分厨房空间,与餐厅合并,设置开放式西厨。
- ②利用走廊空间,为主卧增设了一个独立的衣帽间。
- ③把餐厅旁边的卧室,改造为书房,兼顾办公、学习和琴房的功能。

▲装修平面图
客厅
客厅墙面刷了奶油白色的乳胶漆,搭配鱼骨纹暖木色地板,营造出舒适治愈的空间氛围感。
宝蓝色的长沙发、米白色的单人沙发和藤编休闲椅,共筑半围合式的布局,中间铺一张几何风地毯,屋主可以随处而坐。

▲客厅实拍图
- 电视背景墙融入了拱门造型,对开式灰色柜门的设计,充满了仪式感。
- 沙发背景墙用两幅抽象画做点缀,为客厅增添了一份艺术气息。

▲客厅实拍图
餐厅
餐厅打通了一部分厨房空间,定制吧台和橱柜,增加西厨的功能。
圆形复古风餐桌摆放在餐厅中间,搭配四张藤编餐椅,可以满足一家人的用餐需求。
地面铺白底灰边的方格小砖,与客厅的木地板完美衔接,既有层次感,又耐脏耐磨。

▲餐厅实拍图
- 西厨吧台靠近餐厅的一侧,定制了留个小抽屉,方便屋主收纳常用的餐具。
- 餐厅的另一端摆放了一组胡桃木色的复古风餐边柜,柜面点缀摆件和台灯,精致感不言而喻。

▲餐厅实拍图
书房
餐厅隔壁的卧室,被改造为了独立书房,入口安装法式对开门,中间嵌入水波纹玻璃,既美观又通透。
书房内部布置了书桌、书柜和钢琴,这里既是屋主夫妻的居家办公区,也是孩子平时练琴的地方。
别看是玻璃门,隔音效果也非常好,门关上后能够过滤掉大部分噪音,拥有一个安静舒适的环境。

▲书房实拍图
主卧
主卧的改造非常成功,设计师利用室内走廊空间,为主卧隔出了一个衣帽间,进入主卧前要先经过衣帽间,私密性也更强。
衣帽间的尽头处是主卫,仅仅几平米的空间也实现了干湿分区;内部采用了复古风设计,搭配金属风配件,高级感呼之欲出。

▲主卧实拍图
主卧朝南,有一面大落地窗,将户外的美景揽进屋内。
窗子上方是一道横梁,为了减少突兀感,设计师便做了吊顶,并勾勒了法式石膏线。
靠窗的一角,是主卧的观景区,落地灯、休闲椅一应俱全,屋主可以在这里阅读、赏景、品茶,享受惬意的居家生活。

▲主卧实拍图
- 室内背景墙以淡蓝色打底,细看会发现这是一幅森林风景画,很有意境。
- 床头右侧是雕花床头柜,左侧是中古风梳妆台,配置丰富且合理。

▲主卧实拍图
床尾还有一部分空间,刚好摆放一个半高金色柜子,大小不一的两幅装饰画直接落在上面,再放一株干花,看似简单却充满了艺术感。

▲主卧实拍图
儿童房
儿童房与主卧相邻,方便大人随时照顾到孩子。
室内利用一面墙的空间,定制一体式“衣柜+书柜”;另一侧规划床和书桌,配置齐全又实用。
这个房间其实是由一间卧室和一个阳台合并而成的,设计师特意留出一部分阳台空间、未做封闭,让孩子可以在此欣赏自然美景。

▲儿童房实拍图
次卧
最后一间卧室是给长辈准备的,他们偶尔会来家里小住,房间大部分时候都是空置的状态,柜子里可以放一些生活杂物。
室内配色选择了淡奶茶色,老少咸宜的配色,营造出慵懒舒适的休憩氛围。

▲次卧实拍图
床头左侧用角几代替床头柜,体积轻巧,开柜门时可以轻松移开。

▲次卧实拍图
【本期总结】
回顾本案,整屋装修算不上奢华,却处处流露着高级感。适当的留白加上克制的家居搭配,让原本简约的空间,也能呈现出更精致的感觉。如果你也喜欢本期内容,欢迎点赞收藏!
想了解更多精彩内容,快来关注甜茶的极简生活