房子装修,很多人都喜欢现代简约风格,现代简约风格很耐看,住十年都不会过时,简线条设计,可以让空间看起来更大,今天给大家分享一套房子,原木色和白色组合,客厅餐厅厨房一体设计,空间开阔明亮!

进门玄关处,定制一个原木色板材的鞋柜,鞋柜采用悬挂设计,这样看起来更加轻盈,适合小户型的房子。

鞋柜中间预留一块空的地方,这里可以用来摆放钥匙或者包包之类的东西。鞋柜门板无明把手设计,看起来很简洁!这种设计不容易过时!

经过玄关进来就是客厅了,客厅地面通铺了木地板,木色地板,让空间更加柔和,多几分家的温馨感。

这个家的客厅、餐厅、厨房一体设计,整个空间显得宽敞明亮,吊顶和电视背景墙都没有复杂的造型设计的,白色墙面,也是会显得空间宽敞明亮!

客厅两张沙发背靠背,墙面上装了一个书架,平时可以在这里看看书,光线明亮通透的客厅,很适合在这里看书!

客厅外面有阳台的,为了和落地窗样式统一,阳台采用这样的设计,门槛抬高的阳台,你喜欢吗?

这个书柜是采用定制的,和鞋柜门板颜色都是一样的,整个家的颜色不多,整体就是白色、原木色、灰色这三种颜色,卫生间墙砖是灰色,后面可以看看图。

整个家除外了卫生间阳台以外,地面都是通铺木地板,看起来真的很舒适。餐桌椅也是原木色的,选用定制的餐桌椅。

这一间是主卧,主卧靠窗的地方,定制一张榻榻米,可以增加很多收纳空间。

榻榻米上铺上草席,偶尔可以坐在这里休息一下,很喜欢这样的设计。

主卧通向卫生间的门,卫生间整体也是白色和原木色为主,这样过渡到卫生间也是很自然。

卫生间以灰色为主,保留了浴缸设计,这样灰色卫生间,你喜欢吗?

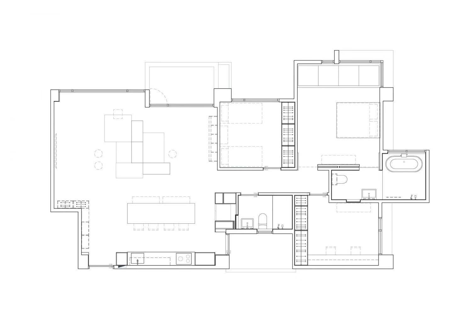
最后上一张这套房子的户型图,还有两个房间的图就不上了,如果你喜欢这套房子的设计,可以转发或收藏一下。