农村建房哪种风格好?我觉得还是要属中式。
不管是水墨俊秀的传统中式,还是清新雅致的新中式,都美过洋别墅甚多。而带小院的居住形式,更是舒适、高雅。
不管是四合院、三合院、L型小院,还是三四层的独栋中式别墅,这才是中国农村该有的样子。或山墙傲立的徽派,或飞檐挂角曲径通幽的苏派,或是青墙黛瓦的北派,亦或是独居特色的地方民居,中式总是让我们一见钟情。
今天住宅公园给大家分享8套超漂亮的中式农村自建房设计,都是实用的小占地户型,非常适合农村朋友自建。
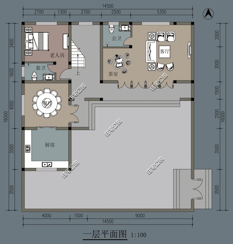
第一套:北派风格两层中式小院

占地开间14.5米,进深16米,房子占地面积(不含庭院)125平方米,建筑面积(不含庭院)219平方米。小巧简单,造价30万左右,你想建吗?
建筑情况:共设4室2厅4卫1厨1茶室1衣帽间1露台 阳台1庭院。


第二套:江南苏派风格三层中式农村小院
飞檐挂角尽显中式之美,经典的中式外观,舒适的现代布局,好用!

占地尺寸(不含庭院):14.3mx10.1米
占地面积(不含庭院):121平方米
建筑面积(不含庭院):285平方米
建筑情况:共设5室 2厅 5卫 1厨 1茶室 2前室 1书房 1储物间 2露台 2连廊 1车库 1庭院


第三套:院落分区的二层中式农村小院
藏匿于皑皑白雪中的中式小院,仿佛瞬间将我们带入了雪落无声的冬季。长长连廊左右两侧是一派小院美景,传统的中式檐角设计,重檐飞峻,丽采横空。

占地尺寸(不含庭院):20.2米x13.9米
占地面积(不含庭院):220平方米
建筑面积(不含庭院):438平方米
建筑情况:共设5室、4厅、6卫、1厨、1玄关、1茶室、2储物间、3衣帽间、3书房、1棋牌室 、3阳台、1庭院。


第四套:简洁时尚新中式农村美墅
传统中式做工复杂,在农村很难找到能做活的施工队?那就做一套新中式美墅吧,施工简单,造价低,却跟传统中式一样漂亮。


占地尺寸:15.76米x21.78米
占地面积:340平方米
建筑情况:共设5室、2厅、3卫、1厨、1堂屋、1土灶、1起居室、1书房、2露台、1中庭、1车库、1庭院。


第五套:11米小面宽农村二层小院,参考造价20~25万

占地尺寸:11米x18米
占地面积(不含庭院):120平方米
建筑面积(不含庭院):173平方米
建筑情况:共设3室 2厅 3卫 1厨 1书房 1露台 3庭院


第六套:二层新中式小楼,参考造价25~30万

占地尺寸:11.5米x10.8米
占地面积:115.4平方米
建筑面积:247平方米
建筑情况:共设6室·、2厅、2卫、1厨、1玄关、1储藏室、1走廊、2衣帽间、1书房、1阳台。


第七套:8.7米小面宽徽派三层美墅,参考造价30~40万

占地尺寸(不含庭院):8.7米x11.4米
占地面积(不含庭院):100平方米
建筑面积(不含庭院):283.1平方米
建筑情况:共设5室、3厅、4卫、1厨、1棋牌室、2储藏室、1书房、1阳台、1露台、1庭院。



第八套:二层农村新中式民居

占地尺寸:17.7米x17.7米
占地面积(不含庭院):159.3平方米
建筑面积(不含庭院):308平方米
建筑情况:共设5室、3厅、4卫、1厨、1堂屋、1书房、2储藏间、1露台、1庭院。


8套新中式农村自建房户型,你更喜欢哪一套?
住宅公园,1000套农村自建房图纸,设计施工一站式服务。