
建筑师和设计师提出了创造性的方法来在开放式办公室中创造隐私空间。 从工厂到隧道,这里是10个工作场所的平面图,这些工作场所以不同寻常的方式划分。
一起来看看这 10 幅平面设计图吧
01
The green room

荷兰工作室 Space Encounters 使用铺有热带植物的矮墙,将最近完工的塔楼的14层分隔在乌得勒支市中心。
种植者的目的是为荷兰房地产开发商 Synchroon 的工人提供隐私,同时增加绿化,以改善他们的健康。
02
The inhabited wall

为了将公共区域与 Pocket Living 伦敦办公室的工作区分开,Threefold Architects 用胶合板云杉和浅灰色钢制造了一个40米长的墙。
“The inhabited wall”包括了会议室,健康室,休息室和食堂。
03
The colourful canopy

这些由 Medium Plenty 设计的品牌公司 Enlisted Design 办公室使用白色隔板和胶合板钉墙进行划分。
在这个中性色调中,由艺术家 Annie Tull 创作的蓝色、红色和灰色色彩的彩色天蓬定义了从入口到工作空间的路线。
04
The shapeshifter

从微型房屋的设计中直接获取线索,特殊建筑师将可移动的家具整合到自己的办公室中,以便可以轻松地重新配置。
折叠式办公桌可用于分隔空间或存储空间,以便房间可用作会议空间。
05
The tunnel

在广告公司 18 Feet&Rising 的英国总部,建筑实践工作室 Octopi 创造了一条黑暗而神秘的隧道,从办公室通往董事会会议室。
胶合板隧道将办公室分开,而低胶合板屏幕则用于将桌面区域与公共空间隔开。
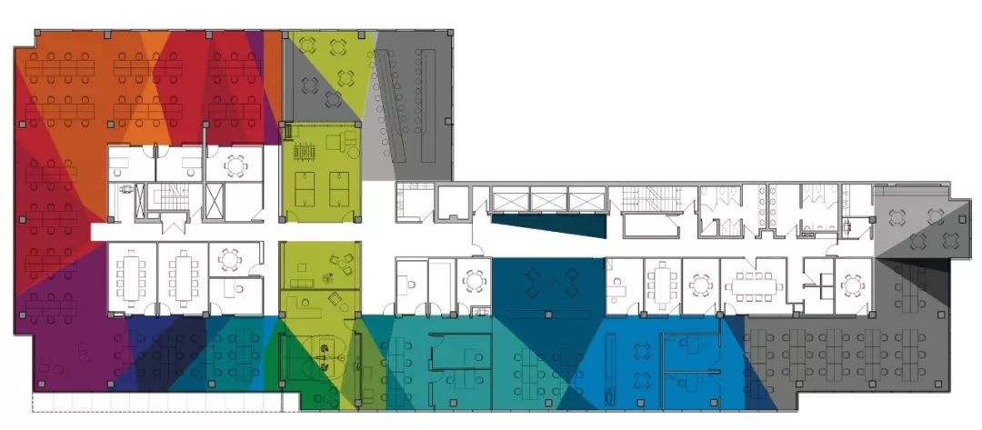
06
The rainbow

加拿大工作室 ACDF Architecture 使用颜色来表示基于订阅的娱乐服务的不同区域 Playster 位于蒙特利尔的1,670平方米的总部。
办公室墙壁和地板上使用的颜色取自 Playster 的标志。
07
The divider

弗拉基米尔·拉杜特尼建筑师事务所(Vladimir Radutny Architects)在 Sukhman Yagoda Law 的办公室里放置了两个不规则阴影的卷,将芝加哥372平方米的阁楼分开。
隔墙的空白白墙设计与建筑旧木柱和裸露的砖墙形成鲜明对比。
08
The glasshouse

Space Encounters将符合人体工程学的马车制造商Joolz的办公室分成两排,一排三个温室。
温室沿着前仓库的中心向下延伸,并充满了植物。 他们还有长椅,可以用作非正式会议室。
09
The semi-transparent one

波兰建筑工作室 MTRMGR 为声音制作公司 Ztudio 在中央空间周围创建了一系列办公室隔间。
半透明工作区采用漆面松木框架和聚碳酸酯板材制成。
10
The sleeper

由 Float Studio 设计的床垫品牌 Casper 在纽约的办公室围绕三个蓝色盒子排列。
虽然其中两个包含存储空间和一个会议室,但第三个包含三张床,员工可以用它们进行非正式会议或睡觉。
图片 | Dezeen