项目名称:Drink‘n’Jump -有人跳海
项目面积:60 平方米
落地时间:2023

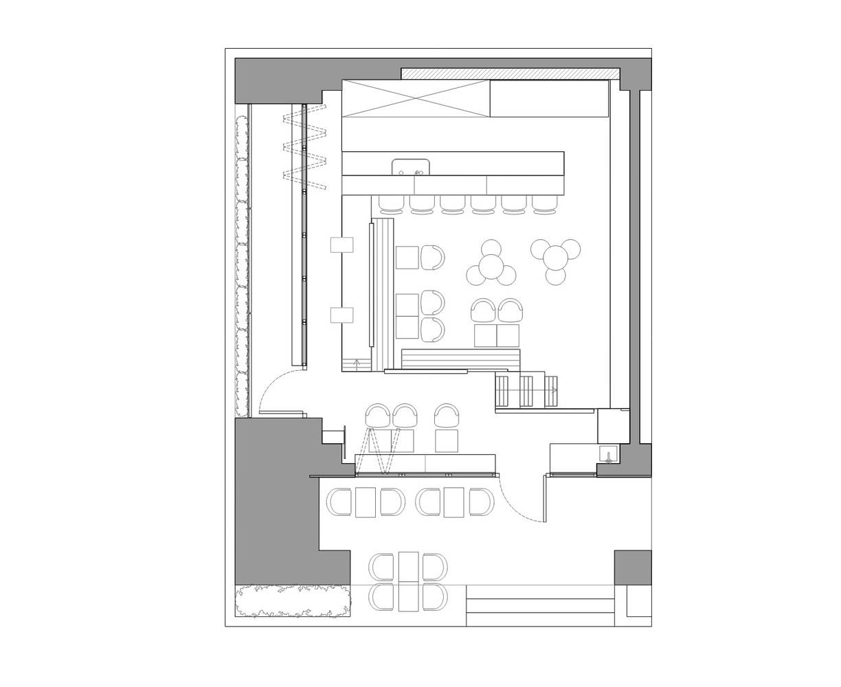
这家广受欢迎的生啤酒吧位于一栋新楼一角,在一家 60 平方米的紧凑型店铺中找到了自己的家。该设计去除了原来的玻璃幕墙,取而代之的是完全打开并堆叠到一端的双折窗。加上前面和侧面的阳台,酒吧不再局限于室内有限的平方英尺,而是扩展到室外空间,创造一个年轻人可以聚集和享受的城市客厅。

另一个重大举措是部分拆除商店内的架空地板,以创建一个集中的下沉空间。从街上走来的顾客必须走几段楼梯才能上升到阳台水平,当他们通过酒吧的入口门口后,迎接他们的是一个比他们站立高度低1.2米的微型下沉式广场。广场的一侧有内置的体育场座位,顾客可以坐下来喝酒,同时观看投影到对面墙上的电影或节目。


下沉式广场的墙壁用铁皮包裹,铆钉用于将钢板固定在隐藏的钢架上,为广场周围的高架地板区域提供支撑。之所以选择钢框架,是因为当商店不再提供其当前功能时,它们可以轻松拆卸和回收。所有的门框、窗框、架子和橱柜都由波罗的海桦木胶合板制成。站在下沉广场中央,所有的木制家具仿佛都漂浮在半空中。通过集体和协作,他们设法为原本具有工业外观的空间增添了一点人情味。



通过对材料和接缝的精心处理,为空间增加了更多的视觉趣味层次。铁皮和波罗的海桦木胶合板都经过清漆处理,以产生更温暖的外观,而不会失去其真实的质地。彩绘天花板经过特殊处理,具有理想的斑驳纹理。在这里可以找到的许多关节都偏离了规范。它们是将结构逻辑与新颖、优雅的外观相结合的设计结果



考虑到“有人跳海”的品牌使命,网站的具体特征,年轻人的行为特征,以及颜色和纹理的组合,诞生了具有舒适和真诚氛围的实用设计,以及丰富的空间和视觉体验。通过邀请所有参观者以任何吸引他们的方式与空间、产品和人群互动,极简主义空间的创造潜力得到了充分挖掘。


#成都酒吧设计 #酒吧装修 #酒吧设计 #酒吧装修设计要点 #如何设计一间酒吧 #开一家酒吧需要注意#酒吧装修注意事项 #商业空间设计#酒吧装修设计要点
方度空间设计
||秉持以人为本的设计价值理念 ,致力于为企业提供行业整体解决方案 ||
|服务范围|
①空间设计:专业从事酒店装修设计、KTV装修设计、酒吧装修设计、SPA等商业空间设计
②全案定制:以客户为中心,提供量身定制的一体化装修设计服务;是为客户提供软装、硬装、消防、空调、器材等为一体的全案定制设计服务;
③软装陈设:根据空间的使用功能搭配设计合理的家具/器材,空间按照设计的风格和效果进行软装工程施工再配以软装以点缀空间,提升品质