门店结合苏州元素,用文化元素为品牌赋能,提起苏州,第一印象必定属于“园林”,书墨笔画的勾勒是新中式的底蕴色彩,而碧水青山的元素则是新中式的时代情怀,山水园林等元素搭配简约的设计风格,让中式的设计理念瞬间富含现代的层次感与跳跃感,一起来看看吧!

餐饮空间设计
江南园林的元素进行提取、拆分和重组,保持静谧的色调,几层叠加构成江南水乡的屋檐形态,顿时有一种古韵悠悠之感,让人更深入地领略到园林之美。

餐饮空间设计
融入了苏州建筑和江南园林风格,白墙黛瓦,同时结合现代极简的黑白结合暖色灯光,将休闲氛围置于院落之间。

餐饮空间设计
立面则使用白色的水泥软陶墙板,融合传统和现代,营造禅意的舒适空间,保留着一种文化气息。

餐饮空间设计
细密的金属冲孔板形成半通透的效果,并与水泥软陶墙板形成呼应,平衡着整个空间的色调。

餐饮空间设计

餐饮空间设计
为突出户外感的真实感,天花上的整片发光软膜模拟出自然光线的角度和色温,为空间注入蓬勃的自然气息。

餐饮空间设计

餐饮空间设计

餐饮空间设计
现代屋檐掩映下的传统屋檐,以其朴质的肌理质感回应传统建筑立面的屋檐和圆形露窗。

餐饮空间设计

餐饮空间设计
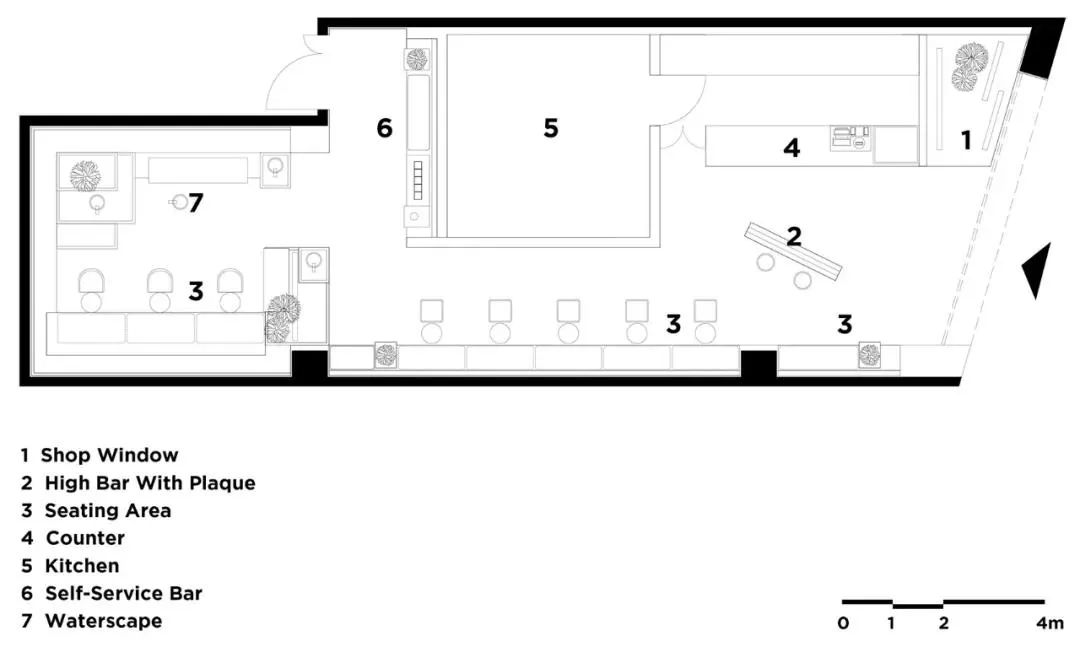
在空间后部设计了一个内庭院,沿墙设置流水装置,强化突出的江南园林文化、简约温婉的氛围感。

餐饮空间设计

餐饮空间设计
庭院中,金属网丝形成半通透的白纱效果,层次分明的隔间效果,把空间的光与影表现的淋漓尽致,从而形成鲜明的特征。

餐饮空间设计

餐饮空间设计

餐饮空间设计
品牌标志的“7”字以矗立于水景之中,空间场景的打造延续品牌概念,与空间整体风格融合中又不失品牌性美。

餐饮空间设计
现代茶饮店内的传统标语,用符合现代消费者的消费观念,将品牌演绎得更年轻。

餐饮空间设计

餐饮空间设计

餐饮空间设计

餐饮空间设计

餐饮空间设计
空间整体调性、错落的物搭配,使空间慢且静,当现代生活与古典文化碰撞,空间便呈现新中式的典雅与唯美,让中式的美,刻在骨子里,以现代审美需求打造传统韵味的事物,让传统艺术在当今社会得到合适的体现。

餐饮空间设计

餐饮空间设计
空间名称:七分甜 ;地址: 江苏,来源:餐饮视界公众号,设计:MOC DESIGN OFFICE, 图:小云, 编辑:餐谋长 品牌策划/TOBBY
本站所有采集的优秀作品归原作者所有
投稿私信:餐饮视界
让更多的人欣赏你的美