原创作者:李国胜
在地下室周边设置盲沟降低抗浮水位方法的探讨
李国胜1,郑言发2,吴 冲3
(1 一级注册结构工程师、铜陵市建筑工程施工图设计文件审查有限公司总工、铜陵市建设工程质量监督监测有限公司总工;2 注册土木(岩土)工程师、安徽中汇规划勘测设计研究院有限公司副总工;3 注册公用设备工程师(给水排水)、安徽山水城市设计有限公司设备分院副院长)
[提要] 当建筑场地有一面或几面高出周边场地或市政道路,且场地为弱透水性土层、地下水量不大(排水面积较小)、常年水位较低时,可通过在地下室周边设置盲沟降低抗浮水位,从而节约造价。该方法的基本思路是通过“隔”、“排”结合,将地下水位控制在盲沟标高以下。盲沟排水系统应进行施工质量检验和验收;应对地下水水位和水压力长期进行监测;应对排水系统长期进行维护;应配备长期应急措施。该方法同其他采用盲沟降低抗浮水位的方法(如底板下设置盲沟的方法)一样,存在设计方法不成熟、实际使用年限达不到50年、后期维护费用高、盲沟使用有风险四个方面问题,应引起高度注意,慎重采用。
0 引言
随着小区车位配置比例的提高,地下室越来越多,越来越大,越来越深(多层车库),抗浮问题也越来越突出。解决抗浮稳定性问题有两个方法,一个方法是“抗”,如加大配重、增设锚杆或抗拔桩等;另一个方法是采取措施降低抗浮水位。由于“抗”的方法造价太高,建设单位希望勘察、设计单位能采取措施降低抗浮水位,从而节约造价。在山区或丘陵地区,很多建筑场地有一面或几面高出周边场地或市政道路,抗浮水位如果按通常方法取室外地坪下0.5~1.0米似乎太保守,但如果取得太低,又可能不安全。因为当地下室处于不透水地层或弱透水性地层时,如果基坑肥槽回填土透水性较强、密实度不高、地表封闭效果较差,降雨或地表水下渗将储存在肥槽中,由于无排泄条件而形成高水位 ( 众多工程事故案例已证明,此条件将对基础底板产生较大的浮力)。为解决这一问题,可在地下室周边设置盲沟,将地下水快速排入市政雨水井或较低场地的雨水井,从而达到降低抗浮水位的目的。虽然《建筑工程抗浮技术标准》(JGJ 476-2019)(简称抗浮标准)和《地下工程防水技术规范》(GB50108-2008)(简称防水规范)对其进行了规定,但很多规定仅仅是原则性的,无法指导具体设计。另外,由于该设计涉及建筑结构、岩土和给排水专业,而实际设计往往是由某一个专业独立完成的,难免会出现错误,达不到降低抗浮水位的目的,甚至存在重大安全隐患。本文由建筑结构、岩土和给排水三个专业工程师共同完成,希望对设计人员有所帮助,同时也希望大家多提宝贵意见,以使该设计方法更加完善。
1 盲沟排水原理
防水规范第6.2.4条条文说明解释了在地下室周边设置盲沟降低抗浮水位方法的原理:“盲沟排水,一般设在建筑物周围,使地下水流入盲沟内,根据地形使水自动排走。如受地形限制,没有自流排水条件,则可设集水井,再由水泵抽走。”实际工程中,“根据地形使水自动排走”(简称“自流式”)就是盲沟内集水管设置一定的坡度,在盲沟最低标高处设集水井,再通过排水管将盲沟内水排入市政雨水井;当地下室附近有较低的场地时,也可通过排水管将盲沟内水排入较低场地的雨水井。当盲沟最低标高低于附近市政雨水管标高时,必须设集水井,由水泵将集水井中水抽走(简称“泵抽式”)。“自流式”运行成本低,适宜采用;“泵抽式”长期运行成本高,不宜采用。
2 适用范围及其理解
防水规范第6.2.4条规定了在地下室周边设置盲沟降低抗浮水位方法的适用范围:“盲沟排水宜用于地基为弱透水性土层、地下水量不大或排水面积较小,地下水位在建筑底板以下或在丰水期地下水位高于建筑底板的地下工程”。
(1) 当建设场地的地基为强透水性及以上土层时,雨水在沿地面径流的同时,会大量下渗,以至于盲沟来不及排水,地下水位可能会升高到设定的盲沟以上。因此,盲沟排水不宜用于强透水性及以上土层。
(2)当地下水量大或排水面积大时,由于盲沟排水能力有限,大体量的地下水再加上外围径流补给,盲沟控制地下水位的效果降低,地下水位有升高到设定的盲沟以上的可能,因此,盲沟排水不宜用于地下水量大或排水面积大的情况。
(3)规范规定盲沟宜用于“地下水位在建筑底板以下或在丰水期地下水位高于建筑底板的地下工程”,是基于该规范将盲沟设置在地下室底板标高处或更低处(见防水规范图6.2.5-1、图6.2.5-2)。此时,如果常年地下水位高于底板,盲沟将长期工作,不停地排水,且排水量大,一方面盲沟的反滤层、集水管容易淤塞,另一方面长期水流的潜蚀作用可能带走细土粒,破坏土体结构。根据这个原则,当盲沟高于底板标高时,则也要求常年地下水位低于盲沟标高,仅丰水期地下水位可以高于盲沟标高。换言之,盲沟位置宜高于常年地下水位。对于上层滞水,由于其具有不连续性和季节性,盲沟设置标高能否低于上层滞水水位,可由专家论证确定。
3 可行性论证
由于在地下室周边设置盲沟降低抗浮水位方法涉及到建筑结构、岩土和给排水三个专业,因此,应由甲方组织召开专家论证会(专家组一般由两名结构专业、两名岩土专业及一名给排水专业专家组成),对设计单位提出的期望抗浮水位(期望抗浮水位一般为防水板满足构造配筋时的抗浮水位或不需设抗浮锚杆和抗拔桩时的抗浮水位)进行论证,并形成专家论证意见。专家论证意见应提出建议的抗浮水位(如果期望抗浮水位能实现,建议的抗浮水位宜取期望抗浮水位)及有关要求。然后由勘察单位对专家论证意见建议的抗浮水位进行确认,确认后的抗浮水位即为设计抗浮水位。最后由设计单位按设计抗浮水位及专家论证意见进行盲沟设计。
4 盲沟设计
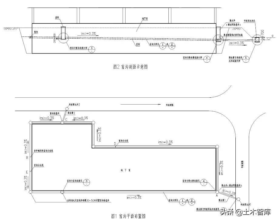
(1)盲沟平面布置图(见图1)
为方便读者对照理解,笔者绘制了盲沟剖面示意图(见图2),具体设计时可以不绘制该图,但应将所有内容在“盲沟平面布置图”和“大样图”中表达清楚。
盲沟平面布置图具体内容包括:
1)盲沟位置、坡度及标高:应在图中示出盲沟平面位置(沿地下室周边布置一圈)、盲沟集水管坡
度及顶标高。防水规范对盲沟坡度未做规定,参照《建筑基坑支护技术规程》(JGJ120-2012)第7.4.3条及《建筑边坡工程技术规范》(GB50330-2013)第16.2.3条第3款,盲沟坡度不宜小于0.3%。
2)盲沟检查井位置及标高:图中应示出盲沟检查井平面位置、底标高和顶标高。防水规范第6.2.5条第5款规定,应在转角处及直线段每隔一定距离(一般可为30~50米)设置检查井,井底距集水管底应留设200~300mm的沉淀部分,井盖应采取密封措施。检查井顶面高出室外地面不应小于150mm,以防地表水进入。盲沟检查井的作用是,用来监测地下水位及进行盲沟(集水管)的维护与疏通。
3)市政雨水井位置及标高:用来接收盲沟排水的市政雨水井应在平面图中示出(不宜少于2个),如图1中雨水井1、雨水井2,且应注明雨水井内管顶标高(该标高由甲方提供)。这些雨水井应确保暴雨时节排水畅通,不出现积水和回水。
4)排水管位置、坡度及标高:连接盲沟和市政雨水井的排水管应在平面图中示出,如图1中排水管1、排水管2,且应注明坡度和标高。与盲沟集水管坡度一样,排水管坡度不应小于0.3%,排水截面积不应小于盲沟集水管排水截面积的两倍。
(2)大样图
1)盲沟大样:图3参照防水规范第6.2.5条规定的盲沟做法,图4参照基坑支护规程第7.4.3条条文说明规定的盲沟做法,都可以采用。其区别为:图3盲沟采用卵石与中砂反滤层,图4盲沟采用级配碎石外包两层土工布反滤层。大样中混凝土垫层上增设透水孔,贴地下室外墙边增设通长透水槽以及基坑底部要求采用砂石回填,目的是形成排水通道,当地下水从肥槽外侧或肥槽内渗入基底,随着水量增多,水位升高,水压随之增大,地下水可由透水槽经透水孔快速进入盲沟。由于盲沟四周为压实素土(根据抗浮规范第6.5.5条第3款规定,基坑肥槽回填应采用分层夯实的黏性土、灰土或浇筑预拌流态固化土、素混凝土等弱透水材料),如果不设置排水通道,基底内的地下水因无法排出可能会形成高压,增大底板浮力,形成安全隐患。
防水规范第6.2.5条规定,盲沟集水管内径为φ300,宜采用无砂混凝土管,但国标《地下建筑防水构造》(10J301)第63页集水管采用无纺布花管。注意,规范规定的“盲沟集水管内径为φ300”应理解为最低要求,如排水量大、盲沟长,则应加大集水管管径。
2)盲沟与盲沟连接大样:图5为盲沟与盲沟在检查井处连接大样,检查井做法可选用给排水专业标准图。
3)盲沟与排水管连接大样:图6为盲沟与排水管通过集水井连接大样。当地下室底板有外挑板时,集水井底板底面不得低于地下室外挑底板顶面。当地下室底板无外挑时,集水井底板底面不得低于地下室底板底面,否则需加大基坑开挖深度,增加基坑支护造价;当为筏板基础时,还会影响筏板基础地基承载力。
4)排水管与市政雨水井连接大样:图7为排水管与市政雨水井连接大样。


5 盲沟集水管顶标高的确定
为了后文叙述方便,先对有关符号的含义进行规定:
a——排水管在市政雨水井侧壁处的顶标高(见图7及图2最右边大样);
L——排水管长度(单位为m);
b——地下室底板顶标高;
c——地下室底板底标高;
hd——检查井底板厚度,一般为120mm;
hg——盲沟集水管底与检查井底板顶之间的距离,一般为200~300mm;
φ——盲沟集水管(内)直径,应>=300mm;
ip——排水管坡度,应>=0.3%;
im——盲沟(集水管)坡度,应>=0.3%。
(1)用来推算集水管顶标高的市政雨水井的确定
盲沟集水管顶标高可从距离地下室较近、标高较低的市政雨水井处开始推算,如图1中雨水井1。如果地下室附近同时有几个雨水井,判断哪个是用来推算集水管顶标高的市政雨水井较困难时,则可按以下方法确定:以各自雨水井中市政排水管顶为起点,以同样的坡度,按照能够实现的布管路线向地下室延伸,与地下室外边缘交点标高最低的雨水井即为用来推算集水管顶标高的市政雨水井。
(2)盲沟集水管顶最低标高的确定
盲沟集水管顶最低标高位于盲沟与排水管连接的集水井处(见图6),可按以下方法推算:
1)当地下室底板有外挑板时,由于图6中集水井底板底面不得低于地下室外挑底板顶面,因此,当a+Lx0.3%<b+hd+hg+φ时,图6中集水管顶标高为b+hd+hg+φ,排水管坡度将大于0.3%;如果a+Lx0.3%≥b+hd+hg+φ,图6中集水管顶标高为a+Lx0.3%,排水管坡度等于0.3%。
2) 当地下室底板无外挑板时,由于图6中集水井底板底面不得低于地下室底板底面,因此,当a+Lx0.3%<c+hd+hg+φ时,图6中集水管顶标高为c+hd+hg+φ,排水管坡度将大于0.3%;如果a+Lx0.3%≥c+hd+hg+φ,图6中集水管顶标高为a+Lx0.3%,排水管坡度等于0.3%。
(3)其他部位盲沟集水管顶标高的确定
在盲沟集水管顶最低标高确定后,再以此处为起点A,集水管按照不小于0.3%的坡度向两侧沿地下室周边往远处延伸(一般情况下两边坡度相同,特殊情况时也可不同),直到交圈,交圈处B点即为集水管最高点(此时集水管闭环有两条排水路径:AB左线和AB右线),这样就初步确定了集水管顶标高。如果只有这一个雨水井,那么初步确定的集水管顶标高就是最终标高。如果附近还有其他市政雨水井(如图1中雨水井2),先判断其能否利用,判断方法是,以排水管2在雨水井2侧壁处的顶标高为起点,以0.3%的坡度向地下室延伸,与地下室边缘的交点标高如果高于初步确定的集水管顶标高,则雨水井2就不能利用;如果不高于初步确定的集水管顶标高,则雨水井2就能利用。再以排水管2与盲沟交点为起点C,集水管按照不小于0.3%的坡度向两侧沿地下室周边往远处延伸(一般情况下两边坡度相同,特殊情况时也可不同),直到与初步确定的集水管顶标高相交于D、E两点(此时集水管闭环有两个出口、四条排水路径:DA、DC、EA、EC)。如果附近还有市政雨水井可以利用,集水管顶标高确定方法依此类推。
6 盲沟竖向的最终确定
按本文方法设置盲沟后,为了安全和方便抗浮计算,盲沟所能控制的抗浮水位(下文简称盲沟抗浮水位)建议按以下方法确定:当地下室顶、底板均在同一个标高时,盲沟抗浮水位取盲沟最高点集水管顶标高;当地下室顶、底板有坡度(或整体有坡度)时,盲沟抗浮水位则取盲沟集水管顶与室外设计地面最小距离n,即室外设计地面标高下n。
(1)当盲沟抗浮水位比设计抗浮水位(即经勘察单位确认的专家论证会建议的抗浮水位)低0.5米以上时,则宜将全部盲沟整体上抬,排水管坡度加大(同时盲沟底标高应高于常年地下水位)。因为虽然盲沟标高越低,对降低抗浮水位越有利,但同时也会使盲沟排水量加大,工作时间(排水时间)加长,出现更多的沉渣淤塞盲沟。另外,当全部盲沟整体上抬后,可能会出现附近市政雨水井原来因为排水管坡度小于0.3%不能利用但现在可以利用的情况,这时就可根据需要增加可以利用的雨水井。
(2)当盲沟抗浮水位比设计抗浮水位低0.5米以内时,则盲沟设计满足要求,不需再做调整。
(3)当盲沟抗浮水位比设计抗浮水位高时,则盲沟设计不满足要求,需重新设计(可减小排水管和盲沟坡度,但不应小于0.3%)。
7 有临空面的地下室盲沟设置问题
当地下室有一面或几面为临空面时,抗浮水位不能以临空面处室外标高为基准取值。因为地表水从有土体一侧下渗,从临空面一侧排出需要一定的时间(砂质土时间短,粘性土时间长,淤泥或淤泥质土时间更长),在这段时间内,有土体一侧水位会升高,极端情况有可能与该侧室外地面平;从临空面一侧地下室底板下冒出的水可能具高承压性。也就是说,地下室靠临空面一侧抗浮水位可能高于室外地面,整个地下室底板的抗浮水位从临空面一侧到有土体一侧越来越高。有土体一侧抗浮水位比相应室外地面适当降低是可以的,但绝不能降得太多。如果需要降低抗浮水位,必须同周边均有土体的地下室一样设盲沟,加快地下水的排出,以达到降低抗浮水位的目的。
8 设计文件中应明确的几点要求
(1)地下室开工前,甲方应再次核对市政雨水井内排水管顶标高是否与图中标注的一致,如高于图中标注标高,且导致连接盲沟和市政雨水井的排水管坡度小于0.3%,则应重新确定抗浮水位,修改地下室抗浮设计。
(2)地下室周边回填土应分层夯实,压实系数不应小于0.94。回填材质在盲沟顶面以下推荐采用级配砂石、砂土(此时盲沟无需专门设置透水槽);盲沟顶面以上宜按照抗浮标准第6.5.5条第3款规定,采用分层夯实的粘性土、灰土或浇筑预拌流态固化土、素混凝土等弱透水材料(至少应在肥槽顶部高度不小于500mm的范围内采用粘土夯实作为隔水层),以减少地表水下渗。
(3)当局部有透水层通到地面时,应在地面处换填厚度不小于500mm粘土夯实,作为隔水层,以防雨水沿透水层下渗到地下室周围。
(4)监测:
1)应进行地下水水位和水压力监测,配置可实时监控地下水水位的设施,建立自动监控系统,设置水压监测与预警系统;(见抗浮标准第7.4.2条、第7.4.7条、第7.4.3条、第7.4.5条)
2)监测过程中应及时整理监测资料,预测可能发生的问题;(见抗浮标准第10.4.4条)
3)地下水水位明显超过设计控制水位时应及时抽排;(见抗浮标准第10.4.3条)
4)监测结果应及时反馈给设计、工程管理部门、产权单位及使用单位;(见抗浮标准第10.1.8条)
5)监测信息宜建立数据库管理系统,成果报告、原始数据记录应一并提交归档;(见抗浮标准第10.1.9条)
6)其余监测要求详见抗浮标准第10章规定,监测项目见抗浮标准第10.1.2条。
(5)维护:
1)监测数据出现异常或发现影响正常使用现象时应及时维护;(见抗浮标准第10.1.7.4条)
2)应配备长期维护措施;(见抗浮标准第6.5.4条)
3)应对检查井及其设施(如集水管)进行经常性维护(疏通),设施一经损坏必须及时修复。具体按抗浮标准第10.4.5条规定执行。
4)维护结果应及时反馈给设计 、工程管理部门、产权单位及使用单位;(见抗浮标准第10.1.8条)
5)其余维护要求详见抗浮标准第10.1.7条。
(6)应急措施:
1)应配备长期应急措施;(见抗浮标准第6.5.4条)
2)既有工程抗浮失效且可能产生进一步危害时,宜采取下列应急措施:
①隆起变形较大区域宜降水、泄压等;
②应封闭地面裂缝,并设置截水、排水设施;
③条件允许时宜增加上部荷载,并对既有结构进行临时支撑。
(见抗浮标准第6.5.5条)
(7)检验和验收:
抗浮工程应作为建筑地基基础工程的分项工程进行施工质量检验和验收(见抗浮标准第6.5.4条)。具体按抗浮标准第9章有关规定执行。
9 存在的问题
在地下室周边设置盲沟降低抗浮水位方法虽然能降低抗浮水位,但存在以下四个方面问题(这也是诸如在地下室底板下设置盲沟等方法的共性问题),在专家论证会上或盲沟设计前应告知建设单位,供建设单位决策。
(1) 设计方法不成熟
目前尚缺少定量的设计计算方法,基本上处于概念设计阶段,有待进一步研究。(见抗浮标准
第7.4.1条条文说明)
(2)实际使用年限达不到50年
目前工程界对采用盲沟降低抗浮水位方法存在耐久性质疑(见抗浮标准第7.4.3条条文说明),必须长期维护才能维持其有效性(见抗浮标准第6.5.4条条文说明)。即使按规定长期维护,实际使用年限依然很难达到与建筑工程结构设计使用年限相同的50年,因为天长日久,反滤层可能会被堵塞,地下水无法进入盲沟排走。如果按照抗浮标准第3.0.4条“抗浮构件及设施的耐久性年限不应少于建筑工程结构设计使用年限”的规定(强条),盲沟降低抗浮水位的方法是不能采用的,但基于有些工程实际采用了盲沟降低抗浮水位的方法,抗浮标准仍然将其(即抗浮标准中的“排水限压法”)列入规范,同时提出了严格的检测、验收、监测、维护及配备应急措施的规定。因此,如果盲沟使用一定年限后失效,不能降低抗浮水位,则需重新施工盲沟。
(3)后期维护费用高
在地下室周边设置盲沟降低抗浮水位方法必须长期维护才能维持其有效性,尤其长期监测和维护将耗费大量的投入,因此,需要在技术可行、安全可靠、资源节约的前提下选用,否则难以确保与设计使用年限同期的效果(见抗浮标准第6.5.4条条文说明)。不能因为短期投入少而忽略了长期维修或维护费用(见抗浮标准第7.4.3条条文说明)。
(4)盲沟使用有风险
在地下室周边设置盲沟降低抗浮水位方法要求严格,如果实际场地的地质情况(土质和地下水)掌握的不准确、盲沟没有进行设计或设计错误、施工质量得不到保证或没有定期进行疏通维护,造成盲沟沉降开裂、集水管堵塞或盲沟水来不及排走等问题,盲沟降低地下室抗浮水位的方法都将失败,出现地下室抗浮破坏。
10 结语
(1)在地下室周边设置盲沟降低抗浮水位方法应同时具备以下条件:
1)建筑场地地基为弱透水性土层;
2)地下水量不大、排水面积较小;
3)常年水位低于盲沟标高;
4)周边有较低的市政雨水井或小区雨水井。
(2)在地下室周边设置盲沟降低抗浮水位方法的基本思路是:“隔”、“排”结合,“隔”就是肥槽顶面及局部通到地面的透水层顶面,高度不小于500mm的范围内,应采用粘土夯实作为隔水层,以尽可能减少地表水下渗;“排”就是让从肥槽外侧或肥槽内渗入的水尽快进入盲沟排走,将地下水位控制在盲沟标高以下。
(3)应检验和验收。
(4)应建立自动监控系统,设置水压监测与预警系统,进行地下水水位和水压力监测。
(5)应定期进行维护,清除集水井沉渣,疏通集水管、排水管道。
(6)应配备长期应急措施。
(7)在地下室周边设置盲沟降低抗浮水位方法存在设计方法不成熟、实际使用年限达不到50年、后期维护费用高和盲沟使用有风险四个方面问题,这四个方面问题应在专家论证会上告知甲方,供其决策。
(8)在建筑使用期间可能需要重新施工盲沟,因此,采用该方法应慎重。
致谢:本文写作过程中,咨询过熊时权、施文利等专家,在此表示感谢!
注:欢迎大家关注小编的微信公众号“土木智库”,里面有小编整理的建筑行业的众多资料,有一建、二建、造价、消防视频和课件,欢迎大家的加入