40㎡两室,狂打10处柜子,还住下一家四口人,绝了

40㎡两室,狂打10处柜子,还住下一家四口人,绝了

40㎡两室,狂打10处柜子,还住下一家四口人,绝了

基本信息

房屋面积:40平米

房屋户型:2室2厅

居住人口:4人

改造前户型图

40㎡两室,狂打10处柜子,还住下一家四口人,绝了

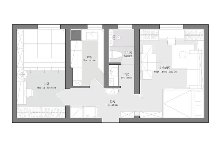
改造后户型图

40㎡两室,狂打10处柜子,还住下一家四口人,绝了

01

玄关

40㎡两室,狂打10处柜子,还住下一家四口人,绝了

40㎡两室,狂打10处柜子,还住下一家四口人,绝了

02

卫生间

40㎡两室,狂打10处柜子,还住下一家四口人,绝了

40㎡两室,狂打10处柜子,还住下一家四口人,绝了

03

厨房

40㎡两室,狂打10处柜子,还住下一家四口人,绝了

40㎡两室,狂打10处柜子,还住下一家四口人,绝了

40㎡两室,狂打10处柜子,还住下一家四口人,绝了

04

多功能房

40㎡两室,狂打10处柜子,还住下一家四口人,绝了

40㎡两室,狂打10处柜子,还住下一家四口人,绝了

40㎡两室,狂打10处柜子,还住下一家四口人,绝了

40㎡两室,狂打10处柜子,还住下一家四口人,绝了

40㎡两室,狂打10处柜子,还住下一家四口人,绝了

05

主卧

40㎡两室,狂打10处柜子,还住下一家四口人,绝了

40㎡两室,狂打10处柜子,还住下一家四口人,绝了

40㎡两室,狂打10处柜子,还住下一家四口人,绝了

编辑留言

欢迎大家私信小编,来聊聊装修这件事吧~