
TSING HORSE DESIGN
丨青马别墅空间设计最新案例丨

PROJECT
INFORMATION
建筑户型 ︱ 底跃
设计风格 丨 现代简约
项目名称 ︱ 信达美墅
施工面积 ︱ 400平米
全案产品 丨 东芝空调、3M净水、华为智能、方太电器、高仪洁具、斯米克瓷砖、雷狄尼高级定制

PROGRAMME
设计方案
-
本案400㎡底跃,南北通透,采光很好
设计出于对空间使用便利性与理想化的考量
将木饰自然风格与空间功能进行有机结合
最大化打开空间弱化功能分区
大气简约的调性就像林间徐来的阵阵清风
吹拂着碧波荡漾的层层水纹
不请自到,一种都市闲散舒适的生活状态
by-本案设计师苏小明寄语
-

-
餐厅与客厅的转场,彼此流通又互为留白
摒弃空间的繁复属性,让生活惬意自在
高级灰的艺术涂料铺垫出美学底色
木色元素的运用及氛围壁炉点缀
渲染出克制、流动的空间秩序
-

-
女儿房将之打造成承载生活与艺术的容器
在这方简洁天地内,以当代手法营造美学交集
温柔的色彩语言和充满雕塑感的空间陈设
描摹出不一样的生活场景,感受时光刚柔并济的浪漫
-

-
一楼原厨房和餐厅较小,进门门厅与餐厅相互干扰
楼梯空间尺寸偏小,每一层卧室卫生间也比较紧凑
从功能出发改造布局,提升生活品质感
开放的中厨结合岛台文化,引领新的生活方式
营造出空间的诗性气质,光与影的浪漫亦呼之欲出
-

-
一楼主卧充分尊重场域特征
以舒适性与采光性为主要关照点
延续了整体空间简洁明朗,亲昵舒适的环境布置
温馨、柔和的床头灯赋予空间灵动的气息
让屋主能够享受到空间带来的多重愉悦感
-


-
地下室两层都有南北两个采光井
空间的内外一体,有了自然的融入
最大化地降低了人固有的压迫感
至美于物,自在于心
自由而流动,呼之欲出
-

-
负一层卫生间自然材料水磨石的运用
安静环境中那一抹悦动的绿
在单色的氛围环境里焕发生机
以光为介质描摹空间的线条和节奏
生活如同诗一般美好
-
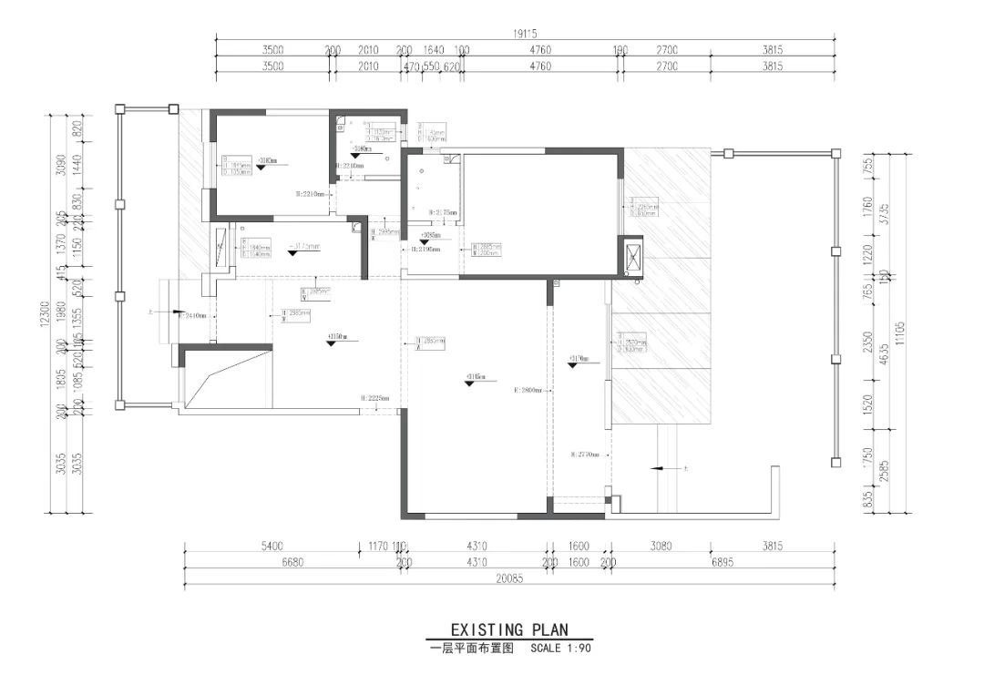
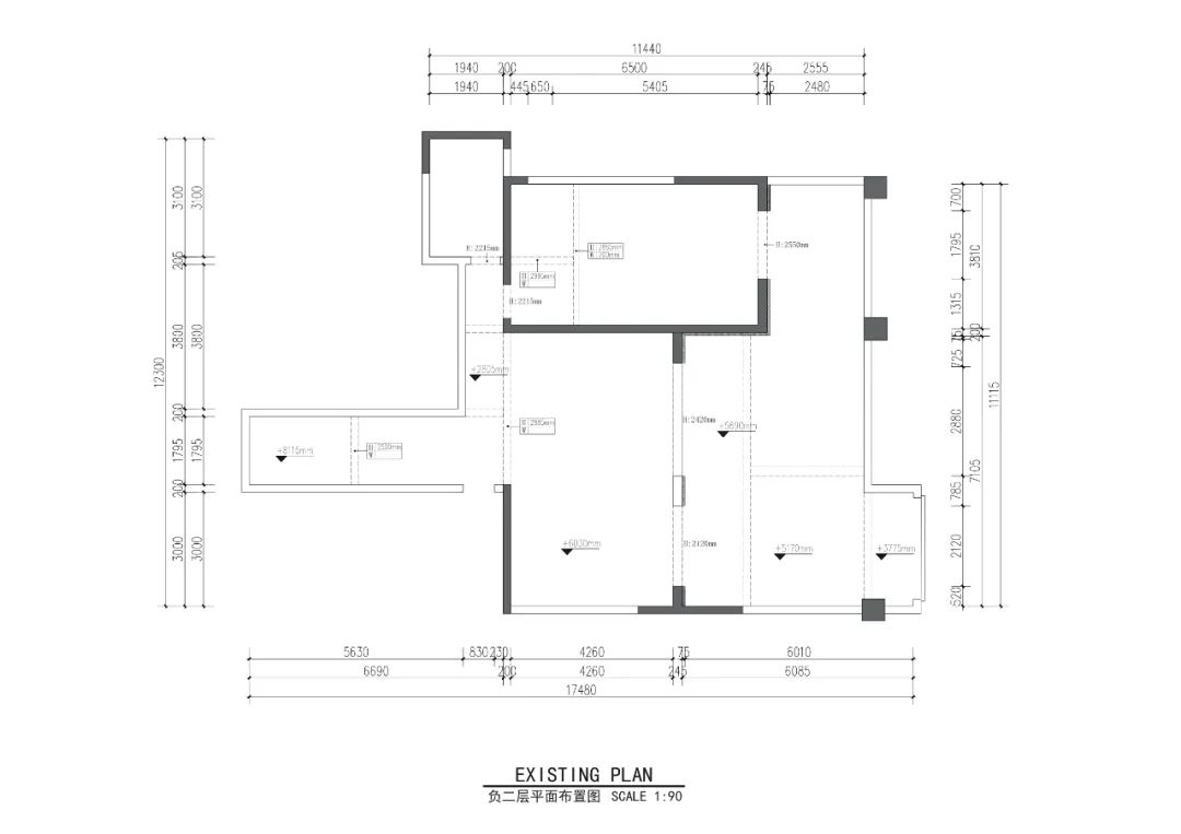
ANALYSIS DIAGRAM
分析图
-

1F原始平面图

1F平面布局图

-1F原始平面图

-1F平面布局图

-2F原始平面图

-2F平面布局图
INFO
- 主案设计 -
苏小明
- 工程管家 -
刘强
-客户经理 -
孙晨凯
- 设计公司 -
青马别墅设计
-
DESIGNER
主创设计
-

苏小明
青马设计主创设计师
毕业于清华大学美术学院高研班室内装饰行业
室内装饰行业从业21年以上,专属大宅全案设计
资质
中国室内装饰协会注册设计师
国际建筑装饰室内设计协会-高级建筑室内设计师
多次参加米兰国际家居展、德国包豪斯设计学院、北欧等国内外学术论坛
设计理念
设计的目的不是改变而是创造
殊荣
中国室内装饰协会注册高级室内设计师职称
中国建筑装饰协会高级室内建筑师
2012年荣获第三届国际空间环境艺术设计大赛“筑巢奖”铜奖
2016年荣获清华大学“水木清华杯”铜奖
2018年获全国“优秀设计师”称号
2019年获全国金堂奖优秀奖
案例
北京:望京别墅、西山一号等
南京:玛斯兰德、君临紫金、嘉瑞山庄
雅居乐、钟山紫庐、德基山庄、长江路九号等
海口:鸿洲江山别墅 、富力湾别墅
西安:逸翠园、林隐天下、中海铂宫
鸿基紫韵、曲江公馆和园、湖城大境
中海御湖壹号、华侨城、盘古山庄、荣禾曲池东岸
南湖九号院、中海百贤府、凤凰池
金地九玺、曲江源著等