
伴随着每一个新生命的降临,带给每个家庭的都是无尽的喜悦。

每一个母亲孕育胚胎前都要经过受精、受精卵发育、输送和着床等一系列过程。
也就是精子与卵子在输卵管内结合后形成受精卵,受精卵再一步步走向母体已为自己准备好的“家”——子宫腔,在那里扎根生长。

有些受精卵在去往自己家的路上迷了路,没有能到达自己的目的地,便形成了异位妊娠,俗称“宫外孕”。

这些迷路的受精卵大多停留在精子与卵子相遇的地方——输卵管;有些受精卵逆向跑去了卵巢;有的速度太快直冲到宫颈。
怎么知道受精卵迷了路?

停经:异位妊娠表现各异,毕竟形成受精卵,月经便不会如期而至,便出现停经。如果好长一段时间没来月经,B超医生也没在“家里”找到受精卵,要当心受精卵是不是迷路了。

腹痛:是受精卵迷路发出的最主要的求救信号。
受精卵迷路常发生在输卵管,输卵管是受精卵回家路上的一条狭小道路,随着受精卵一步一步长大,输卵管壁越来越薄,母亲会感到下腹疼痛或酸胀。最终会有一方妥协,受精卵放弃继续生长自行流产或者输卵管*破爆**造成管腔破裂,常伴随突感一侧下腹部撕裂样疼痛及恶心、呕吐。流产或破裂引起的出血积聚在腹腔引起肛门坠胀。

阴道出血:受精卵迷路多伴阴道出血,出血少于月经量,淋漓不尽。有些月经不规律的患者会将这次不正常的阴道出血当做月经。

晕厥与休克:受精卵自我流产或输卵管破裂引起腹腔内出血的时候,轻者可出现晕厥,严重者可出现失血性休克,甚至危及生命。

迷路的受精卵怎么办?

迷路的受精卵最终将通过药物或手术与素未谋面的父母说再见了,医生会根据每个患者及具体情况进行选择。
如果怀疑自家的受精卵迷路了一定要去医院检查,别让一次受精卵的迷路造成不可挽救的后果。
谁让受精卵迷了路?

目前我们已知的高危因素有:
输卵管损伤史、盆腔炎性疾病史、盆腔或或输卵管手术史、宫外孕病史、吸烟及饮酒史等。
宫内节育器避孕失败、口服紧急避孕药失败和多次流产、刮宫等均可影响受精卵到达目的地。
如何预防受精卵迷路?

预防宫外孕需要注意以下事项:
不抽烟,不酗酒;
避免反复人流;
注意个人卫生,减少盆腔炎、输卵管炎症的发生;
有宫外孕史在一年内一定要做好避孕工作;
发现怀孕要第一时间去医院检查。

宫外孕特别是输卵管部位的宫外孕继续长大会导致输卵管破裂、出血,抢救不及时会导致休克甚至死亡。
每一个生育年龄的女性,只要是有过*生活性**,无论月经延迟、停经、或发现自己怀孕,都不能掉以轻心,都会有发生宫外孕的可能,除了验血验尿,都要做早孕期的超声检查,以排除宫外孕。

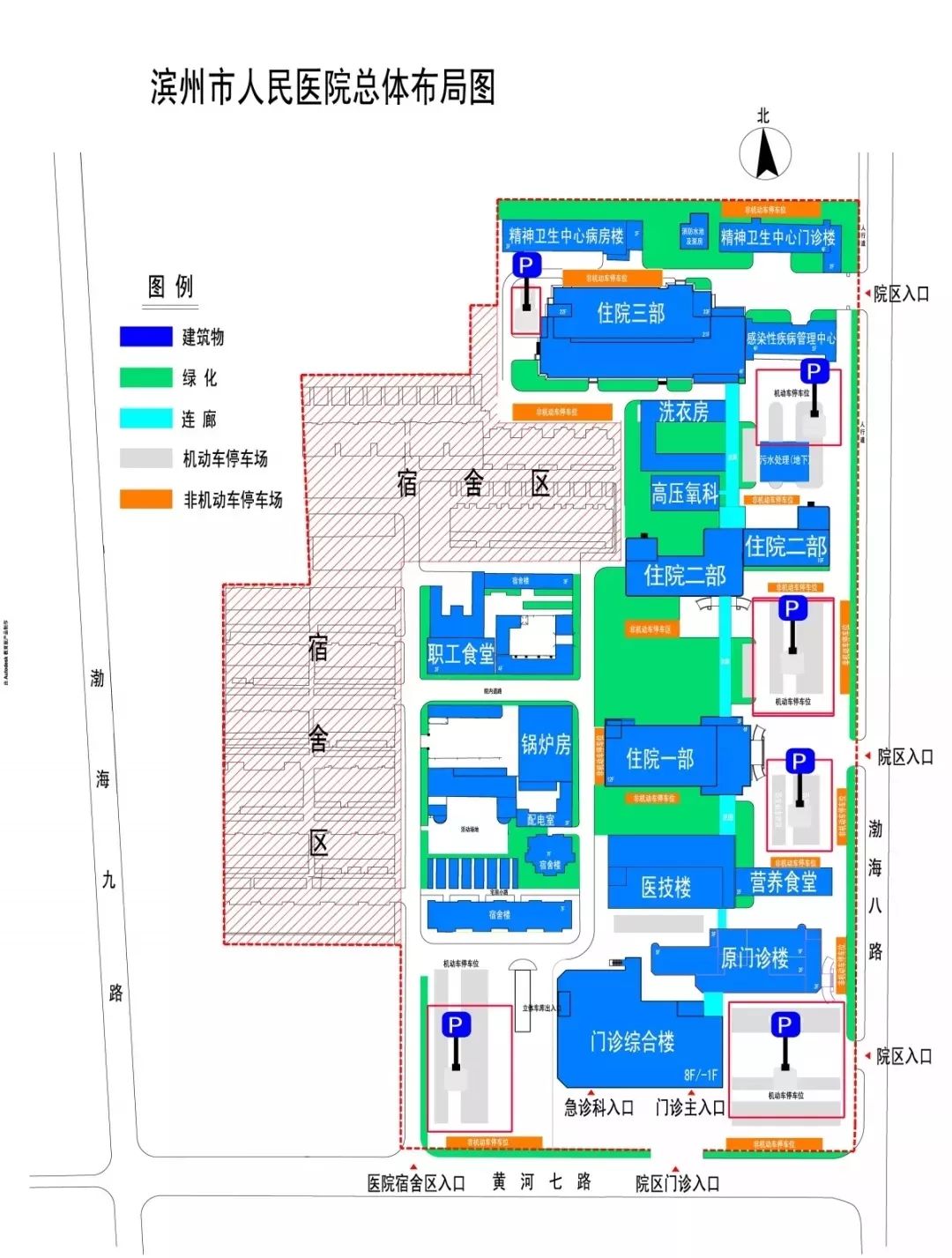
温馨提示
途经医院的公交车有:
103路、108路、22路、26路、29路、30路、33路、36路等
在滨州汽车总站乘坐103路或108路公交车可直达滨州市人民医院。

图中标注P的为医院停车场
▼
就诊少排队 检查结果早知晓
▼

▼
▼
