有些时候需要临时打印一下CAD图纸,但是电脑中又没有安装CAD软件,这个时候该怎么办呢?一定要安装CAD软件才能打印CAD图纸吗?接下来就和小编一起来看看不安装CAD软件打印CAD图纸的方法吧!
1、在浏览器中搜索并进入浩辰CAD看图王网页版,然后点击页面中的"打开图纸"—"选择本地文件"打开你要打印的图纸。如下图所示:


2、在左侧菜单栏中找到并点击"打印"按钮,即可调出"输出"对话框。如下图所示:

3、选择要打印的尺寸(A0—A4),方向(横向or竖向),颜色(黑白,灰度,彩色),范围(当前视图,全图,窗口),比例等。
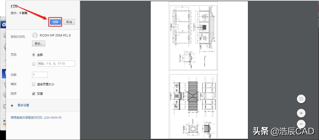
4、点击确定之后,就可进入"打印"页面,选择相应的打印机以及打印范围、打印份数后点击"打印"按钮即可。如下图所示:

不用*载下**安装CAD软件,在网页上直接打开查看/打印CAD图纸,让你在没有CAD软件的情况下依然可以对图纸进行相应的操作。
以上就是给大家介绍的在电脑中没有*载下**安装CAD软件的情况下打印CAD图纸的方法教程,是不是很便捷?下次再遇到此类问题可以尝试用本篇CAD教程介绍的方法来解决哦!
部分图片来源自网络如有侵权请联系删除,还不明白的小伙伴可以给我留言哦~关注我get更多CAD入门学习小技巧!