设计得到(百万设计师的职业提升平台)
施工图项目,包含哪些工作内容?
施工图一共包含6个工作内容
1、方案设计
这个项目包含两种方案设计
a、类似空间
在原有的方案上进行调整性的设计

b、后勤区或者后场区的设计

2、施工图设计
一套完整的施工图包含8各部分
a、图纸目录

b、设计说明

c、材料表

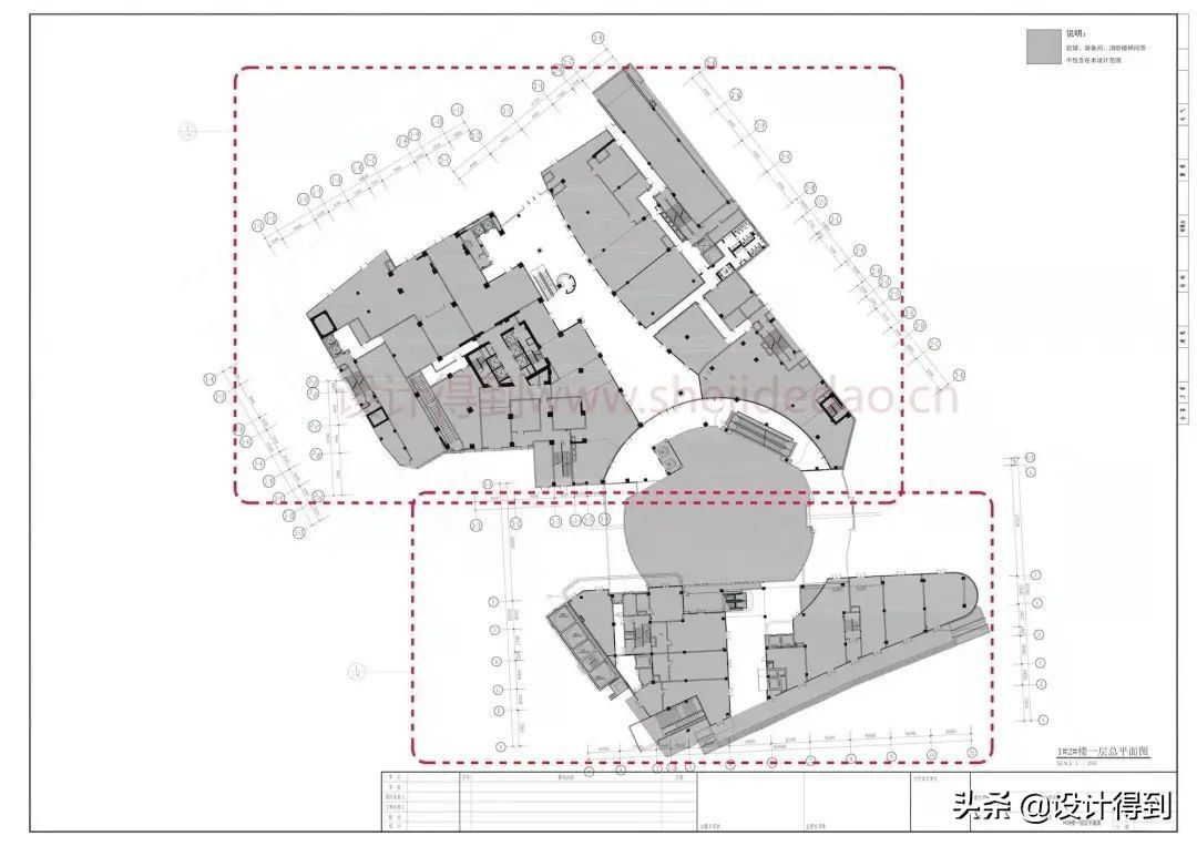
d、平面系统图

e、放大图

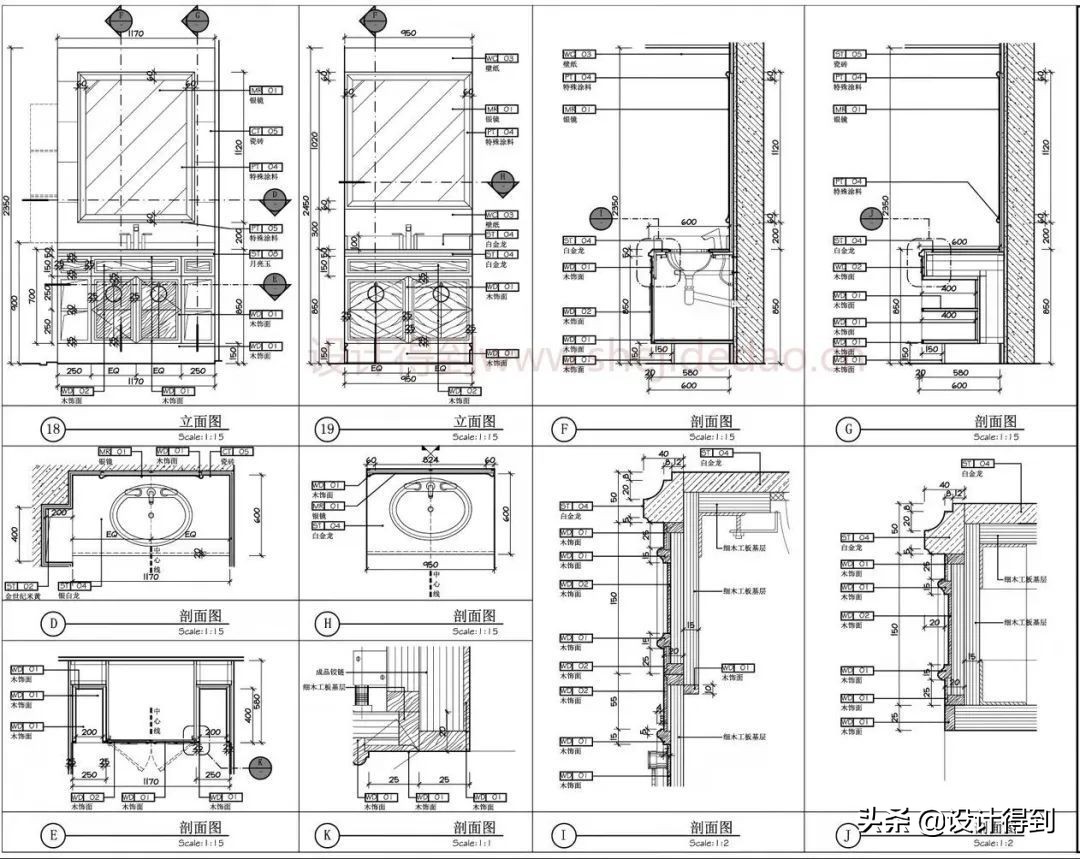
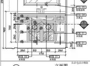
f、立面图

g、门表图

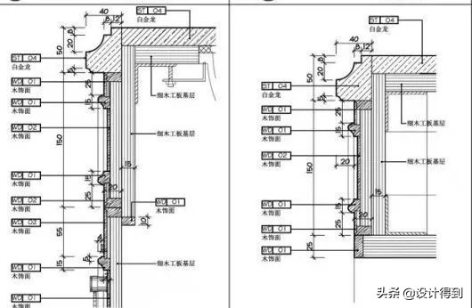
h、节点图

3、二次机电设计
一包含3个部分
a、电气

b、暖通

c、排水

4、结构设计
主要会涉及到建筑结构的改造
如楼板开洞、加固
新建钢结构楼梯、夹层等

5、服务设计
内容比较广泛
a、现场测绘
b、项目交底
c、项目驻场
b、项目跟踪
都属于服务设计的范畴
6、其他专业设计
包含
a、灯光专业

b、声学专业

c、厨房专业

b、智能化专业

e、导视系统专业

更多干货知识,微信公众号搜索:dop设计