讲真,老房子都是“潜力股”,看完她家,我只剩羡慕的份儿了!
本期要为大家分享的,是一套40㎡的老房改造案例,房龄超过了30年。屋主夫妻都是从事装修设计的工作,这套房子也是由他俩亲自设计改造的。装修共计只花费了8w,完工效果却出奇的棒,快来一起看看吧!

▲装修实拍图
//户型分析//
整屋面积约40㎡,原户型有两间卧室,但没有客厅和餐厅,功能缺失比较严重;室内的储物空间不足,无法满足正常的收纳需求。好在家里有一个大阳台,可以重新规划利用一下。

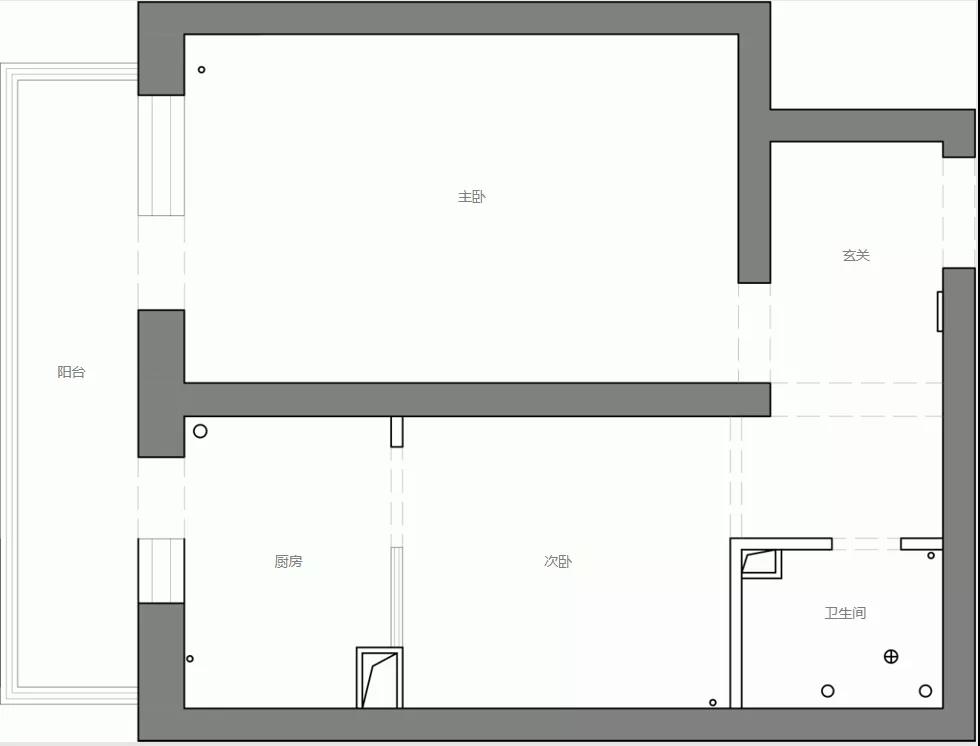
▲户型平面图
//设计亮点//
①以中心承重墙为分界点,把房子划分为动区和静区,实现合理的生活动线。
②把厨房空间分为两部分,一部分作为厨房的功能补充,另一部分作为清洗区。
③设计三分离式卫生间,确保干湿分区,还能缓解早高峰期的使用压力。

▲装修平面图
玄关
入户玄关的空间很小,为了减少拥挤感,屋主没有定做顶天立地的收纳柜,而是摆放了一张1.2米高的藤编鞋柜,透气性很好;柜子深度约30公分,台面空间可以用来摆放钥匙、包包等随身小物件;柜门是藤编的设计。

▲玄关实拍图
像这种比较有设计感的鞋柜,成品价格都很贵,屋主家的这款是找木工定做的,效果和成品毫无差别。他们先设计好鞋柜的图纸,然后在网上购买材料和配件,交由木工来定做,最后再自己刷漆,超赞!

▲玄关实拍图
玄关的另一侧,依次设置了穿衣镜、挂钩和换鞋凳,方便屋主出门回家时换鞋、整理仪容。墙面悬挂了两幅女主人画的画,在绿植的映衬下,显得格外温馨。

▲玄关实拍图
客厅
原主卧被改造成了客厅、餐厅和厨房,先来看看客厅。两面墙刷了莫兰迪绿色的墙漆,搭配木地板和原木家具,氛围清新又自然,一走进这个空间就感觉很放松。

▲客厅实拍图
客厅是按照屋主二人的生活需求来设计的,规划了沙发和办公区,兼顾了休闲和工作的需求。沙发也是木工定做的,由胡桃木地台和棕榈垫子组成,还可以当客床来使用。客厅内留出了一面大白墙,搭配投影仪来使用,在家就能享受影院级别的观影体验。

▲客厅实拍图
工作区内摆放了一张原木色的书桌,并利用墙面空间做隔板书架,拿取很方便。书架是可折叠式设计,不用的时候可以靠墙收纳,底部还安装了挂钩,可以用来悬挂小物件,有效释放了桌面空间。

▲客厅实拍图
餐厨
穿过客厅,就来到了餐厨区。室内是餐厅和西厨,室外的阳台改造成了中厨,功能划分得很清晰。别看餐厨布置得简洁清爽,改造难度还是很大的,主要是烟道的改动需要在现场一点点地校对,非常考验技术和耐心。

▲餐厨实拍图
西厨区定制了一个操作台,下面分别做了储物柜和烤箱,把每一寸空间都充分利用了起来。操作台和墙面之间,提前预留出空间,刚好把冰箱嵌入其中,整洁又美观。屋主借助隔板置物架和挂钩,来实现垂直收纳,把厨具和瓶瓶罐罐都收纳到了墙上。

▲餐厨实拍图
原木风的小餐桌靠墙摆放,左侧是阳台隔断,内部做了镂空处理,可当作餐边柜来使用,坐在餐桌上就能随手拿到餐具,很方便。

▲餐厨实拍图
阳台两侧分别设置了烹饪区和洗手台,中间靠窗的位置做了一个窄台面,既实用又不会影响阳台的采光。屋主用电陶炉代替了燃气灶,这样就不用重新接燃气管道了,省时又省成本。

▲餐厨实拍图
主卧
主卧入口和卫生间的交界处,有一个比较小的空间,被屋主改造成了储物间,设计了嵌入式的收纳柜,用来收纳一些生活杂物。特别喜欢主卧的这个拱门造型,缓解横梁带来的压抑感,彰显了主人的尊贵身份。

▲主卧实拍图
考虑到主卧的面积比较小,很难放下成品大床,于是屋主便在主卧做了一个整体地台,把地面抬高了10公分,直接把床垫放在地面上即可。

▲主卧实拍图
屋主家选用的床垫,是日式软垫,白天不用的时候可以折叠起来,收纳到柜子里去,释放出主卧的使用空间。

▲主卧实拍图
主卧的侧面墙设计了开放式收纳架,是屋主亲自动手打造的,由金属架和实木隔板组成,搭配牛皮纸储物盒,轻松收纳生活用品。

▲主卧实拍图
主卧外面的阳台,被屋主改造成了清洗区和晾晒区。薄荷绿色的墙砖,搭配水磨石地砖,再点缀一些绿植盆栽,视觉感自然清新。

▲阳台实拍图
阳台上的绿植被女主人打理得很好,长得非常旺盛,宛若家中的“小花园”。

▲阳台实拍图
卫生间
浅粉色的卫生间,充满了少女心,给人眼前一亮的感觉。为了缓解早高峰期时的使用压力,屋主做了三分离式的卫生间,洗手台、马桶间和淋浴间各自独立,使用时互不打扰。

▲卫生间实拍图
马桶间上方是外露的暖气管道,没有包进吊顶内,冬天可以靠它来取暖。

▲卫生间实拍图
【本期总结】
回顾本案,整屋设计简约清新,充满了家的温馨感。屋主通过自己设计改造,把自己喜欢的事物都装进了房子里,用最低的成本打造出高颜值的家,也太让人羡慕了吧!如果你也喜欢本期内容,欢迎点赞收藏!
#生活好物分享##梦想点亮生活#