优秀的装修设计,可以让小房子,拥有大享受。
本期屋主,是一对90后夫妻,他们的25㎡新家最近刚装修好。如果光听面积,你一定会认为这对夫妻过得是“蜗居”,但当你看到他们装修好的新家时,便会被屋内精致又温馨的场面所吸引,也许会开始羡慕他们的生活。

▲装修实拍图
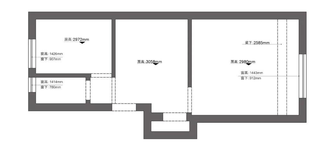
//户型分析//
这套房子的面积约25㎡,是一室一厅的格局,本来使用空间就已经很小了,再加上室内的隔墙比较多,不仅采光差,而且整体感很拥挤。

▲户型平面图
//设计亮点//
为了提升居住的舒适性,屋主二人找到了设计师进行户型改造,具体调整如下:
①整屋配色以白色为主,简约清新,可以提升视觉空间感;
②拆除卧室、厨房的非承重墙体,做开放式格局,减少拥挤感;
③储物空间化零为整,以嵌入式收纳柜为主,简洁又实用。

▲装修平面图
这套房子,没有用花哨复杂的设计手法,而是用极简的风格来诠释家的温馨与舒适。屋内不做吊顶、墙面刷大白、地面铺木地板,这一切看起来最返璞归真的设计,构筑了屋主二人的幸福天地。

▲装修实拍图
屋内没有玄关,一进门就可以看到餐厅和卧室,相对于大户型来说,私密性会差一些。入户左侧,做了一个嵌入式的窄鞋柜,大概可以收纳十双鞋子;鞋柜的下方和中间,都做了镂空出来,用来放拖鞋和随身小物件。

▲餐厅实拍图
原户型的厨房很小,设计师拆除了厨房隔墙之后,将厨房空间延伸到餐厅区域,并做了一字型格局,让烹饪区域变得更宽敞。冰箱做了嵌入式设计,需提前预留空间,刚好卡在橱柜和吊柜中间。

▲厨房实拍图
橱柜的颜色是纯白色,柜门表面做了简单的线框造型,搭配奶灰色的台面,看起来整洁又大气。厨房还特意设计了高低台,切菜区和清洗区的高台面是90cm,烹饪区的低台面是80cm,超级实用,不用担心腰痛了。

▲厨房实拍图
因为家里没有阳台,所以屋主便买了台洗烘一体机,嵌入在厨房橱柜区域,平时洗完澡以后,可以直接洗衣、烘干,很方便。

▲厨房实拍图
卧室的落地大株绿植,是女主精心挑选的,既能为室内空间做点缀,也与外界空间做了相呼应,让生活充满了自然清新感。

▲卧室实拍图
1.8米的大床紧挨餐厅圆桌摆放,所以屋主省略了右侧的床头柜,这样可以给餐椅预留出足够的摆放空间。

▲卧室实拍图
床尾处定制了一组顶天立地的高柜,与墙面完美衔接,一点空间都不浪费。柜子的上方做储物使用,用来放换季衣物、被子等;下面是挂衣区,可悬挂应季衣物;右侧的开放式柜格,可以搭配收纳箱使用,存放内衣和叠放的衣物。

▲卧室实拍图
- 肤感白色衣柜门,搭配黑色长拉手,好看又实用。
- 薄纱窗帘,简约素静,契合整屋极简的装修风格。

▲卧室实拍图
考虑到家里的面积小,屋主二人平时在购物方面,还是非常克制的,再加上每天都会一起收拾屋子,才能时刻保持屋内的整洁。

▲卧室实拍图
卧室墙面做了留白设计,这也是屋主想要传达的生活理念:设计需要留白,生活亦是如此。

▲卧室实拍图
卫生间借用了一部分厨房和餐厅的空间做了扩容,面积大概增加了1.5㎡,这样就有足够的空间做干湿分区了。内部配色,依然延续了整屋的简约风格,以纯白色和原木风为主。

▲卫生间实拍图
壁挂马桶的右侧和上方,都设置了收纳区,可以用来放毛巾、衣物、卫生纸和香薰等。

▲卫生间实拍图
【本期总结】
回顾本案,虽然这套房子很小,但是充满了生活气息,也让我们感受到了屋主夫妇对生活的热爱,令人羡慕。如果你也喜欢本期内容,欢迎点赞收藏!
#我的花样生话#