农村宅地太小怎么办,让农村包工头做绝对会浪费一个本就不大的宅地。最好的办法就是找设计师,即使是面宽不到9米,照样能给你盖出豪宅来,就像这栋四层新中式别墅,喜欢就行动起来,让华丽动人的效果图变成触手可及的“家”!
湖南长沙的一位客户,宅地面宽只有8.8米,找到我们设计了这栋别墅,宅地情况:


能看出现在的农村都开始规划了,差不多都是千篇一律的房子,就像商品房一样没有特色,再这样下去农村就失去了其富独有的特点。

建房前老家图片,房屋紧挨着房屋,感觉居住是比较拥挤的。


定制的别墅效果图,由于面宽不够,只能在层高上下手。

正面效果图

背面效果图
由于宅地的特殊情况,阳台下面空玄是因为旁边有别人的房屋。

俯视效果图
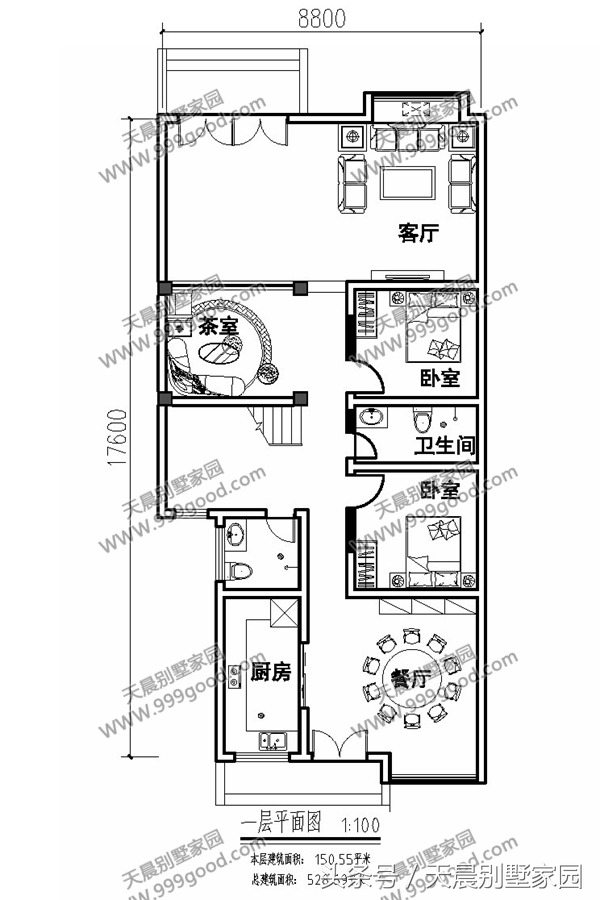
平面图
开间8.8米,进深17.6米占地面积:155.9平;总的建筑面积达 528.6平;
户型坐南朝北,前后各有入口户型通透,一层2间卧室、2卫生间、1会客厅,1间茶室,中间采用推拉门设计,视觉效果良好。

宅地面宽不够,两边自然是不能开窗的,只能通过阳台和内天井设计扩大采光度。4间次卧,1间主卧带衣帽间和书房,算是比较大气了。

三层一样的格局布置,天井一直贯穿三层,视野阔度相当高,即使不够宽敞也足够亮堂,这也是农村自建房追求的标准。

顶层一个超大露台,然后一个健身房配置,既能享受生活,又能感受运动的快乐。一个台球桌,一些健身器材逢年过节亲朋好友串门不怕无聊了。

关注天晨别墅家园,更多农村别墅图纸,自建房施工经验分享!