在公共环境中垃圾箱的设计要合理,方便随手就可将垃圾投入,无论垃圾箱开口,形状,大小怎么设计置,都要注意垃圾箱在距离投放者20-80cm时能将垃圾顺利准确的投入垃圾箱内,应按照具体情况设计垃圾箱摆放位置及数量,应考虑使用人群有小孩有成年人,垃圾箱开口距离地面的高度不超过80cm,也要考虑放置在人行道上的垃圾箱,让来往匆忙的人能准确的将垃圾投入垃圾箱内。在人流量较多的地方经常看到垃圾箱周围还有散落的垃圾。投放者在丢垃圾时若第一次没有投进去时,也会懒得捡起再去第二次投放,也有设计缺陷因素,垃圾箱容量小,人流量大,产生的垃圾较,在垃圾箱装满的情况下,投放者就会把垃圾丢在垃圾箱周围。为了方便垃圾能准确的投入,垃圾箱投放口一般都是采用两侧开口或向上开口。垃圾箱形式也五花八门,脚踏掀式的垃圾箱尺寸规格偏小,大多数是由塑料制成,不能装较多的垃圾,也不坚固耐用,适家庭室内使用偏多。可以看出,在进行设计时垃圾箱时要特别注意开口方向及打开方式。
清洁方便,环卫工人即是垃圾箱的使用者,也是垃圾箱的清洁维护者,因此,设计垃圾箱也要为环卫工人考虑,以便环卫工人对垃圾箱的清洁及打扫。现在使用较多的是垃圾箱外箱体和内胆,内胆设置污水处理装置,在清洁时,只需将内胆取出,倾倒里面垃圾即可。
安全与卫生原则。城市居民区的垃圾箱在使用时要近距离接触,卫生和安全就是首先要考虑的问题。首先,要保证垃圾箱制作材料的可靠无毒无害,经久耐用,一般选择不易生锈,不易被氧化腐蚀的材料;其次,再投放垃圾时,尽可能避免用手直接接触使用;第三,垃圾箱的形状、结构和尺寸规格设计要符合国家所规定的安全标准,棱角处做倒角设计,锋利边做打磨处理,保证使用者和清洁者的安全。
2城市分类垃圾箱设计方向
(1) 从垃圾桶的形态上改变
投放口形状,垃圾箱整体形状,垃圾箱颜色。
(2) 从垃圾桶的分类标识改变
省去五花八门的标识做到具体简单。
(3) 从宣传方面着手
增加垃圾箱的附属功能,垃圾桶在设计上需要考虑引导人们能够自觉的将垃圾分类正确分类,从垃圾箱的设计上来简化对垃圾投放的疑惑。垃圾的分类的意义重大。在设计时可以参考以下几点:
(1)选择合适的垃圾箱制成材料,其材料不易生锈,变形,氧化,损坏。(2)垃圾箱投放口尺寸扩大。(3)垃圾箱不论如何进行摆放,投放者可将垃圾准确投入到箱体内部。(4)垃圾扔入垃圾箱其口径下方设计下滑口以引导掉入内桶。(5)设计合适的清理窗口,垃圾清理人员容易及时方便清理垃圾。

图1 Pro/E生成的城市分类垃圾箱造型图

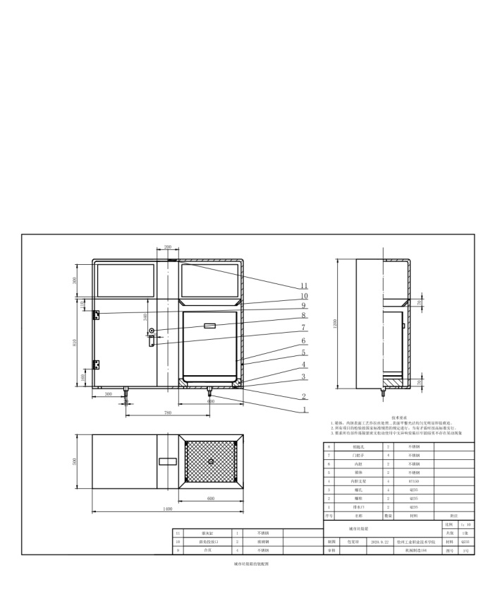
图2 城市分类垃圾箱装配图