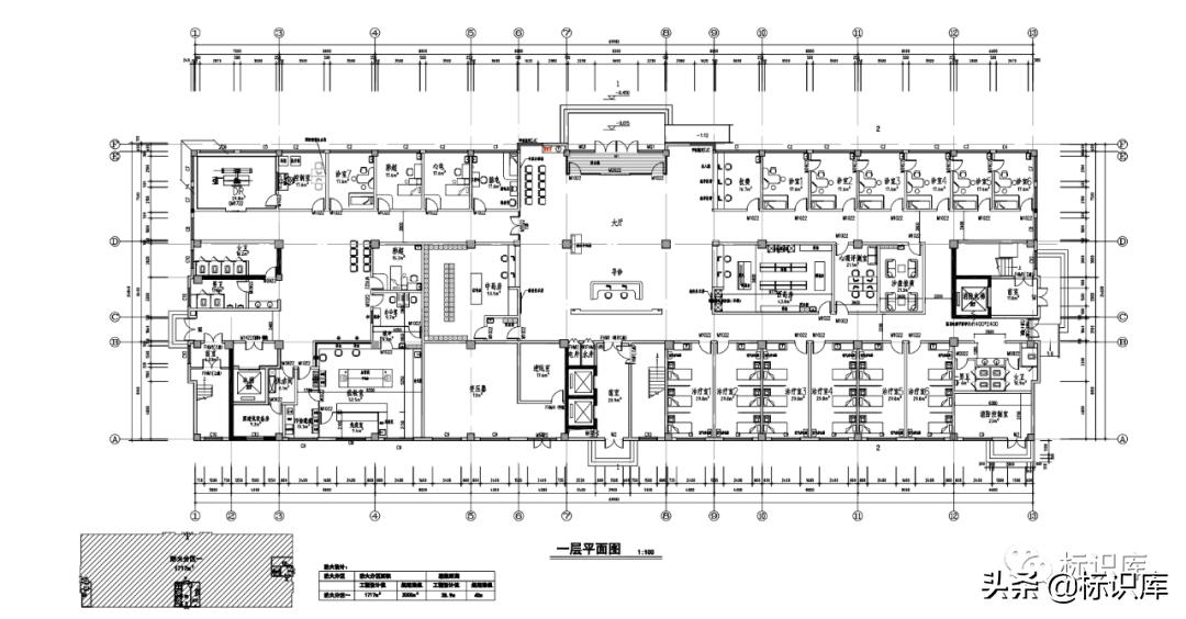
盐城静和精神病医院设计 (医院静配中心设置流程)

医院静配中心设置流程,盐城静和医院是公立还是私立

医院静配中心设置流程,盐城静和医院是公立还是私立

盐城静和精神心理医院设计

霍思设计作品

医院静配中心设置流程,盐城静和医院是公立还是私立

医院静配中心设置流程,盐城静和医院是公立还是私立

医院静配中心设置流程,盐城静和医院是公立还是私立

医院静配中心设置流程,盐城静和医院是公立还是私立

医院静配中心设置流程,盐城静和医院是公立还是私立

医院静配中心设置流程,盐城静和医院是公立还是私立

医院静配中心设置流程,盐城静和医院是公立还是私立

医院静配中心设置流程,盐城静和医院是公立还是私立

医院静配中心设置流程,盐城静和医院是公立还是私立

医院静配中心设置流程,盐城静和医院是公立还是私立

医院静配中心设置流程,盐城静和医院是公立还是私立

医院静配中心设置流程,盐城静和医院是公立还是私立

医院静配中心设置流程,盐城静和医院是公立还是私立

想要了解更多内容,欢迎关注我哦!点击下方链接,了解更多精彩案例

本文由「标识库」编辑整理,仅供分享交流

图源:霍思设计

图片版权归原作者所有