小型商业空间的品牌,空间设计仅仅就是VI表现,也是视觉设计的一个延伸,那我们在做这一类的空间设计的时候VI和SI是有怎样紧密的联系的呢?本文是林先森在设计思享思享汇上的实录,文中会阐述他对VI和SI的联系。
字数:约1378 建议阅读时间: 5分钟

我在设计行业从业有6年,之前主要是做高端的私宅,包括一些酒店和名宿的项目,这两年开始做一些商业的餐饮空间。
说到餐饮空间这一块于我渊源比较深,因为我父亲早年间就是做餐饮,做了有十多年的餐饮,当时自己对这块就比较感兴趣。然后我在广州在餐饮行业也认识了几位比较有建树的前辈,包括一些新兴的品牌。所以当时就萌生了这一类的想法,而且我觉得对于商业空间特别是小型的商业空间而言,简单而快速的设计特别重要。
在这里我想先简单的分享一下关于对设计师三个我自己的一点见解。我觉得设计师三个字基本上可以分开来解释,“设”跟“计”跟“师”三个字可以成为我们设计师在人生的发展,或在你设计的路程的发展上的三个阶段。设计的“设”它其实代表了是陈设,绘图,包括能够去动手。这一块其实就是在第一个设字的时候你会发现他是设计师比较基础的阶段,就像你刚刚毕业或者刚刚学习的设计的时候你要开始先学习画图,画CAD,手绘,学3DMAXA等等各种不同的软件去表达。
而在到达第二个字“计”字的时候你设计的范围可能就会更多一点,计代表着计算,跟价值有关,也就是你做设计的时候不光考虑这个图好不好看,落成的时候是什么样,你更多的要考虑在实际的应用上的价值,比方说材料的价值,整个项目作为商业项目他的商业投资回报是有一定比例的,你做项目的时候都要非常的清楚。在这个阶段你学会了做方案,也学会了在一定预算范围内把这个方案控制到最好,在这种情况下你基本上已经是一个还算OK的设计师了。
那最后到达设计师的“师”字,对于这一点我比较想讲的是“师”字能够达到一种引导客户,引导甲方的一种层次,其实做设计与不做设计的人而言无非我们做了更多的这一块专业的项目,我们有比较多的专业知识的掌握,在这一块的经验上我们会比目前的客户更丰富一些,仅此而已,所以我希望的是我们对自己要做的整个行业,就像今天我要讲的小型商业空间,做设计不光光要把图画的好看,设计出一个好看的门店,跟重要的是对于这种小型商业的理解必须到位。
我再讲一下我对于小型商业空间的理解,小型商业空间的空间设计说白了非常的简单,为什么我当时愿意做一块也是因为这个原因,一般也就一百来方的项目。但是它会非常有意思,我把这一块的室内空间设计的想法称之为一种VI的延伸,其实对于小型商业空间的品牌来讲的话,空间设计仅仅就是VI表现也就是视觉设计的一个延伸,那我们在做这一类的空间设计的时候VI和SI是有非常紧密的连接的。
那么前面讲了这么多的话,下面我分享几个我们团队做的案例。我先发一个最早期去年年底做的一个项目,这个项目叫做“Halo Coffe ”光环咖啡,那么这个品牌是一个在东莞和惠州的一个品牌。他的两位创始人非常有诚意,因为我之前一直不做这种小型的餐饮项目做酒店和会所比较多,当时也是因为一个平面设计得朋友一起在做这件事情,所以说他们的想法影响到了我,我觉得的想法非常的好,在这里我分享一个关于他们最早期我们一起做的一个品牌视觉方案的灵感。












我们之前在做这个项目的时候会结合VI一起去做,也就是结合它的品牌视觉去做,我们把它的一个空间设计理解为一种VI的延伸。那在做这个品牌的时候,内部的整个视觉呈现我们已经很清楚的情况下我们只要让它大的调子能保持着,因为在这种小型的餐饮空间当中更加重要的是注意它的功能性的使用。下面我会开始给大家分享一下室内设计中的功能性划分。


这里是我们这家西餐咖啡馆的平面布局和建筑外立面,其实内部的功能就比较简单,当时其实是根据业主的需求做了一个内部的餐吧,内部的水吧。其实水吧这块呢在餐饮的使用功能当*特中**别的讲究,这块其实早前都也没有太多理解,现在做了越来越多的餐饮项目之后也是跟着橱柜的公司,饮品的设备供应商等学到了非常多关于简单的小型餐饮空间中设备的摆放,这一块讲起来可能就比较多,后面可以大家有针对性的提问再去分享。





大家可以看看图片,因为它是另一个非常年轻的品牌,我们运用了两大重要的元素,第一块是通过光影,光环咖啡因为是叫“光环”所以运用了更多的光影,另一块是运用了比较多像素格的元素,因为整个品牌的VI定位主打就是像素,因为在咖啡市场当中几乎没有品牌用这种像素格的风格,所以使用了像素格的元素。那么在内部空间当中我们把它划分成了两块,第一是关于白色区域比较亮堂,和正常咖啡馆差不多。另一个区域是在角落里划分了一个无色区,也就是以黑色和灰色为主,那边那堵墙是我们比较抽象的一堵艺术墙,这个艺术墙也是我们在现场做了非常多的研究和指导,运用了很多西方抽象简洁的元素,这个艺术墙在东莞被其它商家抄袭的非常厉害。
那么在这个空间当中它的室内设计的比较简单,地面是用一条长条的红色作为两个区的划分,这条红色一直延伸到了吧台,吧台向上是用了像素格的元素,像素格的元素是从大块的红色一块块变小,他家可以看到吧台的红色是由深变浅的,这块当时都是用了马赛克的元素做了一格一格的拼贴,然后把VI里的一些icon元素用到了吧台里的发光处,整个水吧的后面墙面一整块黑色的都是用投影的元素来做的。
其实这个项目对于整个业主来说或者整个惠州华贸天地商场来说,最具意义的应该是它的户外,因为它是一个200方室内加200方室外的一个项目,那我们在室内空间当中没法去吸引用户,也没法去吸引和挑拨太多的眼球,那在室外的空间我们想呈现的更有意思一些。
第一方面是关于墙面,墙面也是用了光影,我们在墙面做了垂直于墙面的一个用锈铁板做的一个“HALO Coffee”的铁艺,上面光会打下来,晚上直接呈现在地面上。白天的时候也是一样,在太阳光的照射下会有不一样的感觉。
户外这块大家看一下关于效果图其实还能够明确感受到,那我们大的效果图没有做这个俯视图,因为我们了解到周边全是大厦,全是高于三、四十层楼的大厦,这一块的空地在大厦往下看的话就是非常空旷的一块露天的一个地方,从上往下看我们希望能做到更好的广告效应。
所以我们用方格子,黑色和白色的材料,没有花很多钱是在淘宝上订的,300 X 300的可以发光的盒子,在门口这拼成了Halo Coffee的模样,在这种情况下我们的方块都是会亮的,我们这块的设计会在从上往下看的时候会显得非常的有意思,因为周边所有大楼从上往下看都能看到Halo Caffee的一个光亮,可以做到非常好的广告效应,因为很多客户都是基于周边的大厦上面下来的一些人,所以这家门店在开业之后短短的一两周之内就非常非常的火爆。
然后这家店当时非常有意思的就是业主他也有些资金比较紧张,我们作为设计方也入了一些股份,那在这种情况下我去做设计或者了解他内部的很多东西会更加的贴近实用,更加的有意思。那这家门店现在在惠州休闲咖啡的领域都达到了比较不错的名气,也是整个惠州整个网红的聚集地,我再发几张现场实际的照片给大家看。




在这个项目比较短期就火爆的情况下,我们也对于设计跟商业做了很多的思考,设计对于商业代表了什么。我听到有一位思友说这个凳子会发光。对,就是在最后一张这些惠州的网红合影的这张图里他们坐的这些黑色和白色的凳子,它里面是有灯光的,在晚上它打开的时候会呈现非常好的效果。然后它的组合不光是平面,还有高低的,也就是说这个方块不光可以做还能够当桌子。也就是说一格可=可以是坐的,两格或三格是可以放咖啡的。在这种情况下不光有实用性它的视觉效果和视觉呈现都非常的好。
这个300 X 300 的方块是可以移动的,之前我们最早的做法是想能够固定,最后的做法是可以移动的,因为移动呈现的效果可能会更加的好。舒适度这点来说就很难兼得了,因为它只是比较简单的,门口的一个噱头,可以让你去拍照。舒适度来讲肯定是里面的座椅会更好一些。这个咖啡馆的项目就简单的这里
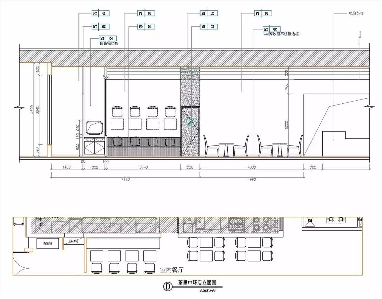
下面一个分享的方案是广州一个非常著名新兴的餐饮集团“开饭”,开饭他们下面出了一个品牌叫“茶里”。它做的是比较高端的轻奢的这么一种茶餐厅。我想大家回想一下印象当中经典的港式茶餐厅一般都是什么样子的?
那我现在给大家分享一下我现在做的这个项目。


这个项目我现在手上的图片资料比较少,因为这类的餐饮空间项目有一个问题就是它的时间非常紧急,非常的赶。那么在这种情况下就是今天装修完工了明天可能就收场进行营业,因为他们时间非常赶,所以还没有好好拍过照片。



其实对于“茶里”这个项目,运用的元素也非常的简单,我们其实先去了解了他们的一些菜品,因为在这块设计当中大家可以看到门口那块,那一块块的碎片感觉比较像一种迷彩的感觉,但其实它灵感的来源并不是迷彩而是世界地图。因为我们去认真的研究了茶里的菜品,然后茶里的菜品主要做的是无国界的创意菜品,也就是他在广州的餐饮定位当中定位的是比正常的港式茶餐厅要更先进更潮流一些,那它的整体的菜品是有非常多的跨界的元素在,包括泰国菜,还有一些其他地区的菜品。
那在这种情况下我们就想到了这个元素,既然它是无国界的菜我们就用世界地图里的造型,你会发现世界地图包括亚洲、美洲、大洋洲、他会有不同的板块,它的板块把它边角去掉做了一些圆滑的效果之后你会发现它是跟迷彩差不多的一块一块的,那业主其实也比较喜欢迷彩的元素。那在这种情况下我们就吸取了这个迷彩的元素,再世界地图的元素融入到迷彩的元素当中,也就出现了“茶里”它的门口,它的招牌上这种关于红色,黄色,蓝色的这样一种色彩搭配。
那么室内空间当中主要是以干净明亮为主,因为现在比较多的老式的茶餐厅它是比较陈旧的感觉,我们也是想在这种环境当中营造一个比较健康,比较透明光亮的感觉和效果,包括它在户外的一个广告墙,因为在中环广场这个地方是属于人流量比较大的地方,这个卖场的广告位非常贵,这个店铺处于一楼,我们觉得首要的是打品牌。也就是会把它的LOGO做的非常的大,做出来之后我们感觉效果图和现场图的效果还是比较一致,有非常大的宣传效果,晚上这里也是不会关灯的。
在这种情况下第一对外来说品牌的宣传得到了非常好保障,第二对内部来说它的一个透光度包括一个整体氛围的营造都很好,我们里面用的是密封灯,我们一整块都用了这种灯,把里面的氛围打造的比较好特别是晚上的时候。那我们再来看下面一个项目。
下面一个项目我要分享的是一家叫做“遇见小面”,一个非常充满梦想的品牌,他的三个创始人都是毕业于香港科技大学的研究生,其实和我的经历差不多我之前是就读于香港理工大学,那他们三个人在做这个项目之前也是我非常好的朋友。
我最早其实是很少做这种餐饮空间的项目,他们找到了我也是因为我们在VI和SI这两个空间上的结合运用会非常的好,会非常符合真正想要做商业的人的一些意图,我们比较明白在做在做这样一些小型商业空间的时候它的时间非常非常的赶,比如像这个小面的项目我们三家门店加起来不到一个半月的设计时间。
下面我先分享一下关于他们项目的图片。













这个项目在做的时候其实我们是一连做了3家的门店,这家门店是位于广州的一个人流量非常大的地铁站,叫流行前线。那他是一个比较不规则的图形,我们在平面上可以看到。他两家门店中间是有走到的,也就是一边是厨房跟一些小位子,另外一边也是比较小的位子。总共来说也就80多平方,但是这要容纳差不多90多个位子。
从设计风格上来说我们分了几块,因为它就是中间有一个走道做了一下划分。包括我们把天花也做了重新的设计,右边我们用的颜色主要是木纹,比较传统和温暖的颜色,有一点偏日式的面馆。左边用的是另外一种风格,靠墙的墙边是有吧台的。
其实当时去做这个品牌,对于我来讲也是有一些个人的原因,因为做面这个事情我一直觉得非常有意思,中国的面有上千种,真正出名的面其实没有。再看看日本的面,日本的拉面呢其实我不是很喜欢日本人但是不可否认日本的拉面做的不错,日本的拉面馆做的也不错,我们在讲到拉面的时候第一个想到的还是日本的拉面和他们一些精致的小的拉面馆。而在想到其他面的时候我们脑海里会浮现出意大利面,浮现出那种比较高级的意大利餐厅的感觉。
而中国的面没用真正能够达到这个层面的,所以当时我们跟平面设计师想共同去打造这么一个能够进入国际视野的品牌。那么刚刚好碰到了这么三位非常有梦想同时也有技术的三位年轻人,那我们在一起沟通之下有了更多灵感碰撞的火花。
那在这一块我们就给它往国际的小面品牌去打造,它做的面的单品叫做重庆小面,那整个VI的设计其实就是把重庆小面的小字做了一个抽象,也就是把小字作为一个文字形式,用了一个倒角的菱形去做了一个视觉强化的图案。包括一个地面的瓷砖,包括天顶的灯,包括墙面的一些视觉设计我们都用到了这个元素。那么我们长期的一直去使用这个元素有很多好处,就是我们强化了它的视觉效果。现在你去看很多品牌比如麦当劳,你看到红色和黄色再加一个M你就知道是麦当劳。以前星巴克你需要看它的名字,现在根本不需要,看到黑色和墨绿色就知道是星巴克。
我们也希望帮小面打造这样一个看到红色,黑色再加木色的感觉就知道是小面的品牌。在市场上打造一个比较难复制的这样一个品牌形象。



再分享几张用手机拍的照片,前面也说了每家门店开的时间都非常的紧,设计周期可能就是两周时间,再加上我们的装修周期是在25-30天,这些门店开的周期都非常非常短。所以导致我们在选材和设计上很多不为人知的酸辛把。



▼扫一扫关注“设计思享”▼