设计:杨凯 摄影:钟永钢

“
“一座历史悠久的老城区,蕴藏着无限生活温度,在这座曾经辉煌的城市中,生活悄悄的正在改变。不仅仅是经济的提升改变,更是生活和教育的改变。项目中甲方,在幼儿教育领域工作二十余年,有着深厚的幼儿教育经验,同时,沈阳工学院环境设计第二工作室与资深“0-12岁”教育专家组成专业设计团队。希望唤起幼儿教育的观念转变,用温度描绘一幅童趣画面。
”

接触项目中,发现室内外空间都有着较多的痛点。如:
1. 整体面积较小。同时,这更是甲方业主所担心的,如何在现有空间规划相应功能空间,保证有较多的幼儿使用空间。
2. 室内空间中南北狭长,开间较小,入口处于北侧,采光不足。
3. 抛弃现有常规幼儿教育空间“花哨的色彩、繁琐的造型、较差的功能设备”等,研究适合时代性幼儿教育空间新形式。
4. 以国家幼儿园与托育设计规范为标准,研究0-3岁早托养育指导中心功能与形式。

改造前室内外场景
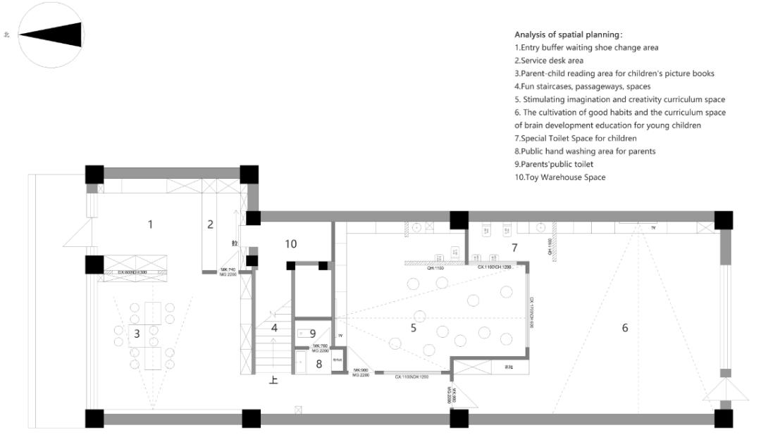
|| 入口缓冲等待换鞋区
规划早托教学基础功能需求,入口设立良好的采光照明关系,呈现入口良好的视野,在原有空间基础上,大幅度调整,改变原有入口位置。进门呈现面对面服务,增进教学与保育温度,幼儿入园减少了紧张与压抑感,童趣的造型与温暖的木质结构设计,通过大面积白色材质气氛烘托,使空间平静自然,悄悄地描绘一个家的概念。

项目设计中与教育课程与早托养育理念结合,研究0-3岁幼儿生活及生长发育指标,以《托儿所、幼儿园建筑设计规范JGJ39-2016(2019版)》为设计执行标准。设置较多幼儿活动不同需求空间,以启蒙、音乐、环球、运动、语音等五大精品早教课程为依托,空间设置动、静划分,以模块式设计为亲子阅读、儿童活动、玩教具展示等多元化区域。






激发想想力与创造力课程空间

幼儿启蒙好习惯养成与大脑开发教育课程空间
空间整体设计中充分考虑自然元素引入:
1. 机械通风与自然通风相结合。设置设备类中央空调与新风系统;小空间通过窗口连通换气,自然空气引入,达到南北通风。
2. 平面规划公共空间与私密空间取舍,建立空间视觉植入,打造小空间大角度概念。
3. 材料选择环保国际标准板材与环保涂料结合,自然而清新。

研究通风关系分析图
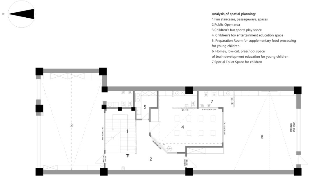
|| 趣味楼梯通道空间
有些狭小的楼梯通道内设置“方形”镂空洞口,变成了孩子们特别的小视野,童趣天真的角度看外面的世界。设计师调整的楼梯踏步高度、幼儿扶手高度,都更加适合低领段孩子的使用,提供了安全舒适的功能关系。


|| 童趣运动游戏空间
在原有高度较低的空间考虑设置了幼儿实现身体协调发展教育教室,室内部分的弊端有效的化解。简洁大开敞空为幼儿提供无遮挡运动环境,独木桥、运动吊床、环形运动桶、活动车等,搭配室内保护墙面处理,为孩子们创造了一场无限快乐活跃的氛围空间。







温暖如家般低领段幼儿教育空间


















细节表现
一层平面图

二层平面图

分析幼儿活动空间轴 侧 图

空间与教育功能关系分析图

空间立面分析图


项目名称:优童无边界·健安早托养育指导中心
设计公司:沈阳工学院环境设计第二工作室
主案设计:杨凯
教育理念指导:全玲
施工团队:沈阳鼎伦装饰工程有限公司
施工负责人:熊小剑
视觉平面设计:王瑶
项目摄影:钟永钢
设计时间:2020年2月
完工时间:2020年4月-5月
项目位置:辽宁省抚顺市顺城区
项目面积:300㎡
主要材料:进口欧松板、环保涂料、运动地胶、定制整体家具、瓷砖

杨凯,沈阳工学院环境设计第二工作室。毕业同济大学,副教授,商业公共空间设计师。主要研究领域:时尚潮流店铺设计、幼儿教育空间设计、定制住宅设计。从业十七年,以空间结构与使用功能为设计主导,延伸商业与设计分析。