济南市人民政府办公楼龙奥大厦建筑面积36万平米,08年奥运会建成,造价不详,曾获得2009年济南市优秀工程勘察设计一等奖2009年山东省优秀工程勘察设计一等奖2009年第三届全国民营工程设计企业优秀设计华彩奖。网友称为全国乃至世界最大的政府大楼。龙奥大厦高约66米,东西长288米,南北宽144米,建筑面积36万平方米左右。龙奥大厦现为济南市委、市人大、市政府、市政协、市纪委驻地,市政府近9成的部门都在此办公。
龙奥大厦项目名称为济南龙奥资产运营有限公司综合服务楼,选址于经十东路以南、旅游路以北的龙洞片区,与奥体中心的体育场馆形成“品”字形三足鼎立的总体格局。建筑总占地约26.7公顷,建筑面积约36.5万口。主体建筑地上15层,地下一层,总建筑高度66米,地上容积率1.3

实景图

实景图

实景图

剖面图

立面图
采用庄严、单纯、简约、大尺度、方正的建筑立面形式,与周边山体及奥体中心共同构成舒缓的天际轮廓线,充分体现对环境的谦让。集中式的布局形态将建筑体量整合统一,采用单纯、简约的立面形式,以宏大的建筑尺度和体量与体育场馆形成稳定的三角形构图,取得方正与柔美在对比中的均衡。

彩平图

首层平面图

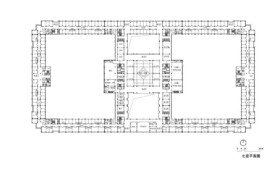
七层平面图

二层平面图
功能布局体现在其内部使用功能的多重复合,不仅是功能的完各,也是物质环境的集约化、功能化,更是体现整体运作的高效性。通风采光及视线良好的外围空间,围绕内庭院,布置各部门的办公单元,中间部分结合南北礼仪大厅集中布置各类大小会议厅、展厅、专用接待室及餐厅等公共服务部分。明确合理的功能分区,保证了内部联系的便捷。中间部分的公共服务中心,与各部门办公部分联系紧密,方便管理,服务半径短,利于提高效率,降低建设及运营成本,充分体现了资源的共享性及运营的经济性。