6月6日番禺区企业广州声博士声学技术有限公司,进行了「声学产业基地」和「全球首座-21dB声学实验室」开工仪式。



番禺区副区长、区企业建设服务中心主任夏坚,对项目的未来表示期待!
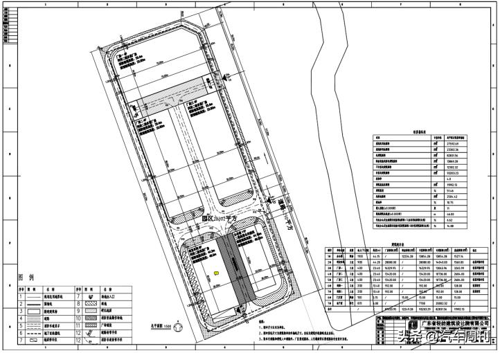
该基地项目规划用地面积27592.69㎡(其中可建设用地面积23302.36㎡,道路用地面积4290.33㎡,可建计容面积≤93209.44㎡)。设计总建筑面积105520.23㎡(计容面积89765.00㎡,不计容建筑面积15755.23㎡)。建筑功能为总部办公楼、研发中心、实验楼、厂房1#、厂房2#、厂房3#、地下室以及配套工程等。

声博士公司是声学界的领军企业,专注于噪声控制技术及产品研发制造。公司业务覆盖建筑、汽车、船舶、高铁、地铁、军工等领域,是番禺区重点护持企业和重点纳税贡献企业。这次再于石楼的“专精特新产业片区”投资5.85亿元,建设企业总部及国家重点实验室、制造基地。基地完成建设并投产达产后,隔声降噪产品年产值预估将>15亿元,前十年上缴税收>3.5亿,解决劳动就业>1200人。


人耳能够听到的最微弱的声音是0dB,而在非真空环境中,由于空气分子的相互碰撞产生的噪声不会超过-24dB。在这样的背景下,负分贝(-dB)实验室的存在显得至关重要。这些实验室在声纳、超声波、次声波、半导体、材料科学、建筑学、生物科学、生物医学、航空航天、空间通信、环境工程、精密仪器制造、超精度测量、生命健康以及军工隐身吸波材料等领域的研究中,起着关键的作用。

目前,全球仅有三个负分贝实验室,分别是位于瑞士苏黎世的IBM纳米技术研究-1dB实验室,美国明尼苏达州的奥菲尔德-9.8dB实验室,以及美国华盛顿州雷德蒙德的微软总部-20.6dB实验室。

IBM实验室

微软实验室
如今,清华大学和声博士公司动工建设全球首座位于地下30米深的联合实验室,设计值为-21dB的实验室。这个项目不仅填补了中国在此领域实验室的空白,也将为国家在多个领域的深度研究提供基础实验条件。

清华大学教授燕翔老师介绍-21dB声学实验室项目的价值和意义