小编今天要和大家分享的是一套78平米的简约北欧风小三房,要不是看到了户型图,小编怎么也想不到它只有78平米,设计师把玄关,餐厅,客厅书,厨房,卧室,儿童房,还有阳台,都设计的这么宽敞明亮,给人一种非常舒适的感受,下面这套案例效果图,绝对是小户型的典范,同时也希望给大家一个参考哦。
户 型 图

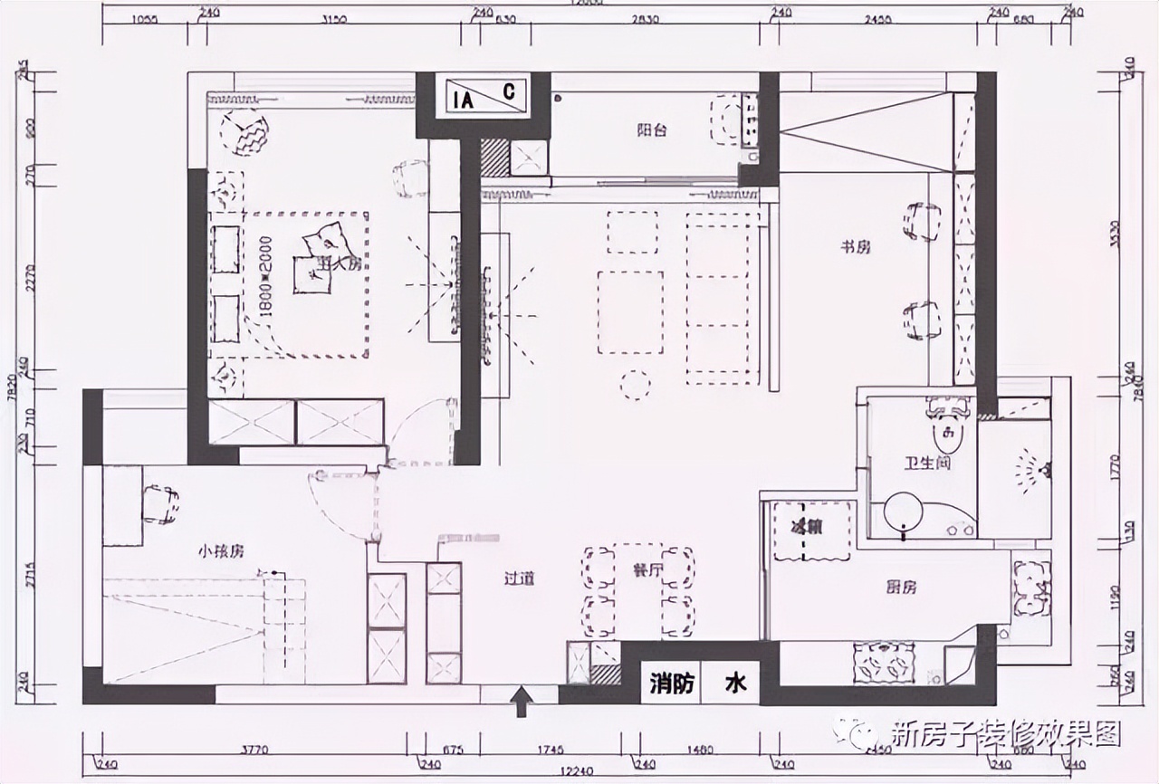
原本户型图

平面布局图
1、玄关

房子进门就是玄关和餐厅,玄关进入之后最经典的设计方式就是墙面做了玄关收纳柜,中间还留了换鞋的凳子,让主人可以坐着换鞋,非常的方便,里面还有镜子,是折叠式的,需要的时候拿出来,不需要的时候折回去,不浪费空间
2、餐厅

餐厅的桌椅用的都是原木+白色跟墙面的画壁相结合,非常的北欧风,椅子的造型十分的时尚

墙壁上设计师还做了壁龛设计,这样就可以起到展示作用

客厅和餐厅的空间是一体的,整个空间是非常通透宽敞的,而且简单大方。地板用的是原木地板,给人一种温暖的舒适感。
3、客厅

客厅和书房隔断前的施工图

客厅的沙发后面用了一个小小的吧台做了隔断,变成了一个小书房,从玄关方向看过去,空间是非常的明亮和宽敞的。

客厅尽量摆放一些简洁和小巧的家具,这样看起来整个房子会十分温馨和美好,这是小户型的装修技巧,充分为简,让空间充分留白。
(此处已添加小程序,请到*今条头日**客户端查看)

小户型的电视背景墙,建议不要复杂,简单的大白墙设计,搭配一盆绿植,就十分的清新了。

茶几的颜色采用的色调是比较明亮一些的,黄色的原木茶几配上蓝色的布艺沙发,整个空间看起来非常的有活力。

在沙发的旁边可以摆放一个小小的收纳柜,搭配造型比较简单的白色收纳柜,可以放些小小的物品哦
4、阳台

客厅和阳台设计师用了玻璃门做隔断,第一可以保证采光,第二阳台放置了洗衣机,洗衣晾晒是非常方便的,也保证了生活阳台的私密性
5、书房

书房原本的毛坯图

书房飘窗的施工图

沙发后面就是这个书房的空间,也是放置了一个收纳柜,利用了空间。

飘窗设计的比较宽,有点像榻榻米的感觉了,而且做了一个收纳墙柜旁边的花架也可以当成书架,非常的实用。
6、卧室

主卧室的设计主要是功能性为主,整个房间的装修是十分简单,窗帘盒四件套采用的色调一样,非常清新。

床的一边也是做得推拉门衣柜,收纳空间比较大,使用起来也比较方便,床头也放置了一张床头柜,另一边放的是书桌,也满足的日常使用功能。
7、厨房

厨房的空间也是比较注重实用性,米白色和白色的搭配,让橱柜和墙面看起来非常的明亮,储物柜设计的比较多,满足了厨房收纳的日常需求,让厨房看起阿里也是非常的整洁。