

J&E Atelier是一家隐藏于河西万达写字楼内的轻熟型女装工作室,来自韩国首尔设计师的灵感,让每一件衣服都充满灵气。主理人是位时尚买手,关于服装和美有着独到的理解与见解,这一点,在她对店铺的设计诉求上也可见二三。



南京零界室内设计承接了这个项目的整体构造,摒弃繁复手法,走向简洁明静。流线和曲线的应用为空间增强了结构性,显得自由柔和,随处可见的几何构成元素衍生出现代性与时尚因子,建筑材料和层面细节则又表达出不过度设计的环保意识。

设计师对空间的具体定义来源于该品牌本身独立且温柔的美学理念,并在其中加入新商业概念的思考:以“服装”为出发点,从形态到材质,借助极简主义的设计语言来塑造空间与品牌的统一性,简单的材质、虚实的光影、熙柔的色彩,打造出精致的女性风格和强烈的轻盈感,从而阐释“衣以载道”的个性精神与本质之美。


理念至简
“简单是终极的复杂”,设计师将装饰的意味降至最低,空间最大化留给服装本身,更少的东西才能产生更少的注意力和更多的静默。店铺内部大部分环境都被设计得很“空旷”,甚至在某些方面是简朴的,给人的感觉犹如薄纱,亦如面料,质地丰盈细腻,功能丰富多样。各种结构在空间中漂浮着,精美而轻巧,搭配粉白色彩与柔和灯光,既营造了舒适宁静的氛围,也在不经意间悄然流露亭亭的女性姿态。



形态至简
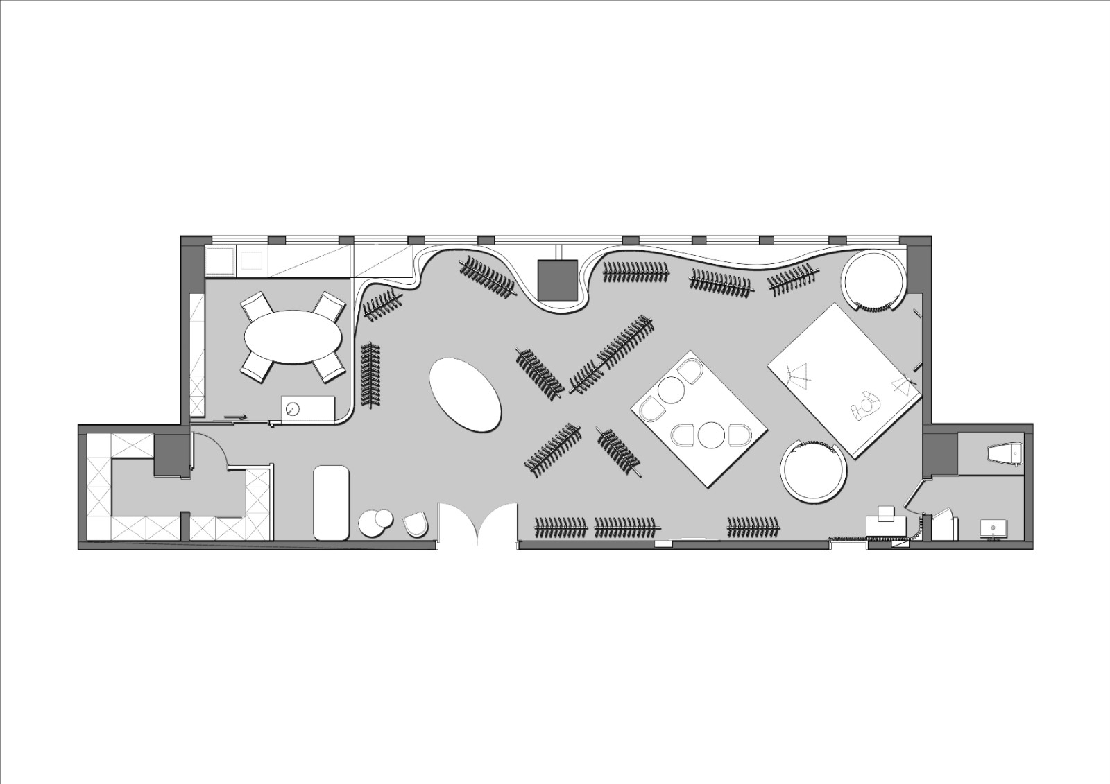
空间主要划分为四大体块:前台区、休息区、试衣间、服装展示区,各个功能区在整体开放式格局中又相互咬合,在有限的空间与视觉通透的矛盾中,设计师从布艺面料的舒放褶皱形态中提炼线条符号构建空间的曲直对比,丰富空间层次,塑造结构秩序,其形态与建构犹如服装中裁剪塑形。
衣架造型、卷曲天花等陈列组合既有共性又充满个性,曲与直的衍生元素在空间中以平面、立体、抽象、动感等多种形式存在着,极与极之间,碰撞出区块的戏剧化和几何感。行走其中,自然提升顾客对品牌更深入的主观体验意愿。
建构至简
在这个项目中,设计师避免使用多余色彩与建材堆栈,通过“做减法”的形式定格细致入微的干净腔调。墙面有意保持洁净,单色化手法创造了空间里尺度之间的分界和肌理层次的互动。
建构中的虚实变化,宛如服装中工艺连接的线条之美,具体的材质、颜色、物体、光线都带有纤薄的克制感,诗性的氛围铺叙令空间气质在光影映照下,呈现出淡柔情于俗内的精尚感。







大到商业逻辑,小到细节本身,设计师希望通过空间让每个来此的人都能感受到J&E Atelier对服装和设计的考究及仪式感,同时还有醇和凝雅、灵逸充盈的当代女性精神,就像Coco Chanel曾说过的:“时尚并不只是一件衣服那么简单,时尚存在于空气中,诞生于风里。”
项目名称:J&E Atelier 服装工作室
设计单位:南京零界室内设计
主持设计:倪龙
参与设计:陈星、尹卫林
主要用材:地胶、纳米漆、香槟金不绣钢等
摄影工作室:Ingallery
项目地址:江苏 南京
设计面积:120平米