装修的不仅仅是房子而是生活,合不合适只有自己知道。化繁为简的装修,越来越被推崇,简洁的设计,使家装变得更轻松自然,回到家能卸下身体的疲惫感。购买了精装房,如何设计让它变得更自然舒适呢?不妨看看接下来这套案例,自然又舒适,住上三代人不过时!(图片原创:辰沙设计)

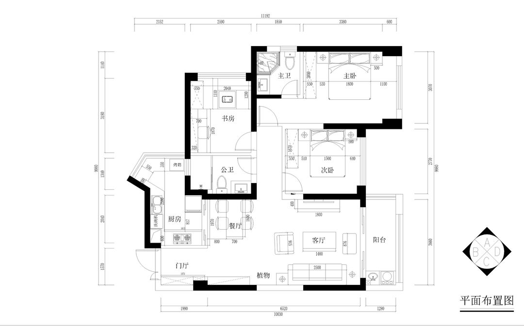
90㎡的精装房一套,格局只做了轻微改动,大部分精力投入在软装搭配上,力求做到自然、简约、打造出一个舒适的居家环境。

入户进门,给人第一感觉非常好,很自然很放松,颜色搭配毫无违和感。大面穿衣镜延伸空间景深,让玄关过道有了等比拓展的坪效,紧凑的空间瞬间宽敞。

冷灰色布艺沙发,搭配上黑框原木小茶几,优雅实用提升空间舒适度。一体式吊顶设计,空间更宽敞,为避免太空旷,客厅以散点式照明,提升空间丰富度。


冷灰色的背景墙,利用大幅的黑边框画作装饰,平衡色彩简化视感。矮柜恰到好处,犹如鞋柜的延伸。


唯一的空间变动,就是厨房与生活阳台打通,增加了厨房的宽敞和通透。浅木色纹理墙砖,搭配原木色橱柜,精致温馨。黑色边框的门窗,极致的视觉美感,让厨房提升不止一个档次。

过道简洁利落,黑色线条充满了立体感,色彩的平衡减缓了过道的狭长感。等距离的筒灯设计,让过道照明更均匀。


两个卫生间设计大同小异,主卫地面配蓝色砖,次卫地面配灰色砖。黑色的洗手台酷酷的,质感十足。


主卧轻松自然,色彩上延续了冷灰色搭配原木色,简洁优雅营造出静谧舒适的睡眠空间。

儿童房清新自然,卡通背景墙装饰,让空间充满活力,变得更有童趣。


全木式书房自然轻松,榻榻米设计增加收纳提高空间利用率,升降台设计很赞,休闲、娱乐都非常不错。软木板制作的照片墙,记录了生活的点滴。