拎包就可入住,房租低于市场价,厦门金融人才和在厦打拼的台湾青年可申请入住金圆·金融公寓(台湾青年公寓)。
3月29日上午,位于两岸金融中心片区核心启动区(湖里区五通西路)的金圆·金融公寓(台湾青年公寓)正式交付使用。这也是福建省首个住房租赁用地项目、厦门市首个台青金融公寓。

金圆·金融公寓(台湾青年公寓)由金圆集团旗下厦门两岸金融中心建设开发有限公司建设,提供租赁住房539户。 作为中央财政支持的住房租赁市场发展试点项目、市重点项目,该公寓将为厦门市金融人才和在厦台湾青年打造温馨家园,是惠台利民的又一创举。
当前,厦门正加快金融强市建设,打造区域金融中心,在探索海峡两岸融合发展新路上迈出更大步伐。此次金圆·金融公寓(台湾青年公寓)的交付,将助力厦门市打造更优的人才生态,做好金融人才服务保障、打造台胞“筑梦家园”。
“深化两岸融合发展是金圆集团与生俱来的重要使命,未来我们将持续做好‘通’‘惠’‘情’三篇文章,为助力提升优化涉台营商环境贡献金圆力量。”金圆集团有关负责人表示,接下来将协同有关方面做好登记入住、公寓运营等一系列工作,用心用情打造厦门市金融人才和台青的温馨家园。






点击查看金融公寓装修效果图。图片来源:金圆集团
匠心筑精品
高标准交付可拎包入住
为践行“房住不炒”政策,试点租赁住房业务,金圆集团积极履行国企社会责任,于2018年5月竞得福建省首宗租赁住房(公寓)用地2018P01地块,建设两岸金融中心片区高品质租赁住房项目——金圆·金融公寓(台湾青年公寓)。
“我们经过前期摸底和调研,了解到不少金融人才和在厦台湾青年有租住人才公寓的需求。”金圆集团有关工作人员介绍,金圆·金融公寓(台湾青年公寓)意在提升企业对人才的吸引力,为服务台湾青年提供有力保障。项目自启动建设以来,建设团队坚持“高起点规划、高标准建设、高品质交付”,严控施工质量,狠抓时间节点,努力克服疫情影响,确保项目如期完工。



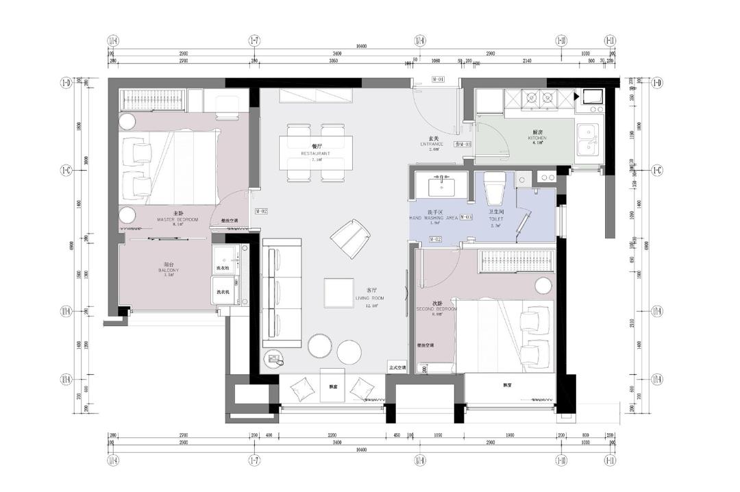
金融公寓部分户型图。图片来源:金融公寓
公寓以人才需求为导向,设置了从一房到三房的五种户型,在装修上,采用高规格装修标准:可推拉的操作台,密码锁,定制家具,品牌橱柜、卫浴、家电……租金方面将低于市场水平。
安家更安心
大批金融人才已登记入住意向
截至目前,金圆·金融公寓(台湾青年公寓)已有一大批意向住户进行登记,涵盖银行、证券、信托、创投等各类机构的金融人才和台湾青年。3月29日的交付现场,两岸金融中心片区法人金融机构和两岸金融合作的企业代表——金圆统一证券与厦门两岸金融中心建设开发有限公司签订租住意向协议。


金融公寓内部装饰。图片来源:金融公寓
带来温馨感的阳台、可推拉的餐桌、拥有强大收纳功能的家具……公寓一系列贴心的设计巧思,给一早来到交付现场的金圆统一证券台湾省籍员工陈怡文留下了深刻印象,“我之前第一时间登记了入住意向。打算这几天就收拾一下,尽早搬进来,很期待入住后的新生活!”
陈怡文来厦工作已有两年,据她观察,近年来越来越多台湾金融人才携家人,来到厦门工作、生活。金圆·金融公寓(台湾青年公寓)装修精致,户型多样,将很好地满足人才需求。同时,入住公寓的人才多拥有相似的行业背景,可大大促进彼此间的沟通交流,拓展留厦“朋友圈”。
来自富邦财险的赵延武是厦门市高层次金融人才,去年自外地来厦的他此前为租一套满意的房子而四处奔波。在参观完公寓后,赵延武当即决定把家搬过来。“这里不仅居住环境安全舒适,而且交通便利。”在他看来,金圆·金融公寓(台湾青年公寓)圆了自己的“安居梦”,也有助于吸引更多金融人才集聚厦门。
【名片】金圆·金融公寓(台湾青年公寓)

图片来源:金圆集团
金圆·金融公寓(台湾青年公寓)位于两岸金融中心核心启动区(湖里区五通西路977号),紧邻厦门眼科医院(五缘院区),占地面积9149平方米,总建筑面积40491平方米,由2栋建筑及裙楼组成,提供租赁住房539户,户型涵盖35㎡-45㎡一房一厅、70㎡-80㎡两房和三房户型。
【提醒】 六类人群可线上预约登记
有意向租赁者可通过微信公众号进行预约登记,预约成功将会由项目运营团队进行身份确认,办理入住。
公寓面向全市本科以上学历的申请人进行市场化招租。申请人按以下先后顺序(第一顺位)结合登记时间顺序(第二顺位)依次选择房源:
▶ 获评厦门市高层次金融人才、金融机构从业的台湾同胞;
▶ 金融单位管理人员及两岸金融中心片区内法人金融机构或员工;
▶ 两岸金融中心片区内的非法人金融机构或类地方金融机构员工;
▶ 厦门市域(两岸金融中心片区外)法人金融机构或员工;
▶ 厦门市域(两岸金融中心片区外)非法人金融机构或类地方金融机构员工;
▶ 其他企业或个人(重点招商企业或个人可适当放宽条件)。
来源:金圆集团供稿