如果只能在客厅放下一件家具,你会选择什么?
很多人都毫不犹豫的说,要有沙发。因为搬家的时候,我们首先购买的是沙发,没有它,房子就没有了灵魂。

扶手包围的三座沙发,包裹你所有不安,就像家人;打开落地灯,在单人沙发里翻开一本书,是享受孤独与自我;两张弧度线条不同沙发,看似慵懒摆放又被无形的线拉近,就像情人。
不同的客厅、功能、人,应该摆放不同的沙发。但是,50%的人并不会选沙发,没选对的沙发形同虚设,一年用不上几次。
所以,赶紧做好笔记,看看如何挑选一张舒服不贵的专属沙发吧:
01、膝盖和屁股是否在一条直线上
大部分人都认为,沙发坐垫只要够软糯就可以,而实际上,沙发的高度决定了不同身高的人“坐起来”是否舒服。最佳的标准是小腿高度与沙发高度差不多。

过低的沙发,就像坐错了孩子的板凳,整个身体埋陷在沙发里,造成髋关节形成锐角,导致背部压力过大。

而过高的沙发则会使双脚悬空,造成大腿和膝盖后方的肌肉紧绷。

所以,挑选沙发的第一步就是坐下来感受一下~看看双腿是否可以自然的放在地面,是否需要垫东西。

对生活有要求的朋友,一定要尝试一下电动沙发。买回来之后,每逢客人来家里,我都让他们上去感受一下有多舒服。没有面积限制,每个客厅都可以拥有。

划重点:
客厅是家里的人气聚集地,所以,更要考虑到每个人。家有老人家,沙发座高最好不要低于45厘米,起立费劲还会引起腿脚不舒服。
02、看身高选沙发深度,不伤脊椎
看完沙发垫的高度,再看一下沙发垫的深度。
很多人坐沙发喜欢把脚搭到茶几上,其实是因为沙发进深过小,坐着的时候大腿会出现部分悬空,腿部得不到充分的放松,所以总想找个地方搭腿。

而买的沙发进深度太大,坐下后很难靠到沙发靠背,葛优瘫成为常态,对脊椎伤害很大。靠到沙发后背时,会出现沙发边缘正好落在膝窝部位的情况,双脚悬空,也会影响舒适程度。
▷ 身高1.7米以下,选进深95cm的沙发更舒服;
▷ 身高1.7米以上,选进深105cm的沙发更舒服。
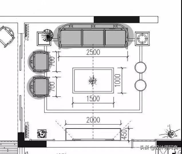
如果夫妻身高差距大怎么办?选组合型沙发2+1或3+1,形成一个围合式空间,大家都坐得舒服、且聚焦聊天内容。

▲L型沙发满足2-3人躺卧+1张单人沙发,小户型客厅最实用的搭配


▲一字型沙发容纳3-4人+1张扶手沙发或2张北欧单椅,客厅能挤下10人开party!

▲多张撞色扶手沙发相对而放,移动方便,增加空间灵活度;且让交谈氛围平等专注,最适合有孩子的家庭。
划重点:
1,对于紧凑的户型,L型转角沙发并不省空间,一字型沙发+1张扶手沙发或2张北欧单椅组合,移动方便更灵活,且颜值高。
2,沙发色彩搭配得好,深浅色搭配,拉出视觉落差,也能营造独特的客厅风景。
03、靠背高60cm,看电视脖子不酸
不止沙发坐垫,靠垫也很重要!市场上的软包沙发椅背高度大致有三种:高椅背、低椅背。

▲高椅背能够提供颈部、腰部、背部三处的支撑,舒适程度最高。

▲而低椅背只能提供腰部支撑。
但你家客厅如果不高,靠背过高,会拉窄与天花板的距离,让不大的客厅显得压抑。且搬运的时候进电梯很难,清洁的阿姨都不愿意收走。
价值百万的秘诀就在这里了:低靠背+高靠垫,是近年来最流行的设计。


▲低靠背的沙发让空间显大显宽,加一个高靠垫和头枕,就能舒服看电视。
划重点:
1,靠背过高舒适度不见得加分,因为对腰背的支撑不和人体工程,坐久了很不舒服。研究证明,当靠背高度在60cm时,能够兼顾到颈部和背部,是最合适的高度。
2,家里原来的沙发不舒服又不想换?让靠垫和头枕帮你救场。
04、软硬恰好,舒服过一米八大床
午睡、看书的时候,躺卧在果冻般Q弹的羽毛填充沙发是真爱时刻。这个“软”也有讲究,一张好沙发应该是软硬搭配,坐垫、靠背、扶手等位置支撑身体的部位不同,软硬度要求也不同。
沙发从软到硬的排序应该是:颈部>膝窝>背、腰部>臀部

▲颈部增加软头枕,软一点才能够更好贴合颈部曲线,不会给颈部造成压力。


▲靠垫太软的真皮沙发,支撑性弱,容易引发颈椎病,可以增加一个抱枕。

▲坐垫更是讲究“高回弹”,因为坐垫太软,整个臀部陷入, 坐骨周围易出现触底现象,臀部周围和大腿也会受到周围海绵的挤压而感到不舒适,起身也难。

▲沙发和腿部接触的部位一定要软,太硬容易挤压小腿,平时也容易不小心磕碰到。

决定沙发各个部位软硬度的是填充物海绵和弹簧。海绵太软或太硬都不舒服,关键看密度,高档沙发每个部位海绵的回弹度都不一样,坐垫每立方米最少重30公斤 ,背垫不低于25公斤,超过50公斤的,里面掺杂了很多你不了解的东西。而坐下后,每次凹陷5-10厘米的是好沙发。

弹簧是沙发的韧带,沙发底座弹簧分为绷带弹簧和蛇形弹簧。绷带弹簧也就是运动裤松紧绳加大版,2-3年就不能用了,好一点的蛇形弹簧是用锰钛合金做成的,减震效果好,用个10年没问题,推荐绷带+蛇形弹簧,弹性更好 。
划重点:
芯里美,用起来才更美!内芯充盈挺括,且经久耐用是沙发制作的秘密。
05、布艺面料性价比高,妻子少崩溃
沙发的面料和我们皮肤直接接触,所以如宝宝脸蛋般圆滑的真皮面料更透气和亲肤。

人体皮肤温度大约在33℃左右,研究证明,当室温20℃时,身体与真皮面料的沙发接触的舒适度最高。

看我们同事躺在真皮沙发上多开心,好的真皮面料亲肤感强,细腻柔软有弹性,非常舒适。

如果不喜欢真皮沙发,可以选择可换洗的布艺沙发,面料多是涤麻混纺,这种面料透气性好。挑选的时候,摸起来没有粗糙干,亲肤柔软,则是优质的布艺面料啦。

人造皮革面料虽然和真皮质感差不多,但与长毛绒面料一样,透气性差,容易越坐越热,舒适度最低。
划重点:
1,舒适程度(从高到低):真皮>布艺>人造革>长毛绒面料
2,拒绝聚酯成分超过80%的沙发面料,减少使用时起毛、静电等窘境。
3,家有小孩,不要轻易挑战浅色沙发,因为上一秒整洁如新的沙发,下一秒会遭遇污渍灾难。布艺沙发选择稳重时尚的灰色最佳,真皮沙发就选择黄牛皮。
最后,款式定好了,还有沙发的尺寸,就根据客厅面积来选吧!
▷ 16平,选宽度1米5的小体积双人沙发或分体沙发;
▷ 25平,选宽1米7-1米9的;
▷ 25-30平,4人沙发、转角沙发,随便挑!

以上就是沙发挑选的一些经验,你在装修中都得到过哪些教训和经验?欢迎留言区说说。
如果觉得有用,记得分享给更多有需要的朋友哦~
↓↓↓↓【跟设计师一对一互动,0元设计全屋】