石膏板吊顶隔墙在我们生活中很常见,它是我们装修中至关重要的材料,不仅仅可以用来装修吊顶,又可以拿来做隔墙。很多家庭都会选择用石膏板吊顶隔墙作为客厅布置。那么下面我们就来了解一下石膏板吊顶隔墙做法以及装修石膏板吊顶隔墙注意事项,有需要的朋友可以参考一下哦!

石膏板吊顶隔墙做法
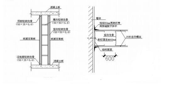
1、首先要进行规划墙位线,在把线牵至到顶棚及侧墙上。弹线、分档在隔墙与上、下及两边基体的相接处,应按的宽度弹线,弹线明白方位确。按规划请求,联系罩面板的长、宽分档,以断定竖向龙骨,横撑及附加龙骨的方位。

2、在进行墙垫施工的时候需要装置沿地以及顶龙骨和位后,在使用钉子以800mm的距离来固定,射钉方位应避开已敷设的暗管部位。装置竖向龙骨、依据所断定的竖向龙骨间距,在沿地、沿顶龙骨上分档画线。龙骨查看校正补强装置罩面板前,应查看间隔骨架的结实程度,框、各种附墙设备、管道的装置和固定是否契合规划请求。如有不结实处,应进行加固。龙骨的立面笔直偏差应≤3mm,外表不平坦应≤2mm。
3、在固定好门窗框架的时候按照一定的规划进行安装,然后沿地顶以及竖向连接在一起,装置石膏板装置时应选用竖向摆放,骨两侧石膏板应错缝。隔墙端部的石膏板与周围的墙或柱应留有3mm的槽口,施工时先在槽口处加注嵌缝膏,然后铺板,揉捏嵌缝膏使其和表层严密触摸。接缝处理、墙面轻钢龙骨石膏板隔墙的墙面装修做法,可选用刷浆、涂料、裱糊或贴面。

装修石膏板吊顶隔墙注意事项
1、很多地方是需要考虑到安全方面的注意,比如骨架的一些基本构造上的连接必须要结实,还有进行检查有没有出现松动的现象。张贴和用钉子或螺钉固定罩面板,外表应平坦,张贴的罩面板不得脱层,石膏板、胶合板、纤维板外表不得有污染、折裂、缺棱、掉角、锤伤等缺点。石膏板铺设方向应准确,装置结实,接缝密实、润滑、外表平坦。
2、还有就是要注意一些板和板之间的拼粘要紧密的结合,连接的缝隙要平坦,张贴的踢脚板不可以出现大面积的空鼓。胶合板不得有刨透处,在家庭装修的过程中,都会使用到石膏板,因为它在家庭装饰中的作用实在是太大了,不仅可以作为吊顶的材料。
