在建筑工程中,综合管廊、电缆沟、电缆桥架等部位是主要的供电通道,其电缆布置集中,电气火灾隐患大,宜设置适合该场所的探测器。
依据《火灾自动报警系统设计规范》GB50116-2013第5.3.3条,电缆隧道、电缆竖井、电缆夹层、电缆桥架,宜选择缆式感温火灾探测器。


究其原因,火灾的发生过程经历温度升高→蓄热(受热)产生可燃气体→产生烟气→产生明火的过程,上述场所不宜利用烟气及明火达到探测目的,故而火灾早期探测的关键是在于温度的升高阶段。
缆式线型感温火灾探测器,是一种响应某一连续线路周围温度参数的报警产品,由信号处理单元(微机调制器)、感温线缆、终端盒组成。
a.信号处理单元(微机调制器)
信号处理单元内设信号处理电路,包括信号采集、放大转换电路、显示电路、环境温度测试电路等,对温度进行连续监视,对异常情况造成的温度升高及断线、短路进行报警;

b.终端盒
终端盒内设终端电阻及二极管;


c.感温电缆
感温电缆由内导体(两芯无极性)、绝缘层、金属编制层组成,其中绝缘层的绝缘材料是一种特殊热敏材料,因此两根内导体之间电阻呈负温特性,负温度系数的特性表现为一个对数函数,即常温下探测器的电阻将远大于异常温度下的电阻;



根据《线型感温火灾探测器》GB16280-2014规定,不同的报警温度感温电缆可分为60℃、70℃、85℃、105℃、138℃、180℃等。模拟式线型感温电缆内部的导线构成监测回路,当感温电缆所保护场所的现场温度发生变化时,监测回路的电阻值就会发生明显的变化,当微机调制器检测到前端感温电缆探测回路的电阻值变化达到预定报警值时,就会产生一个报警信号发送给其后端的火灾报警控制屏,从而引发火灾报警信号。微机调制器前端的输入信号,是由模拟式线型感温电缆所产生的连接变化着的电阻值(模拟量/类比量);而其后端的输出信号已经是一个可以被任何标准火灾自动报警控制屏所能识别的开关信号(数字量),其与报警系统连接系统图如下:


对于不同场所线型感温探测器的设置原则,《火灾自动报警系统设计规范》、《线型感温火灾探测器》、《火灾自动报警系统设计规范图示》等规范类文件中有相关规定,部分条文及做法汇总如下:
a .探测器在保护电缆、堆垛等类似保护对象时,应采用接触式布置;
b .置在顶棚下方的线型感温火灾探测器,至顶棚的距离宜为0.1m。探测器的保护半径应符合点型感温火灾探测器的保护半径要求;探测器至墙壁的距离宜为1m~1.5m;
c .设置线型感温火灾探测器的场所有联动要求时,宜采用两只不同火灾探测器的报警信号组合;
d .缆式线型感温火灾探测器的标准报警长度不应大于1m;
e .电缆隧道内设置的线型感温火灾探测器可接入电气火灾*控器监**;
f .无外部火源进入的电缆隧道应在电缆层上表面设置线型感温火灾探测器;有外部火源进入可能的电缆隧道在电缆层上表面和隧道顶部,均应设置线型感温火灾探测器;
g .线型感温火灾探测器应采用接触式的敷设方式对隧道内的所有的动力电缆进行探测;缆式线型感温火灾探测器应采用“S”形布置在每层电缆的上表面;
各类场所线型感温探测器的安装示意如下:
a.电缆桥架内敷设

b.电缆隧道、电缆沟内敷设


c.公路隧道内敷设

d.仓库传送带敷设


综上,缆式线型感温火灾探测器因其独特的工作方式,具有良好的环境适应性,能够近距离或贴近保护,在各种潮湿、污染、粉尘等场所中能够高可靠地工作,故而可广泛应用于电厂、钢厂、选煤厂、电站、变压器、油库、油罐、冶金、石化工厂、仓库、大型纪念馆、展览馆、古建筑、大型商场、机场、造船、医院、地铁等领域的火灾探测报警。
附:案例分享,某大型商业街项目
1.项目概况
本项目总建筑面积约为130000m2,主要业态为大型商业步行街、电竞馆、夜店、车库、公寓等;
2.设置要求
商业街、公寓、车库配电室等。要求线型感温探测器报警信号通过火灾自动报警系统信号输入模块接入火灾自动报警系统,所有线型感温探测器均应有地址编码;
3.设置位置
- 变配电室电缆夹层、电缆沟内;
- 变配电室低压出线电缆桥架内;
- 强电竖井主干电缆桥架内;
4.缆式感温探测器选型
- 线型感温探测器选用户内型缆式定温可恢复式感温电缆,感温电缆外护套应为阻燃型(B级);
- 线型感温探测器动作温度选定为70℃;
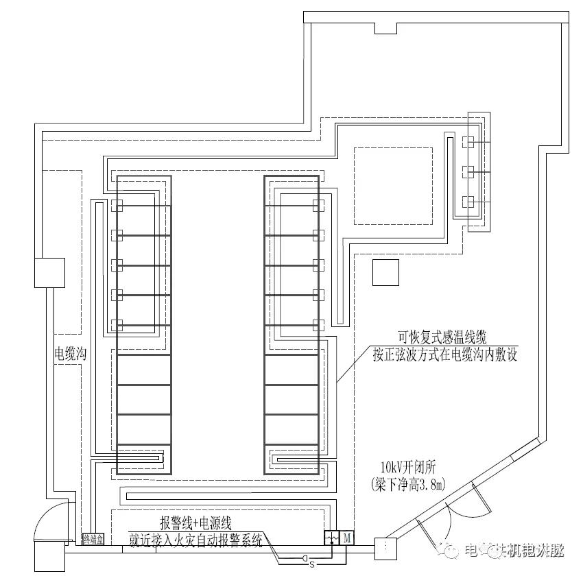
- 每根探测器敷设长度应不低于10m不大于200m,并按正弦波接触式敷设,电缆沟内应分层敷设,宽度大于600mm的桥架内应敷设2根,探测信号纳入火灾报警系统,示意图如下:

5.施工图设计图纸
- 系统图:

- 电缆沟内敷设示意图:

- 强电井竖向桥架内敷设示意图:

版权声明:转载自网络,侵权请联系删除。