前言
现代原木营造出的闲适写意之感令人沉沦,业主希望新家拥有悠然自得的生活氛围,让自己及家人远离城市喧嚣,得到身与心的安稳。这是我们与业主几次沟通后的方案,适合屋主、每个屋子本身的属性以及个性的表达。

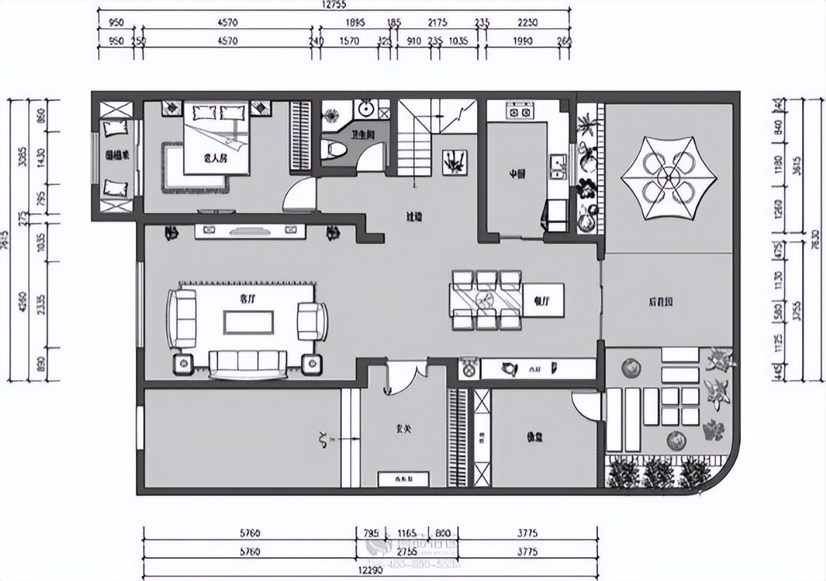
(一层户型图)
一层的格局相对比较公正,客厅与餐厅的衔接令视觉尺度显得更加舒适,老人房和佛堂规划在一层,满足了老人生活及精神需求,一层还设有后花园,对设计师的户外造景设计有一定要求。

客厅主色调以极简白和原木色系为,加以棉麻、陶艺等自然气息饰品点缀,让忙碌一天的疲惫感在顷刻间得到放松;从电视墙的设计可以感受到业主素雅低调的审美观,墙面增加了多个收纳柜,并做了隐形处理,一切都恰到好处的净。

设计师透过空间传达出平静、疏淡、简朴的用餐氛围,原木元素带来简约品质,设计师将家具线条、色彩和照明方式做了简化,留下白与木,空间的冷暖温度趋于平衡,简约而不失质感。

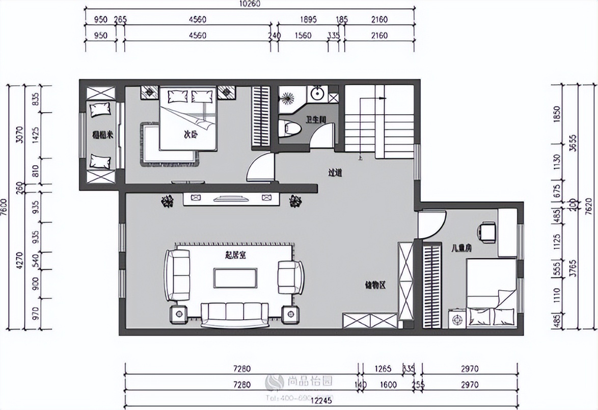
(二层户型图)
二层为主要生活区,设有一个卧室和一个儿童房,过道空间比较宽敞,设计为休息区非常适宜。

过道吊顶造型简单,光线的堆叠带来强有力的视觉气场,布置以柔和舒适的休闲沙发,增强了空间的舒缓感。

休闲区无吊顶设计,背景立面使用大量原木做收纳设计,细腻的触感与柔和的质感增强了原木风调性,简约的现代家具放置其中,在温暖之中释放出都市的活力氛围。

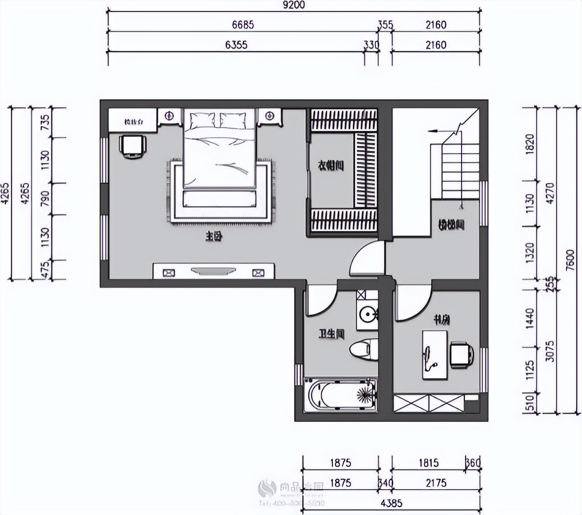
(三层户型图)
三层为套房设计,主卧中设计了衣帽间和卫生间,主人隐私得到很好的保证,为满足业主的办公需求,设计师在该层规划出书房。

卧室中,白色与木色搭配使用,地板上墙设计,干净的拼接带来温馨的视觉感受;软装方面,床品触感舒适,色彩以灰白为主,散发出宁静的质感。

整个儿童房空间由白色与蓝色组成,顶面利用线条做了视觉层次,令空间显得更加活跃,灰白色背景呈现童话意境,儿童床融入其中,显得精致而灵动。
认识设计师

设计师:徐静
设计师级别:优秀设计师
从业年限:11年
擅长风格:别墅,平层,户型改造
擅长类型:现代,美式,欧式,新中式
设计见解:
用心感受生活之美,将生活其间的人恰如其分的融入空间氛围之中,在每一个作品里体现主人的情感意识与精神文化,让您在享受生活的同时提升生活品质。
主要作品:
主要作品:
《海晏春秋》
《五里春秋》
《旭辉六号院》
《旭辉七号院》 《昆仑域》 《一渡新新小镇》
《首创采微雅苑》
《梅诺卡小镇》
《牛驼孔雀城》
《霸州孔雀城》
《固安剑桥郡》
《三盛国际城》
《上水颐园》
所获奖项
2014年公司年度精品优秀设计师
2016年公司年度精品优秀设计师
2018年中国室内空间环境艺术大赛优秀奖