哈喽,「模范设计师」栏目又闪亮登场啦!「模范设计师」是一兜糖家居App中最硬核的家装内容设计者,每周带大家看看他们的作品!一起体会他们的硬核脑洞、居家智慧,感受家的设计如何改变家人的相处方式!
热爱打游戏的物理学博士+轻度强迫症的女主人,他们的家是什么样子呢?
今天给大家推荐的设计师是@昆设计事务所,设计师为两位爱玩游戏的屋主打造了超能收纳的柜子,藏满了游戏机和游戏碟;并在书房和客厅之间用室内门做分割,使得整个空间通透又敞亮;双向联通的更衣室和三分离的主卫......每一个细节上都极大地适应屋主的生活习惯。
快随糖主去看看这个充满魔力的家吧!


开始设计之前,这一对小夫妻给我发了一个excel表格,每个空间都有自己的标签,标签下是他们对每个功能区域的要求。其实我喜欢这样的业主,他们对自己的当下是有深刻认知,对自己的未来也有规划,他们清楚的知道自己需要什么,但是他们可能不知道自己不需要什么,设计初稿的主题就是从这个表格当中开始做减法。

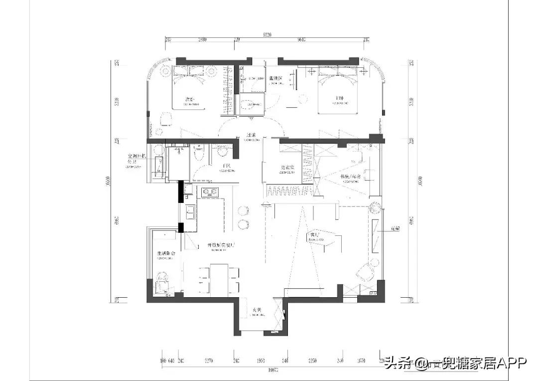
房屋信息
户型:三居室
使用面积:105m²
装修花费:50.0万元
房屋位置:福建福州

原建筑结构上主次卧两个地方的伪剪力墙,装修进行一半才在楼上邻居家发现是可以敲掉,于是砌完墙又优化成了最终版平面。

- 生活阳台挪到餐厅左侧,虽小也足够用。
- 拓宽客厅空间,落地玻璃窗,光线通透,南北对流。原建筑阳台一段70公分的剪力墙,电视背景墙比较遗憾不能连贯打通,却也借此空间增加了一个杂物收纳柜。
- 厨房开放式,和餐厅客厅连成一片。
- 书房向右压缩一部分,给主卧腾出一个更衣室,更衣室双向联通,主卧及公共过道都可抵达。
- 主卧开放式浴室,做成三分离。
- 次卫外扩,预留空调及热水器外机位置。


入户玄关右手边整体鞋柜集合强弱电箱。1.8米的旋转鞋架+常用鞋架。鞋柜抽屉方便日常使用。

入户玄关左侧粉色墙壁应了女主人的少女心,鞋柜拉手特意挑选了金属嵌粉皮与之呼应。
——金属全身镜来自IKEA


实木玻璃门背后公共书房,门的颜色当时做了许多色卡一直不对味,还好最后莫名和谐。

大梁位置太尴尬,为了反寻常把灯光做在梁背后,将梁独立出来。漫反射光,见光不见灯。客厅上方两个粉色马卡龙射灯,粉色挂画,粉色毛毯,我们有在认真帮女主人呼应主题。

客厅看向餐厅厨房,1.1米高吧台恰好遮住厨房台面设备。

▲客厅看向书房

业主从事工作都与游戏有关,他们业余爱好就是吃和玩游戏(略好命),白色电视柜里面藏着他们的3台游戏机和游戏碟。据说客厅才是他们的主场,大部分时间都在地毯上玩游戏。白色烤漆柜门后面是杂物及行李箱收纳。福州当地采购米色绒布窗帘,强迫症不能接受店里有两个圆球的窗帘杆,只好宜家网购细杆黑色窗帘杆。
——电视柜来自IKEA;落地音响来自B&O A9


左侧是一个深度650mm的收纳柜(无处不在的收纳),书桌右侧是窗户,中间不愿增加竖版,所以在转角处加厚支撑,顺便增加了一个推拉的矮柜(哎,见缝插针的收纳)。显示器背后就是那个传说中的轨道式插座,网上可购买。如果空间不考虑遮光,白色蜂巢帘绝对首选,经它过滤的光线,就是那句手机广告词——柔光双摄,照亮你无处可躲的美丽。

组合式收纳书柜,开放与封闭结合,自由不沉闷。



餐厅厨房地面用灰色瓷砖,切割大小比例工字缝拼接。在施工初期就预留好金刚板厚度,在铺装的时候金刚板与地砖才能在一个平面,中间镶嵌0.5mm铜条。工艺稍麻烦,贴瓷砖时候要把铜条嵌好,后期还得做好措施护它周全,但是最后呈现效果平整美观,是地板配套的金属扣条无法达到的高度(嗯,这个是师傅背后诅咒工序之一)

——餐桌来自minimore;餐椅来自IKEA;餐具来自IKEA


厨房布局上业主给了很多想法,100*100的小砖,加高吧台区域,预留一个推车区域放蔬果。小白小砖虽然网红,不过成品还是好看的,只不过施工过程几经波折,耗工费钱(嗯,这个是师傅背后诅咒工序之二)。在挑选厨柜的时候女业主被岩板种草,最后还是搬回自己的厨房,全厨房最贵的产品就是它——西班牙岩板台面。
业主最得意的就是设备后面那一排轨道式插座,可增可减,即插即用(可惜没拍到),可以参考书房书桌墙壁轨道插座(同款)


——沙发来自IKEA;装饰画来自BRUSHEEP

在设计方案的时候就确定公共空间墙体要上下错色,刚上完涂料地板还是水泥的时候,业主大呼怎么办感觉进到以前的学校,我们打趣说不如就在卧室挂个“三年二班”的牌子。其实地板铺装上去完全又是另一种味道,也找不到初中部的回忆了!(有惊无险系列一)

▲过道看向餐厅

过道推拉门背后是更衣室,更衣室与主卧和过道是互通的。钟爱这张图片,有一种夏日午后的宁静,强行加入。(更衣室用的宜家艾格特系列开放式储物架,现场塞的满满当当,摄影师已经无能为力,女人一个更衣室永远是不够用的

▲官网找了一张参考图


白色小砖从厨房绕到背后的洗手区,粉色墙壁是玄关的延续。定制的人造石洗手台也不要轻易尝试。抽屉与台面之间预留了尺寸,放置杂物收纳篮。

圆镜中反射了背后墙上的挂画——跳跃的粉红女郎


内百叶铝合金推拉门,外面是空调外机及空气能设备,推拉门方便日后检修。加长的排水口加快淋浴排水。100*200的长条小砖白色勾缝,与主卫空间做一个区分,更清爽明亮。——隐藏式花洒来自HANSGROHE



深蓝色的背景墙容易吸光,弱化光线,刚装灯的时候完全不亮,最后在灯槽上装了两排灯管。实际入住后发现卧室光线完全不用那么亮,辅助性光源的结合,让空间显得刚刚好。(有惊无险系列二)
早期想在墙上挂层板放投影仪,后期取消以后留下一个插座,这个小挂毯刚好出现,简直是神来一笔。

海水蓝绒布的窗帘是为这蓝墙挑选的。仿古的吊灯在夜间的光特别温暖。

主卧与更衣室联通的移门,是黑框双面镜。白色面漆卧室门加高到顶部,会拉高空间层高。


三段式分离的主卫,黑框长虹玻璃门背后是挑选了壁挂马桶,上半部分刚好装一个收纳吊柜
——马桶来自DURAVIT

为了与厨房空间区分,主卫用了半墙高的长方形小砖,顶部用铜条收边。不知道女主人和自己斗争了几个不眠夜,最后还是把淋浴换成了浴缸(空间有限,站着和躺着只能二选一)。没有淋浴水汽不多,把玻璃隔断取消换成浴帘,空间又开阔了几分。(生活如此艰难,多犒劳自己是对的,回到家舒舒服服的泡个澡,还会有什么烦恼)
——花洒,浴缸来自KOHLER

拍照当天天气阴,据说每天早上阳光透过百叶洒向地板的时候,是一种可以治愈的美(坐等业主亲自补图)四层的圆柱形收纳柜,弥补洗手台抽屉收纳不足。

阳光下的浴室

开放式卫生间区域的六角地砖与主卧金刚板的直接方式,不得不说进口金刚板安装师傅比较细心,板与砖衔接出打了很细的玻璃胶,照片上基本看不出来。(嗯,这个是师傅背后诅咒工序之二)


床单和窗帘很配。
女主人亲手掰的造型吊灯——来自IKEA

这个暂时无人居住的次卧我想应该沦落成女主人的另一个更衣室了。


女主人费尽心思挑选的小棋盘花砖,放在小阳台空间别有风味。洗衣机右侧空间刚好预留一个推车位置,平常置放待洗脏衣。挂画上是洗衣标志,放在此处大好。




如果说有遗憾,就是厨房的小方砖,100*100的规格对于纯手工来说,确实有点不好把控,不管是砖的质量还是人工的手法,两者出现一个问题,完成效果都会有些折扣。返工了3次,才算合格交付。希望下次设计小砖能够规避这些问题。
- 控制造价,鱼骨拼实木地板没有实现,遗憾留给下一套房子弥补(女主人的遗憾)。
- 因为主卫和主卧打通,感觉空间太大,暖气留不住(女主人的遗憾)。
- 次卫花洒是汉斯格雅的飞雨系列,好用推荐(设计师连哄带骗系列)。
- 内夹百叶双层玻璃铝合金门,好用推荐。
- 全屋无主灯设计(除了次卧)不要排斥无主灯设计,也不要怀疑它的亮度,丰富又有层次的光源让空间更有氛围。
- 厨房留个小推车,很好用(女主人的呼唤)。
- 主卧双台盆设计,很适合同时段使用,互不干扰(如果空间足够)。
『 Q & A 』
Q1: 看到您在书房和客厅之间利用一扇“室内门”,使得整个空间敞亮了很多,在室内门的应用上,有没有一些什么建议可以给到大家参考呢?
A: 推拉门的弱点隔音封闭性较差,如果不是特别注重隐私的房间,都可以用玻璃室内门,一则可以增加采光,二则联通空间,开阔视野,可以放大室内空间尺度。交互型空间使用,里外还可以增加互动性。
Q2: “公共空间墙体错色”这个设计是基于什么考虑呢?
A: 纯粹是因为个人喜好,屋主想突破单调的墙,当下许多网红住宅墙面又流行拼色,才有了这个三年二班的教室墙(笑)。实际证明拼色墙效果比白墙更丰富有趣。
Q3: “书房向右压缩,并腾出了一个双向联通的更衣室”,这个设计是与屋主的哪些生活需求相匹配的呢?
A: 屋主将有较长一段时间都是二人世界,所以设计上更私人化一些。女生都会梦想一个完整的更衣室,100平方的三房很少能有独立更衣室格局的户型,所以我们压缩了书房的空间,增加了一个更衣室。书房尺寸还控制在可以放下一张活动床(虽然后面基本用不到活动床,不过现实中这个空间的尺度比较舒适,两人使用不会太大或太小),主卧在施工过程中把淋浴改成浴缸,所以更多时间都会在次卫淋浴,双向联通的更衣室在动线上会更加便捷。我个人也比较喜欢酒店套方式的布局,更衣室卫生间卧室多空间的互通性,让我觉得有趣。生活要有趣。
Q4: 看到本案的装饰画都非常的独特又和谐,在家装装饰画的挑选上,有哪些原则呢?
A: 在硬装的设计中,粉色是我们的辅助基调,所以我们在软装中也会放大这个点,找一些粉色的装饰去呼应,形成一个空间焦点。可以用同色系不同纯度去穿插搭配,色块和线条的装饰画都是比较热门的北欧装饰元素。
Q5: 在和屋主沟通的过程中,有什么让您印象深刻的事情吗?
A: 屋主夫妻两个都是比较有规划的人,所以在设计施工的进程中一切都比较顺利。女主性格较为纠结,经常要在二选一的过程中绞尽脑子,比如主卫的淋浴到了水电放样的时候才最后决定改成浴缸。比较可贵的是,两位都愿意对方去妥协放弃一些东西。
Q6: 在整个案例中,您最满意的设计是哪里?为什么?
A: 更衣室的双向联通和主卫浴室的三分离是我比较满意的地方,这些小改动让空间功能更丰满,生活上更实用便捷。更衣室通过道的推拉门是木工现场制作的基础,然后使用了同墙面的色漆,保证了推拉门和墙面的完整性。也弱化了过道较多门和门洞的视觉差,有一定延展性。以上刚好是我比较注重的功能和美学的平衡。
最后,一兜糖家居交流微信群持续开放中,感兴趣的小伙伴备注*今条头日**,添加“yidoutang222”即可~
关注一兜糖家居公号“yidoutang123”,第一时间get到新出炉的家居干货哦~
本文由一兜糖家居APP头条号整理发布,未经授权禁止以任何形式转载。