
广东福建农村建房子,三层是比较多的,占地一般也是长宽都是10米左右。过去农村建房子,都是为了面子,主要考虑如何外观大气,内部布局不重视。现在建房子,虽然外型也很重要,但大家已经开始更加重视保温,结构安全,内部布局是否合理。尤其是一层的布局更是重要,今天给大家推荐一个方案,看看你是否喜欢。

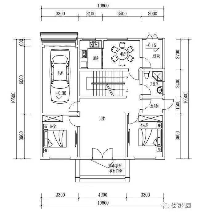
一层平面图:农村建房子,客厅和厅堂真不一样,厅堂也可以叫堂屋是要摆神位的。神位还有讲究,后边不能紧邻厨房,上边不能是卧室,而且要开大门正对。今天这种布局方案是将楼梯放到中央,餐厅和厨房放到楼梯后边,这样靠楼梯间,大门正对这面墙就可以摆放神龛。而且厅堂两边有两个南向卧室,北边还是6米长的车库,餐厅边上还有一个小后院。

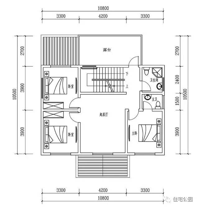
二层平面图:上下对应看,神龛墙后是楼梯间,这种布局的好处就是神位上边无论如何不会有卧室。餐厅厨房上边不能做卧室,不如直接改为露台,楼梯间也就有了采光。主卧带卫生间,下边农具间可以直接走管。

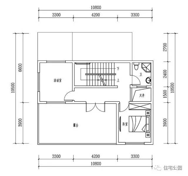
一二层有了五个卧室,顶楼虽然还有房间,但可以当做活动室或者健身房等。毕竟南方夏天晚上顶楼不能住人,三层起隔热作用。对应的主卧卫生间取消做成一个采光用的天井,卫生间及走廊采光问题也就解决了。

微信公众号:houseparkcom(长按可复制),500套农村自建房图纸,民宅定制设计