综合体单体设计涉及的内容较广,包括商业、办公和酒店。今天我们的主题:办公设计的要点。首先我们少不了对相关概念与规划要点的了解,再到我们的核心内容,标准层与体量设计、分区与核心筒设计,最后到功能用房的设计。这些内容我们一共分为四个章节讲述。

相关概念与规划要点
概念——如何定义超高层

首先我们要对超高层有个基本理解,到底多高的写字楼属于超高层建筑。实际上我们是以时间为划分标准,对超高层的定义可分为三个阶段:
第一个阶段
1972年以前,7层的建筑一般就被认为是超高层建筑。
第二个阶段
1972年国际高层建筑会议,规定了按照层数的多少把高层建筑划分为以下四类:
第一类高层:9一16层(最高到50米);
第二类高层:17一25层(最高到75米);
第三类高层:26一40层(最高到100米);
第四类高层:超高层建筑,40层以上(100米以上)。
第三个阶段
20世纪90年代以后,随着建筑、工程技术的进步,没有明确的划分标准,一般认为: 8-29层,高度30米以上100米以内为中高层建筑;30-60层,高度100米以上200米以内为高层建筑;60层以上,高度超过200米的为超高层建筑。
就我国来说,没有严格的超高层概念界定,但从目前的《高层民用建筑设计防火规范》来看,一般将100米以上的高层建筑统称为超高层建筑,继续沿用第二个阶段对超高层的定义。不过在100米的高度区间,110米和120米的建筑物无论从结构还是设备及施工等方面均无明显的质的变化。
这种分类方法是否具有充分的科学依据以及是否符合国际一般标准还有待商榷,因为目前超过100米的建筑已经越来越多。但是我们可以肯定的是国际对超高层的定义取决于不同阶段的不同技术条件。
概念——写字楼分级
写字楼的叫法源于香港,而写字楼的等级也只是市场给的一个说法。比如我们经常听到一些写字楼宣传“甲级”与“超甲级”。实际行业内还没有一个权威认证机构对“甲级”有成文的规定,国内更没有规范详细规定甲级必须达到什么标准。它是起源于香港著名策划公司、统计公司如戴德梁行、世邦魏理仕给业主定义的。大家都不愿意被定义“乙级”,市场上绝大多数上规模的写字楼都被包装成“甲级写字楼”,仅此而已。

而写字楼还有“5A写字楼”的说法,这个倒是有一个类似于酒店星级评定的明确标准。5A指的是智能化(automation),分别是
OA:办公自动化系统
CA:通讯自动化系统
FA:消防自动化系统
SA:安保自动化系统
BA:楼宇自动控制系统
但是对于建筑师给业主汇报方案时,无可避免被业主问到甲级与超甲级的区别的话。我们也是根据已有的经验,给你们提供了一个标准明细。

甲级写字楼与超甲级写字楼的区别除了体量、面积和净高这些基本建筑信息之外,还有配置也很重要。重点提及走廊宽度里的电梯前室,如果你的写字楼定位是高端豪华路线,我们就会建议大堂的电梯前室不应该低于3.3米,而3.3米也被认为区分定位的一个分水岭。
另一个就是对写字楼影响比较大的电梯系统,作为建筑师,我们主要关注电梯的载重量与配置比例。甲级与超甲级在电梯配置比例上差别只是几百方,但是这个差别并不是绝对的,要区别写字楼之间的等级,关键还是看人们在标准层等候电梯的时间,时间越短,写字楼级别越高。
最后提一下表格中的穿梭梯,通常指车库至首层或者首层至顶层的大堂转换层的电梯。这些电梯的标准主要看经济情况,基本都采用1.75米/秒的梯速,算是速度相对较慢的电梯,因为抵达层数少,即使用最低速的电梯,也能够满足60秒的消防呼救的时间间隔。所以大家在做穿梭梯的时候自然而然会选择这种速度慢,但价格便宜的电梯。
概念——标准层
关于写字楼的标准层,诸如标准层轮廓、进深和核心筒轮廓这些基本我们就不细说了。

我们重点要知道的是标准层的有效建筑面积,即标准层建筑面积减去核心筒的面积所得。

而标准层的净使用面积和有效建筑面积的区别就是减去公共的走道与设备管井的面积。那么这两个面积对于租户有什么影响呢?比方说如果你是租下一整层的话,那么你就应该关注标准层的有效建筑面积。而如果你只是租下一层里的某一间办公室,需要承担走廊的公摊面积,这时你就应该关注标准层的净使用面积。

根据标准层有效建筑面积和标准层的净使用面积,我们又可以得出两个数据:基本得房率和二次得房率(概念如图示)。不过二次得房率的参考意义不大,真正有意义的应该是参考基本得房率乘以二次得房率后的数值,即标准层净使用面积与标准层建筑面积的比值,我们称为净得房率。净得房率也是我们使用比较多的参考数值。

一般我们在做指标的时候,有可能会弄混基本得房率与净得房率,实际上它们不能一概而论,往往会因为公共走廊的差别,在数值上存在六七个点的差异。所以大家需要明确这些概念,千万不要犯糊涂了。
办公体设计的相关概念就普及到此了,马上进入规划的要点讲解。
我们在上篇讲解商业体设计,当中的组织设计章节提及到了商业体与办公体之间的关系,办公体的部分规划要点,各位可以回顾一遍。那么这里我们根据办公体规划,针对塔楼裙楼合并和分开的两种情况为大家补充要点。
规划——塔楼裙楼合并
我们提过办公楼一般设置在整个商业动线的一端,如果遇到有交叉口的路段,那么办公楼就会如下图放置。在这里办公楼充当了一个标志物的作用。

看到这里,可能有人会问办公楼这样放置怎样安排车流线?因为交叉路口受到退距的限制,不能在70米的距离内设置车行交通入口。那么这时我们办公的车流就不得不与综合体其他功能的车流重叠。
在这张图里的车流安排就是从临街一侧进入,经办公楼前的广场最后再绕行进入地下车库,这时的车库出入口与综合体统一考虑,并且车行入口的道路(绿化退距与双车道)必须留足够大的距离。
同样是合并的规划情况,但是用地没有那么紧张的话,建议最好是在办公楼前设计一个回车场或者是地下车库的出入口(如图所示)

规划上安排完车流后,我们再来看人流的设计。

综合体设计中各功能板块可以连通,但是要注意商业动线不要直接进入办公或酒店的大堂,毕竟大堂就是代表门面的名片,视线内不希望看到杂乱的人流。所以往往会设计一条较为隐蔽的流线,来将办公、酒店和商业三部分连通。
这个要点影响到我们核心筒的交通流线设计,我们将上图案例的核心筒交通简化为下图:

可以注意到规划完功能的出入口,核心筒的基本形式以及组织形式也形成了。图中即形成了T字型的交通关系,即使在不知道电梯数量和管井布置的情况下,也可以画出核心筒。它会对我们在做整个办公单体深化的过程有很大的帮助。
规划——塔楼裙楼分开
在规划中塔楼与裙楼分开时,通常会出现用地宽裕与紧张的两种情况。
在用地较为宽裕的情况下,我们参考下图,最好可以将办公、酒店甚至是公寓的流线形成单独的回车环线。即把不同功能的车流线形成独立单向环线。

图中办公和酒店的车流都可以通过一个独立的环线,进入地下车库或是离开,互不干扰。
然而在用地比较紧张的情况下,我们可以沿着建筑物的外围设计流线,如图,车流从城市干道重叠进入,然后将一部分流线给酒店,一部分给办公,最后重叠的路线要么连接城市干道,要么连接地下车库。

标准层与体量设计
了解完概念与规划要点后,我们渐渐也来到了核心章节,标准层与体量。对于办公楼设计,标准层与核心筒、使用率这些的关系可谓是重中之重。

办公楼的本质实际也很简单,就是由一个筒组织起来的。说起核心筒,就不得不提起潘工的青涩往事,想当年刚毕业出来工作老板安排的第一个任务就是画核心筒的施工图,当时内心os:哇,老板将这么核心的东西交给我做,应该是很信任我的能力,看来只要我努力很快就能走上人生巅峰!后来得知真相的潘工不禁流下一行热泪,老板竟然说因为核心筒比较简单,交给我这种小白应该没什么问题……

上面的故事大家听了就乐呵一下好了,实际上核心筒说难不难,但说容易也不容易。难是难在方案前期我们如何把所有电梯、楼梯、管井还有整个交通形式,以比较经济的形式将它们合理地组合在一起,最终提高使用率。那么说它容易呢,是因为它在各方面确定之后,去到初设或施工图阶段,只要按照规范去安排和其他专业配合,就能基本完成核心筒。
所以一个成功的办公楼案例,它的核心筒一定是在方案阶段就已经落实。
体量影响因素——规模、高宽比
要知道体量对核心筒,乃至整个办公楼的影响首屈一指。如果我们从美学的角度来评判一个建筑,就离不开它的规模与高宽比。高宽比越大的建筑给人的印象越挺拔,一般低于3:1或接近2:1比例给人的感觉偏矮胖。
最后我们得出了4:1这个比较标准的高宽比,高宽比在4:1以上是比较理想的,直到5:1以上会有较强的挺拔感,超过6:1则结构难度加大(67度区高宽比在6:1-7:1为框筒结构上限)

不过高宽比可不是我们一厢情愿地设定的,而是取决于总建筑面积。不同总建筑面积形成的建筑体量完全是不一样。我们通过下列列举的数据, 从而获得对体量的准确把握。这样我们在方案前期,拿到总建筑面积数据时,也能够大概预知建筑的体量。

这个表格讨论的是一个点式的正方形超高层,那么从第一行看起,3万的总建筑面积想要做到4.1的高宽比,那么标准层的面积只有950,这是一个不符合经济要求的指标。一般我们认为标准层面积要至少接近2000㎡,建筑高度接近200m才算是符合经济的超高层建筑,所以如果你的规模在5万以下的建筑面积,建议还是采取板式,横向发展的建筑形式。
体量影响因素——标准层办公使用面积系数
标准层办公使用面积系数称为K值,表示使用率。那么k值与建筑层数的关系,我们用下图表示,层数越高,核心筒所占标准层面积越大,K值越小。10层时K值可接近78%。原因是层数越高,核心筒的各种设备、电梯所占面积的增幅高于标准层办公使用面积,使用率相应下降。

K值与建筑层数的关系
K值与标准层建筑面积的关系图呈抛物线,当标准层建筑面积达2500左右,使用面积系数达到最大值,接近80%,通常78%已经是极限。

K值与标准层建筑面积的关系
上面两个系数表来源于二三十年前日本研究所得,由于受到当时建筑设备和技术的限制,所以上表仅供参考,只需要理解其中的原则,对于数据不必死记硬背。
现在的大楼比起以前的混凝土结构,大多采用钢结构以及高效能的设备,大大节省了设备与电梯间的面积。接下来我们用实际项目来讲解一下:

我们通过比较得知,拥有118层的上海中心比43层的无锡时代广场1号塔楼的得房率高,这时你可能会问:不对,上面不是说层数越高,得房率就越小吗?实际上当标准层面积大于3000时,只要设计合理,并且采用高效的设备,不浪费每一个平方的面积,得房率也可以高达75%。不过这样一来,就要看业主爸爸愿不愿意出钱买好的设备,最终达到提升使用率的目的。
标准层
标准层的面积受到建筑形体的影响比较大。我们以外形呈现梭型的武汉中心为例,由于中间大,两端小的外形,我们可以得知中间部分标准层面积最大的层数,使用率k值也是最高。层数继续往上走,标准层面积的减幅超过了核心筒面积的减幅,所以使用率不断变小。而住宅楼与办公楼的区别正是几十层的住宅楼的k值都不会发生改变。

正是因为办公楼的标准层和使用率受到外形形体的影响大,所以我们在设计时,要切记不能一味追求标新立异的外形,而牺牲掉楼房的使用率。
标准层——核心筒位置
核心筒的位置是影响标准层的一大因素,下图我们归纳出五种核心筒位置以及相关的要点。

各类核心筒位置的知识点归纳
最常见的核心筒位置就是中心筒式和中长筒式,板式的塔楼则常用偏筒式,留出大量的办公空间。还有分散筒式和外筒式,这两种核心筒位置的优势相当明显,共同特点是能够创造出完整的、开放的、大面积办公空间,常应用于大公司的总部或有能力整层出租的,不利于分割出售的普通办公楼。
但是结构合理性并不是我们评判超高层的唯一标准,判定建筑的经济性还有其他标准,譬如景观。假设这栋楼的北面是轻轨、铁路甚至是垃圾场等不良的因素,南面能够看到湖泊、草地和公园这些优良的景观。这时候建筑师综合考虑就会将核心筒移至北端,而不是采取传统的中心筒式。也许在结构师看来楼房的结构并不理想,但是甲方就会比较欣赏这种设计,毕竟开阔的景观面,大面积的办公空间,进一步提升了甲方的楼房价值。

所以判断核心筒的位置是否合理,需要综合考虑多方因素,尤其是价格和结构经济性。不要直接就拿一个经典平面套到实际案例。
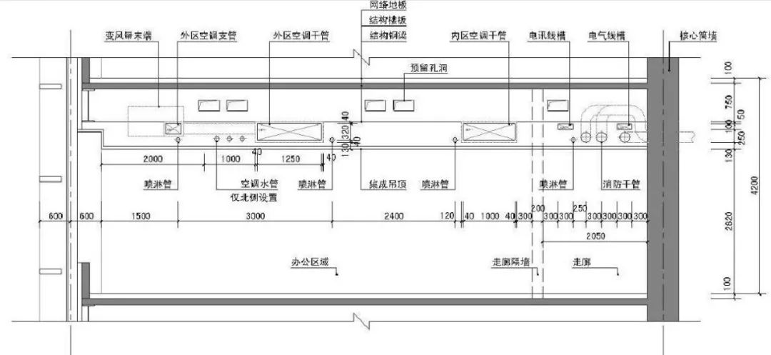
标准层——层高
首先先来普及几个关于层高的基本概念。架空楼板、结构楼板、台高和加工线脚这些加起来就有250mm-300mm,而设备风管和水管层占了层高的大头,高850mm-900mm。风管下还有一个吊顶大约在150mm。以上我们全部归入设备吊顶的高度取1200(已经是至少要达到的数值,需要和设备专业扯上半天的结果),情况复杂可能还需要出一个设备吊顶的模型,将内部管线重新布置。

所以当前的甲级写字楼层高已经向4m和4m以上冲击,至少保证净高度在2800。如果层高低于4m,净高度就会低于2800,给人压抑的感觉。
层高中的吊顶分为两种,平吊顶与高低吊顶。对办公面积不大的区域,多采用平吊顶。

平吊顶示意图
吊顶以内的设计包括风管层(320—350mm),风管旁边相同标高的有三足管(冷凝水、给水和排水),还有消防喷淋的支管,消防干管通常位于走道上方。最后再考虑桥架,大约在100mm的高度。了解吊顶内部对于我们绘制施工图很有帮助。
而高低吊顶则针对办公面积较大的区域,有大空间如会议室,需要局部放高,调整综合管线布置,可释放300mm左右的空间,局部可做到3100-3200。

高低吊顶示意图
核心筒与分区设计
标准层和体量设计之后,我们进入下一个同样是重点的内容:核心筒与分区设计。核心筒内部有各种电梯、管井和公共卫生间,为此我们首先需要明确分区。整个超高层的垂直分区是怎么样的?

先定好竖向分区
超高层建筑有几大功能板块:酒店、公寓、办公。一般楼层越高价值越高,高区多为酒店、高级会所等持有物业。中间层和低层都没有本质的区别,低区用作办公和娱乐餐饮。
当我们确定了办公、公寓、酒店等功能的总面积、标准层面积、层数之后,就可以划分避难层了。参考规范得知避难层划分区间宜在10-15层,这个划分也属于比较经济的做法,假设2000的标准层面积,最后一个分区在两万至三万的面积,刚好可以设置4-5台的电梯组。(不是强硬规定,可以按照自身设计适量做高)
避难层上下可设置电梯、设备机房,所以避难层一般结合功能分区设置,尤其在低区5层顶先分一道,使娱乐部分大机房可以放在其中。最后确定各分区电梯数量。
确定竖向分区时,我们建议借助excel表格做一个电梯设计分析表(如下图),清楚地划分每一个电梯到达哪一个分区或分区的层数,最后当你的分区与面积确定后,所有的电梯也随之成型。

统计各分区电梯数量
在教大家统计电梯数量之前,还要普及不同的电梯的基本概念。

穿梭梯用作从大堂抵达另一个大堂的快速电梯,中间不设停。乘坐穿梭梯到达电梯转换层后,再通过普通客梯去到各分区各层。服务梯则指货梯与消防梯。而专用梯通常提供给上层酒店设有行政套房或行政走廊的地方,而VIP电梯的设置一般设在中部(如图),同样不设停,直达目的地。

那么电梯数量是如何确定的?首先是根据功能分区配置电梯,在这里我们总结了一下行业内配置电梯的一些经验供大家参考。
办公:
办公区的电梯配置有不同的方法,可以按照人数、人均所占面积和分区面积配置。有些人会按照300人一台,15方/人的办公标准,但是这个标准可能显得不够专业。我们常用的方法还是按照面积5000方一台来估算或每5层一部电梯。我们还可以根据分区面积配置的电梯数量来区分写字楼的等级,前面的章节也有提及。
一般写字楼:5000㎡/1吨客梯
高级写字楼:4000㎡/1吨客梯
超级写字楼:3000㎡/1吨客梯。
2部消防电梯兼货梯
实际上,我们在做方案时可先考虑5000㎡一台1.2吨的15人梯,井道尺寸取2.6mx2.6m。且货梯与客梯的比例大约1:4的关系,即4部客梯配置1部货梯,一般用2吨,2.9mx2.7m的电梯尺寸。
公寓:
普通:10000㎡/1吨
高级:8000㎡/1吨
豪华:6000㎡/1吨
酒店:
100间房一部电梯
200间房一部服务梯
综上所述分区以50M高度左右一区为宜,因为50M的高度对应电梯大约10-12站,以此来划分避难层。以1000-1500㎡一层标准层来算,大约有12000-18000㎡,正好是2-3台一组电梯。即使达到20000平米左右,也不过4台,又因结合避难层,容易安排中间的电梯机房,属于比较理想规整的电梯配置。
电梯速度与等候时间
电梯速度与等候时间实际上有一个公式计算所得,至于怎么计算我们就不详细说明了。通常由电梯供应商配合设计,结合供应商的建议在方案阶段考虑对电梯速度选型。而建筑师在这一个环节需要参与的就是复核是否60秒能到达所有层,满足高规就OK。
目前最快的电梯去到12m/秒,我们建筑师可以这样估算:我们在节省造价的前提下,第一个50M分区大多采用最慢的电梯,也就是常规速度1.75M/秒。每隔50M升一级,每升一级可加1M速度,即50-100M高用2.5M/秒,100-150M高用3.5M/秒,150-200M高用4.5M/秒,以此类推。

借用上图插入一个关于避难层的不成文的技巧,通常我们会在裙楼(配套、娱乐功能)以上划分第一道避难层,不管此时是否到达50M。在裙楼的顶部我们可能需要结构转换,或是放置设备(大风机房、水箱),然后就可以利用这样一个避难层空间,去用作不管是空中花园,还是设备层。
层数继续往上走,我们都知道越高的分区,价值越高。我们尽量少在高区划分避难层,哪怕分区已经超过50M,尽量保持上部的连续性。
接下来我们以下图为例开始核算,办公分区总面积占78450㎡,我们估算成八万的话,按照5000㎡一部客梯的基本要求,一共需要16部电梯。又因为货梯与客梯比为1:4,所以货梯数量有4部(两部专用货梯加上两部消防电梯),整体核算过程到此。然而16部的普通客梯还可以继续划分,因办公面积在整个高层建筑内占比最大,在办公区内还可以分出低区与高区,所以在这张图里我们看到16部客梯又被分作高1区、高2区和低1区、低2区。
计算办公电梯数量时,注意剔除裙房商业的面积,商业按照3000方一部1.15吨计算。

有关电梯的知识,我们在这里给大家介绍一种双层轿厢式电梯,这种电梯拥有极高的运作效率,可以将原本的承载量提升两倍,最大的优点就是应用在人员密集的上下班高峰时期。采用这种电梯时,可以考虑将底部大堂分为两层,将去往单数层与双数层的人们分流。但是如果建筑的规模并不大,人流比较少,从效率与造价角度不建议采用双层轿厢式电梯。

确定各分区电梯平面位置——核心筒收进
对于超高层的核心筒,几乎不可能是从上到下一成不变的,为了适应经济性的原则,核心筒在竖向会有变化即核心筒收进。
核心筒的收进是随着电梯分区的变化而变化。基于电梯分区的缘故,超高层建筑的电梯井道越往上就越少,核心筒截面自然产生变化。另外我们也提过核心筒受外形影响较大,所以随着竖向空间形态的变化而变化。电梯核心筒还会因结构的变化而变化,核心筒因被切割而整体变小,这些变小的空间一般用作设备房或卫生间。
核心筒收进的形式有多种:
1.单边收进
单边收进一般出现在形体斜向的建筑中。

2.双边收进

3.三边收进

4.四边收进

5.对角收进

收进形式都是出于形体的变化。先根据体型、垂直功能分区、使用要求等因素安排好收分形式,再划分高低区电梯组位置。
这时可能你会问,如果遇到四四方方,形体不变的方型塔楼,是不是就不需要收进?答案是依然需要进行核心筒收进,原因是越往高处核心筒已经不需要像在低区时一样大,整体应是一个均质对称的收进,要么是双边收进,要么是四边收进。

听到这里可能你依然对核心筒的设计充满了疑惑,到底核心筒的收进是在什么阶段开始进行呢?首先回答核心筒的收进是我们在形体推敲和出方案概念时进行的,但是要搞清楚思路的话我们需要对整个核心筒的设计顺序重新梳理一遍。
核心筒设计顺序:组织设计——明确出入口——核心筒大致成型——垂直分区——核算电梯数量——安排电梯位置——外形设计——核心筒收进

用一张图来说明,当我们完成规划的组织设计后,明确三边的出入口,放置一个T字型的核心筒,然后开始对核心筒进行垂直分区,算出所有电梯的数量(暂时不必区分高区与低区的电梯),安排电梯的位置,达到与规划的首层出入口协调,形成各分区大堂的目的。最后可以开始对形体的设计,这时千万不要去细抠管井与电梯,只有确定了体型,才能确定核心筒如何收进。
还要注意的一点是因为办公一般在低区,所以抵达办公区的电梯应当设置在首层的外围。而把酒店、公寓的电梯,即刚才提过的穿梭梯、VIP电梯,此类电梯放置在首层的中部。这样做还有利于核心筒往高处发展的收进变化。其实这个梳理的过程正是个人认为核心筒设计的难处。
那么在核心筒与分区设计的这一章节里,我们已经啃掉了艰难的大头部分,剩下的我们再补充一下有关核心筒形式、设备管井、卫生间以及电梯厅的知识,整个核心筒的设计就完成了。
核心筒形式
核心筒的形式有交错式、尽端式、一字贯通式和十字贯通式(如下图),常用的是十字贯通式,即十字与T字型核心筒,两个或三个方向可以疏散人流。一字贯通式在空间上感受不是最理想的形式,但是对于早高峰的人流疏散十分有利。交错式与尽端式则按照实际情况选择,不太常用。

设备、管井
设备机房平面位置的确定的原则主要是两点:
1.靠近负荷中心,均衡布置,以缩短空调管的长度,尽量避免空调管对楼层净高影响。
2.尽量靠外墙布置,以便直接引入新风,省去新风竖井。
不过原则二对于一般的写字楼很难实现,毕竟设备用房不可能占用我们外围的办公面积,要知道机房大约是本层面积的1.5%,即1000㎡的话约15㎡左右,1500㎡的话约20㎡左右,风道一般1.5㎡左右。那么原则二我们建议是应用在形体上出现缺角,利用缺角空间营造出休息平台的建筑中,这时我们的设备就尽量放在外面,从而给核心筒减负。

管井平面布置原则,应靠核心筒外围布置。具体到每个管井,则略有不同:
1.水管井应靠近用水单元分散布置,如卫生间、茶水间以及空调机房等;
2.电气间不管是否进人检修,紧邻公共走道布置比较适宜,保证检修时不影响办公空间的使用;强电间与弱电间最好分开设置,避免彼此干扰电磁波。电气间与水管井也需要分开。
3.空调设备(包括设备间、风机房、空调竖井),一般布在电梯的两端或是楼梯的一侧,大原则是需要沿核心筒外围布置,因其水平支管尺寸较大,为避免其拐弯,穿越剪力墙以及尽少影响吊顶高度,在剪力墙外侧布置最为理想。
最后是设备管井的指标,强电与弱电大约各6㎡。水井大概3㎡,加压、排风0.6㎡,一般控制宽度最小0.4m。

另外不得不提醒一点的是许多人在方案设计时,往往因为没有养成习惯而忽略掉设备、管井的问题。假设我们在设计楼梯时,其实就应当将加压井、风井一同放置在楼梯的一侧。在画电梯时,留出两端井道的位置,尽量不要把电梯贴在剪力墙旁边,否则后期就会发现找不到位置放设备管井了。养成一个好习惯:画每一种功能用房时应当预留设备管井的位置。

卫生间
卫手间位置通常利用分区电梯组收分后多出的空间布置,不同分区卫生间错位。用图说话,低区时,卫生间就放置在原本高区的电梯空间;高区时,卫生间就放置在原本低区的电梯空间。

一般情况每400㎡一个男厕位、一个便斗和1个女厕位,洗手盆可根据厕位4:1或3:1来定,高级一点的写字楼男女最好各不少于2个洗手盆,最高档的卫生间,应当配置更多的洗手盆或一厕一盆。注意还有残疾厕位及清洁间不要漏掉。最高级的写字楼还有要求一个咖啡时间的备餐间,12㎡左右,也应注意。

某超甲级写字楼卫生间的布局
在上图的卫生间中正是采取了一厕一盆,洗手盆所占面积几乎和厕位面积成1:1,这是因为等级高的写字楼,会给办公人员留出梳妆、整理衣物的位置。
卫生间设计还要注意遮挡,是体现设计师基本素养的一个要点,避免直冲看到洗手盆和厕位,可以选择设计迂回一点的路线,甚至设计进入卫生间之前的前室。这样还有一个好处是有足够的空间给我们的管井。
总结来说写字楼的洗手间,根据人数来定,按楼层面积算人数,厕位的数量就可以计算出来。
电梯厅
我们根据品质来选择电梯厅的尺寸,比如说公寓与办公通常没有太高的品质要求,所以电梯厅选择3.1m——3.2m即可。之前提过3.3m是一个档次高低的分水岭,所以酒店的电梯厅一般都会做到3.4m的面宽。还要记得不要那么小气将电梯厅做到3m以下,现在几乎没有人会做那么小的电梯厅。甲级写字楼电梯厅不同功能要求,品质不同,尺寸如下:

不同尺寸电梯厅的实图
注意在设计电梯时,一组电梯最好不超过6台,4台以下更好。建议分组设计,而不是采取一字排开的电梯布局,不然一般在超过3、4台电梯后会出现剪力墙,剪力墙再加上外包的石材,厚度非常大,过厚的墙体有可能会导致人们因视线遮挡而错过电梯,尤其是品质高的静音电梯。还有因为超高层的电梯数量多,所以要注意一个方向来人很可能对大堂压力过大,所以应该设置两个面的入口。
上面提到的要点最好在前期规划就落实到位,虽然可能比较繁琐,但是细节决定成败啊各位。那么我们再为大家带来最后一个章节——功能用房。
功能用房
讲到功能用房,我们还剩下办公区域与大堂的要点再给大家普及一下。
办公区域
不同级别的办公楼人均面积也不同,随着办公级别的提高,人均面积越来越大。不过这个人均面积的参考值主要用作给卫生间统计厕位数量,以及统计电梯数量。
办公平面的平均进深(核心筒到外墙的距离)在11-13米,最好不要超过18米,原因是这个距离的通风与采光条件不太理想,也不符合正常柱跨。15米以内的办公平面进深可以排下五张1.6米的标准办公桌,再加上两米的内部走道,两米的外部走道。
这里还涉及一个使用上的规范,最远的办公用房到卫生间距离不超过50米。

大堂
下图是一个双层大堂的布局,我们上面提过的双层轿厢电梯正是搭配这种大堂,特点就是人流量大。

高峰的时候大堂人流会比有楼上的人流高出10倍甚至20倍以上,而超高层有时高达60-80倍的人流,这时我们就可以设计双大堂,即首层和二层都设大堂,以解决疏散进出的拥挤,在首层大堂单设自动扶梯直接上二层大堂。
门厅一般情况是在1/100-1/50的大楼建筑面积之间。一般的建筑取下限,如20000平米,可取200平米的大堂。高级的写字楼可以取上限或取其中间值,如30000平米的大楼可取300-600平米之间。门厅不宜过大,不然就聚拢不了人气。

文章来源:来撩设计(ID:lailiaosheji),本文作者为羿学堂潘工,文章已获得授权,对原作者表示感谢。