在我们农村,自建房不设置一个大落地窗都不好意思叫“别墅”。落地窗有了,室内当然得搭配一个复式结构的客厅,内外兼修“有里又有面”!今天小编拿出珍藏已久的2款高颜值的农村三层别墅,内含“复式大堂屋”,时尚简约造价低,可以收藏起来慢慢看。
户型一
别墅外观沉稳大气,室内套间+娱乐室,造价预算35万。

如果宅基地的四周没有过多的遮挡物,可以参考这款设计。四面多处开窗,增加室内采光面。一层墙面和窗框套全部 采用咖色调的真石漆,突显层次感的同时还耐脏。
开 间:10.76m
进 深:13.68m
占地面积:147.19㎡
结构类型:砖混结构
参考造价:35 - 38万

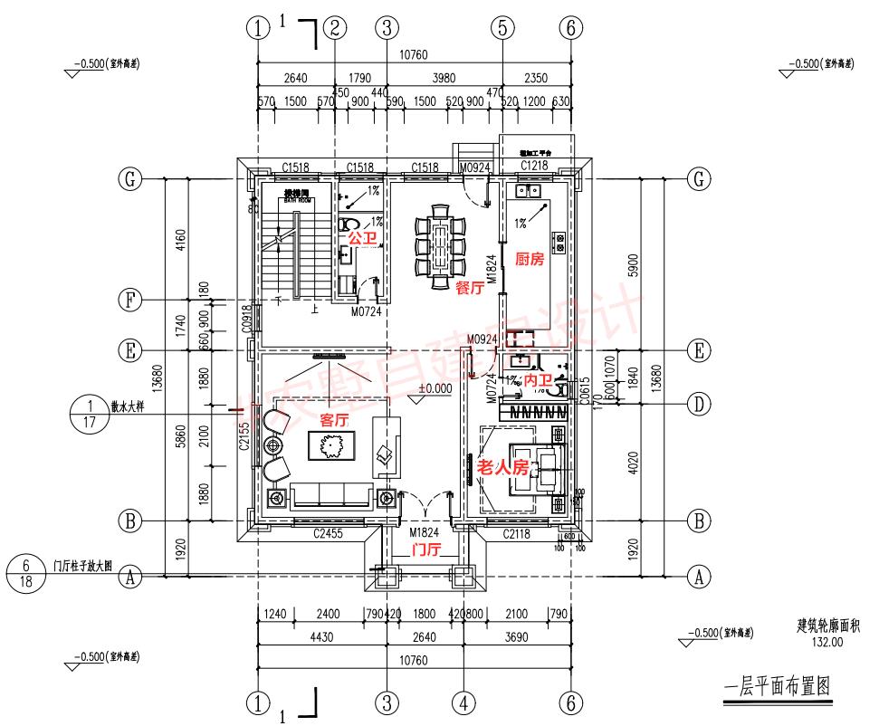
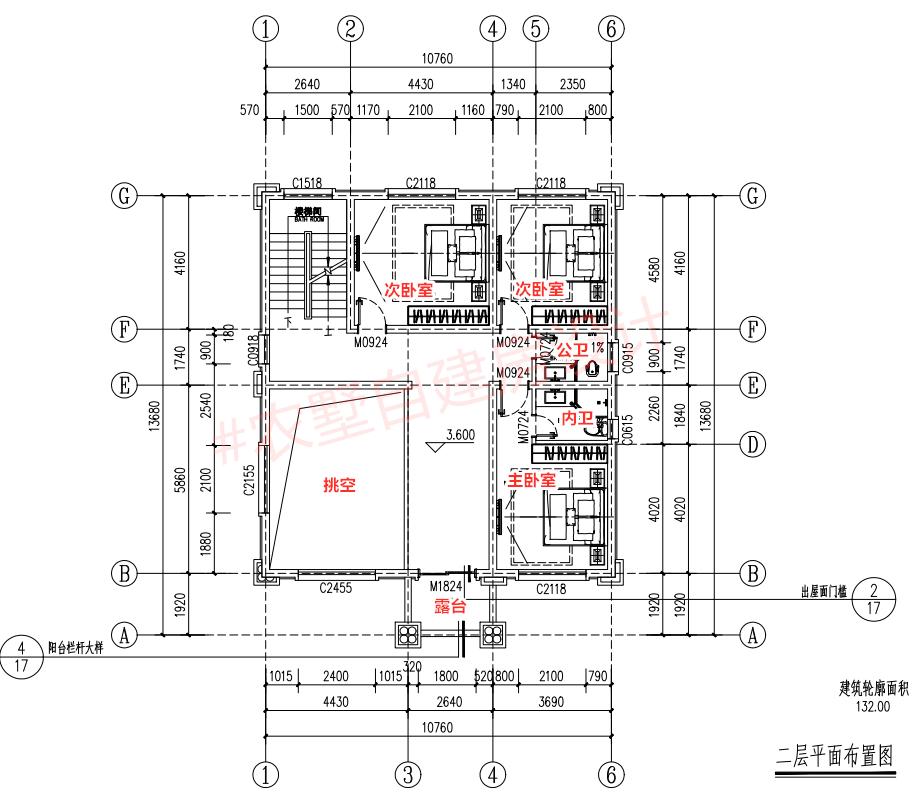
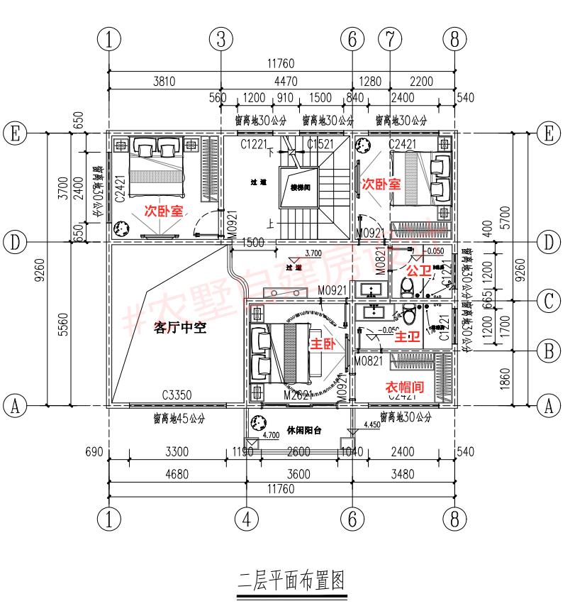
别墅室内分别有老人房、主卧室、次卧室、客厅、餐厅、厨房、卫生间、娱乐室、衣帽间、露台等功能。总共5室2厅6卫
一层平面图:

二层平面图:

三层平面图:

户型二
面积108.8平方米的小户型别墅,室内带车库,造价预算26万。

这款别墅大部分农村宅基地都可以驾驭,外观简单大方,墙面主要以米白色真石漆为主,建筑底部铺贴瓷砖,优雅别致。
开 间:11.76m
进 深:9.26m
占地面积:108.89㎡
结构类型:砖混结构
参考造价:25 - 30万

家里有爱车,怎能少了车库?面积有限,我们在一层室内没有卧室,而是空出了位置做车库。三层室内分别有复式大堂屋、厨房、餐厅、储物间、车库、主卧室、次卧室、衣帽间、 卫生间、露台等功能。共6室2厅5卫
一层:

二层:

三层:

平面布局图请大家耐心观看,这就是最真实的施工平面图纸,所以空间尺寸都标注得很清楚。现在回农村建房的人越来越多,施工队也有好有坏,自己能看懂图纸能避免不少“施工陷阱”。这样不管您是单独订制,还是选择成品图都能心中有数了。
今天就分享到这,更多自建房设计,欢迎关注!