西安装修设计师-主案设计师何海超-东方米兰国际城装修效果图-西安满堂喜装饰集团
预约热线-182-9189-4374 简单的特色、低调的奢华、优雅的浪漫,憧憬美好的未来。

设计师何海超
个人简介
姓名:何海超
毕业院校:天津美术学院
从业年限:10年
工作职位:主案设计师
工作职称:高级室内设计师
服务评价:设计如同动听的音乐,有着韵味、调子、色音和感情。传递着美好与未来。
设计理念:简单的特色、低调的奢华、优雅的浪漫,憧憬美好的未来。
擅长风格:新中式,美式,简约轻奢,北欧等
设计案例:曲江湖城大境、曲江大丰真境、曲江龍邸、曲江海德堡、东方米兰国际城、曲江观山悦等。
案例说明
在这套房子里,主人是一对年轻的小夫妻,他们追求的是简洁轻松的空间,整体以简约自然与现代舒适的家居氛围,通过细节里惬意温情的布置,把这套房子营造出充满舒适轻松的温情浪漫氛围。

▲玄关的鞋柜,中间留空了一个木格,作为小绿植的摆放,回家后手上的小物件也有个随手放置的地方。

▲洗手盆外置到走廊旁,洗手盆上方是以粉色背景+圆形挂镜,洗手盆下的收纳篮与抽屉,整体空间利用时尚实用

▲书房空间靠窗布置了一个L形的双人书桌,为主人提供了宽敞轻松的互动式居家工作或游戏房。丰富的书架与收

▲客厅旁边的阳台也打通纳入进来,结合定制柜与一个音响布置,还有独特的地毯,让空间简洁实用而自然。

▲六边砖的淋浴房,让卫生间氛围也是文艺轻松而自然。

▲走廊的墙体与沙发墙一样,灰紫色的墙脚+白色墙身,走廊尽头墙面挂一幅方形小画与一盏壁灯,整体空间简洁

▲紫色框住的全身镜,反射出了鞋柜与换鞋凳的布置,出门前的梳妆整理、换鞋,都非常的方便舒适。

▲餐厅的实木餐桌在黑色的台面下,搭配着几张不同造型的餐椅,布置上精致的花瓶与餐具,营造出温馨惬意的用

▲厨房白色的格纹小砖,搭配简约白色的橱柜,独特的定制操作台上做了一个小高台,小电器放在下方,上方台面

▲黑白配的托盘茶几,布置在这个自然舒适的客厅里,给人以时尚端庄的气质。

▲现代简洁的客厅,整体简单大方的空间,结合舒适轻松的家具布置,营造出一种自然惬意的氛围感。

▲简约舒适的卧室,白色的铁艺床+灰色简约的床单窗帘,使得空间充满了惬意自然的氛围感。

▲卧室以静雅的蓝色为空间基调,为主人营造出一种轻松舒适的安静睡眠空间。主卫的洗手台以开放式的格局,为

▲主卫简洁干净的空间,搭配铜色质感的卫浴配件,也装扮出档次精致的华丽感。

▲阳台洗衣机旁边还有一个移动式的收纳篮,提供了实用方便的洗衣体验。

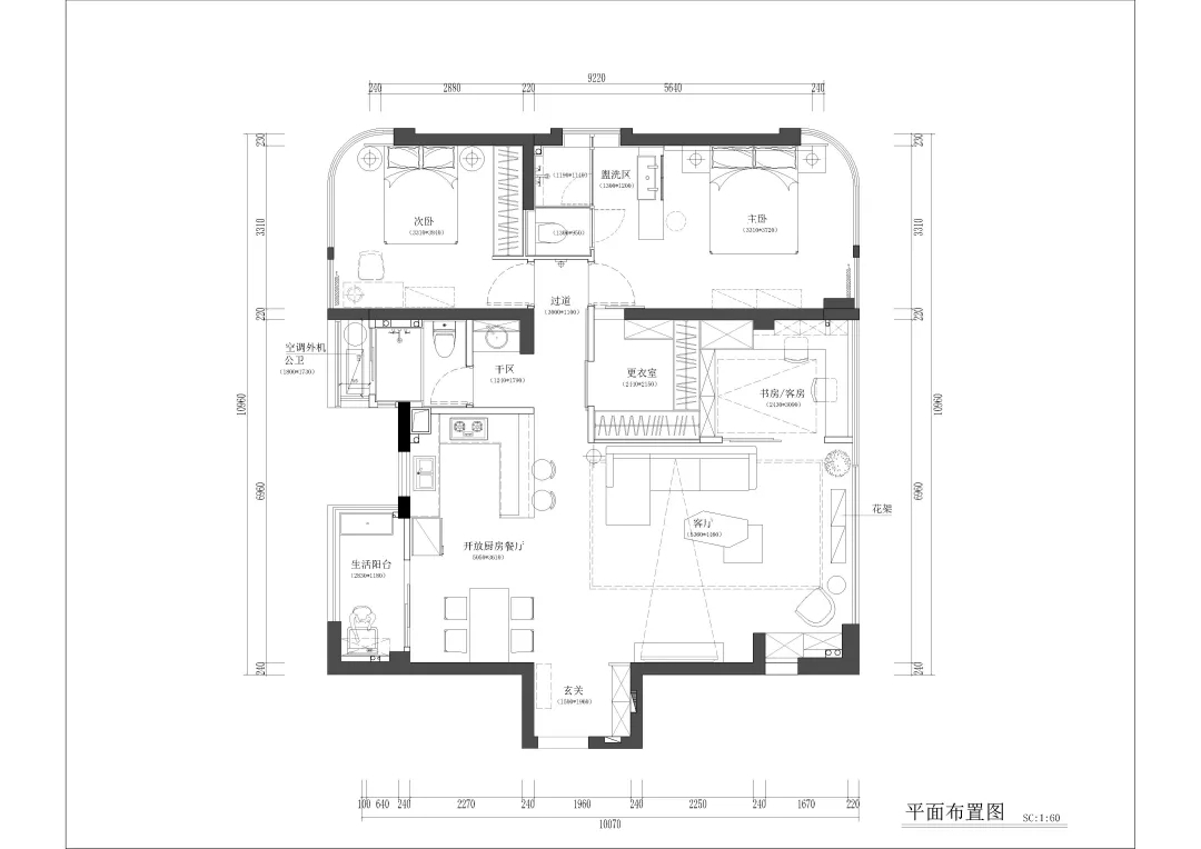
平面户型图