让人羡慕嫉妒恨的生活方式
从一套属于自己的大平层开始
高尔夫、潜水、红酒、雪茄、旅游、美食,是不是听上去都觉得很爽,没错,这些都是这套房子主人的日常生活方式,而且最关键的是他还是单身!单身!单身!重要的事情讲三遍。不过你可以不用关心单身的问题了,因为他亲口说过“已经有了小公主女儿的他,会做一个让女人永远得不到的男人”,所以还是乖乖来看看他的房子吧。



入户
进入房间,开门大片品质既视感,两边白色烤漆板把空间视觉拉长,端景玄关优雅的香槟色让过道雅静些许。




餐厅、厨房


大面积的香槟色烤漆板让餐厅氛围高雅而不拘谨,现代柔美的黑色餐桌配合极简的圆形吊顶造型,眺望混搭在极简餐柜上的一棵金松,细细品味略有一番中国情结所在,这也正与角落的一柜茶香映衬。


客厅
电视墙采用天然岩板不规则的拼接手法上墙,配合实木地板,首先给人传达的感觉就是自然放松,同样灰色的主色调结合黑白的穿插让空间层次感分明。与厨房分隔的吧台让餐厅、厨房和客厅互动,一抹法拉利红的跑车款油烟机点燃整个空间,与客厅的红色抱枕和干枝呼应。



高层大平层独有的落地窗让客厅空间采光丰富,大理石、天然岩板和实木地板的强烈质感对比在阳光下发挥到了极致。



主卧
主卧是整个空间风景最好的地方,所以在布局上,设计将床的朝向转向了窗外,把居高临下的美景全部收集在了床上,清晨日暮升起,在床上就可以拉开窗帘享受一天的第一缕阳光,夜晚同样可以在床上享受远处的星光点点。


主卧进入房间处为未来有可能的女主人预留了一处梳妆台,灰色的墙面色调和灰色的床背皮革以及灰色的地毯统一和谐,简约舒适。在床尾两面落地窗边的一角放置了一张非常舒适的沙发躺椅,在晨起和日落的时候,闲坐一偶,享受这充满惬意的生活。




书房

衣帽间
穿过书房是衣帽间,全体黑色玻璃柜门让衣帽间酷劲十足,灯光设计在衣柜内,由开门控制,品质感十足。




主卫
主卫在主卧空间的最深处,整体采用白色大理石搭配黑灰线条呈现,简约的洗手台造型,干净立体的镜柜处理,合理的干湿功能分区,人性化的感应灯光设计,这就是一个现代化高品质住宅卫生间该有的样子。



女儿房
女儿已经步入青年,在色调上选择了她喜欢的蓝色系,同样靠窗放置了书桌,床也面朝窗户,灰蓝色让整个房间宁静、高雅,这里希望给女儿一个舒适温馨的感觉,让不经常在家生活的女儿每每回来感受到爸爸对她的那份爱。


老人房
这个房间基本上是为了逢年过节生活在异地的父母预留的,结合他们的起居习惯,设计了两张单人床,整体用色选用了中性的藕色搭配咖啡色系的床背,让房间大地感十足,踏实温暖,给老年人一个安静舒适的失眠环境。


次卫




阳台

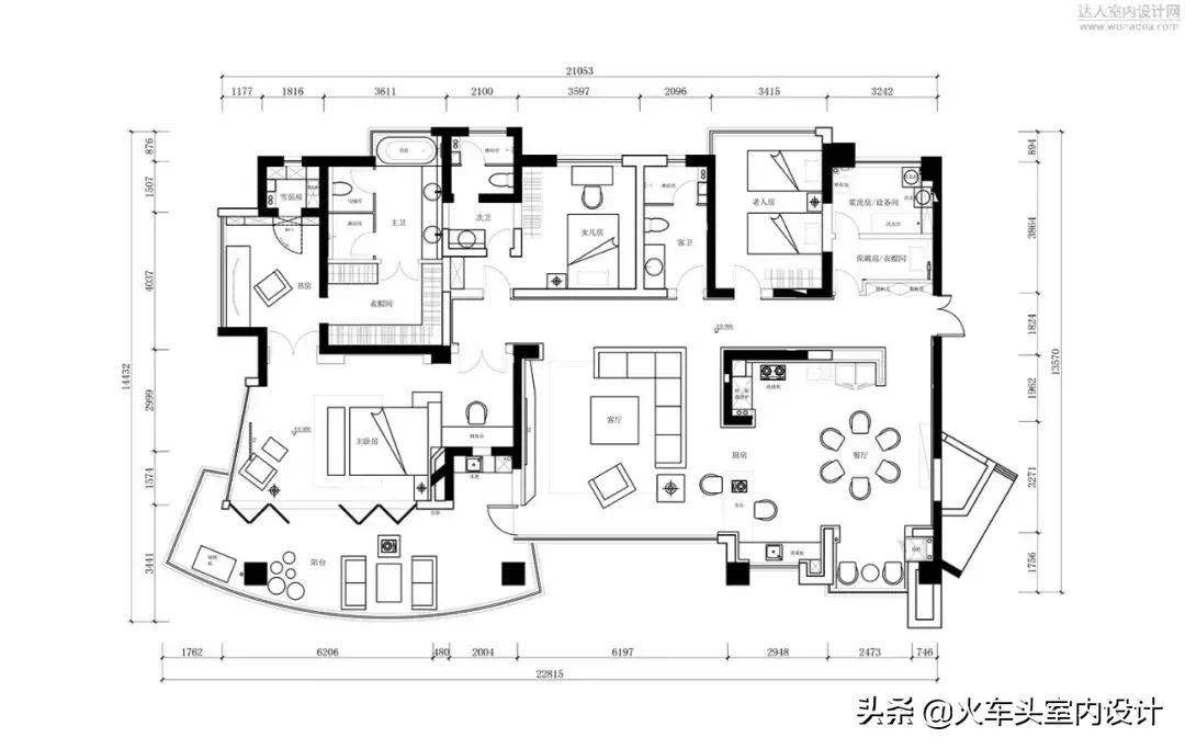
平面图▲
项目名称:麓山国际·茵特拉肯平层
地址:成都
面积:330m²
风格:轻奢
主案设计:张凯锋
项目设计:孙琦、李芙蓉
软装设计:张凯锋
摄影师:邓俊涛