城市的快节奏,催生量化生产的精装房,丑的千篇一律不说,还无法应对每个家庭不同的居住需求,而且自带的装修并不能有效保证质量和环保……

尤其是对于追求品质生活的朋友来说,精装房或许可以满足拿房即拎包入住,但绝对无法让家实现真正专属的“量身定制”!买了精装房的朋友们,为了让你们的家居生活更舒适养眼,今天我们来聊一聊精装房改造的那些事:

精装房改造,归根结底主要有三种方式:全拆、局部拆改、不拆不改。
一、全拆:至毛坯状态
无法接受原始装修得丑,也无法适应原始空间的布局,并且经济条件允许,可以考虑将精装房全拆至毛坯状态重新装修。

拆除并更换:墙砖地砖、地板、室内门+门套、玻璃门、踢脚线、吊顶、柜体、墙纸墙布、背景墙、卫浴洁具……
可拆可不拆:入户门、窗户

拆除至毛坯状态后重新装修,还可以根据实际需求进行空间布局的规划重组:


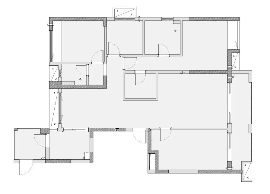
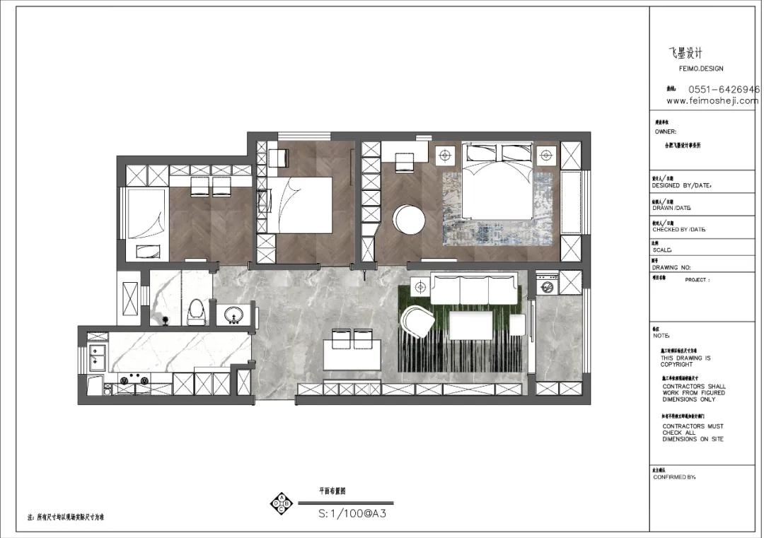
如上这个家,原始户型中的衣帽间正对着入户门,为了优化整体空间选择将这个突兀的衣帽间拆除。
全部拆除的精装房改造咱们直接看案例:
01
《觅春》

面积大小:88㎡三室两厅
设计风格:现代简约风
半包价格:11W
项目地址:合肥-保利五月花
设计改造▽

① 原始厨房面积太小,封闭式的布局太过拥挤,于是拆除墙体,做了开放式的设计。
② 拆除厨房与卫生间之间的墙体,新建窄墙,扩大厨房面积。
③ 将北次卧与主卧之间墙体拆除,设计主卧+衣帽间的布局。
前后对比▽
【客餐厅】


【主卧】

02
《追光》

面积大小:148㎡四室两厅
设计风格:现代风
半包价格:21W
项目地址:合肥-融福园
设计改造▽

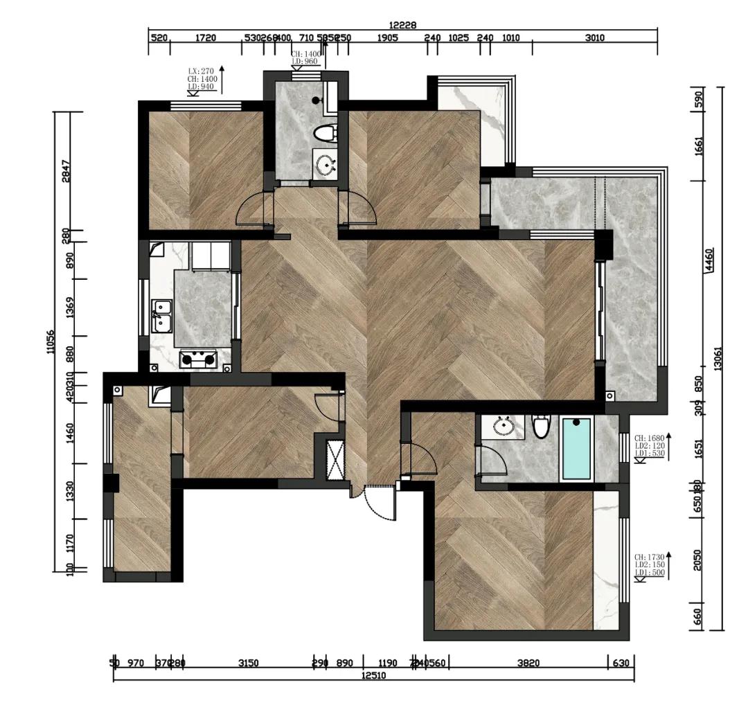
原始户型

设计方案
① 拆除客餐厅中间的衣帽间,悬浮式柜体保证隐私,解决收纳。
③ 客厅与主卧之间设计嵌入式柜体,保证空间的整体性。
④ 南次卧用隐形门解决隐私性问题。
前后对比▽
【客厅】

【餐厅】

【主卧】

03
《期颐》

面积大小:140㎡四室两厅
设计风格:中古北欧风
半包价格:11W
项目地址:合肥-栢悦公馆
设计改造▽

原始户型

设计方案
① 厨房门移位,原始门洞设计嵌入式玄关柜,缓解玄关收纳压力。
② 冰箱移入餐厅,嵌入储藏间的墙体,并在餐厅设计岛台,功能更丰富实用。
③ 储藏间与餐厅之间设计双面柜体,缩小主卧卫生间。
④ 主卫门体嵌入墙体内部,设计隐形门。
前后对比▽
【客厅】

【餐厅】

【主卧】

二、局部拆改:软硬搭配
局部拆改分两种情况:
1、局部格局拆改
当精装房有部分空间不合理时,可布局拆改。
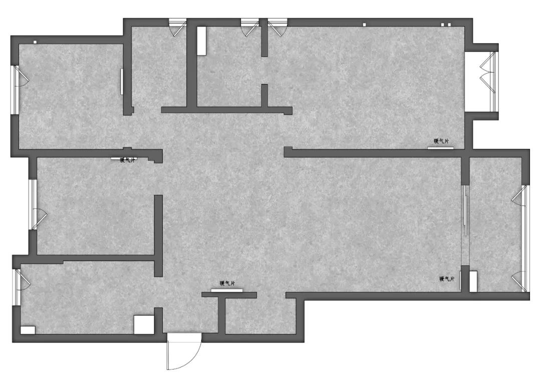
【铂悦庐州府】的这套152㎡的精装房:

原始户型

设计方案
老人房太小,便将阳台之间的玻璃门封上增加背靠背的柜子,增加收纳▽

玄关北侧的小卧室与北阳台打通,做多功能书房▽


2、局部硬装拆改
除了格局的局部改造外,硬装也可布局拆改:
① 改吊顶
原始吊顶改阶梯吊顶▽

② 改墙面
原始电视背景墙拆除换乳胶漆▽

原始卧室大白墙改木饰面▽

③ 改地面
地板换地砖▽

地砖换地板▽

④ 加收纳
原始空荡荡的房间增加全屋收纳▽▽

更多局部改造的精装房案例看这:
01
《秋河日落》

面积大小:96㎡三室两厅
设计风格:现代简约风
半包价格:13W
项目地址:合肥-加侨悦湖公馆
设计改造▽

原始户型

设计方案
① 重新规划吊顶和全屋收纳,墙面乳胶漆改色;
② 保留原始地面与室内门,通过软装搭配优化整体视觉效果。
前后对比▽
【客厅】

【餐厅】

【主卧】

02
《热恋夏威夷》

面积大小:105㎡三室两厅
设计风格:美式混搭风
半包价格:硬装14.7W,软装5.9W
项目地址:合肥-万科森林公园旭庭
设计改造▽

原始户型

设计方案
① 全屋墙顶地拆除,增加吊顶、地砖地板更换、墙面换新、全屋收纳规划。
② 电视背景墙与餐边柜结合并设计卡座,增强收纳能力。
③ 主卫改成开放式衣柜和梳妆台,增加飘窗和收纳。
前后对比▽
【客厅】

【主卧】

【书房】

03
《夏日狂想曲》

面积大小:130㎡三室两厅
设计风格:美式轻奢风
半包价格:硬装9W,软装6W
项目地址:合肥-凯旋门
设计改造▽

原始户型

设计方案
① 除吊顶外,原始墙面、地面全部重改;
② 增加全屋柜体设计,餐厅增加餐边柜与吧台。
前后对比▽
【客厅】

【餐厅】

【主卧】

04
《鎏光》

面积大小:145㎡四室两厅
设计风格:现代轻奢风
半包价格:硬装半包10W,家具软装10W
项目地址:合肥-中国府
设计改造▽

原始户型

设计方案
① 在未动户型结构的前提下进行全屋整体改造。
② 卧室背景墙更改,增加全屋柜体收纳。
前后对比▽
【客厅】

【餐厅】

【主卧】

三、不拆不改:软装搭配
如果能够接受精装房的原始装修,那么也可以只通过软装搭配来实现颜值升级、居住舒适。


来看一套完整案例:
位于【合肥-政务壹号】的《风之回响》,145㎡,空间结构与硬装未有一丝一毫的改动,全靠软装搭配撑起全场:

设计方案▽

原始户型

设计方案实景现场▽
【客厅】

【餐厅】

【主卧】

总的来说,纯粹的软装搭配是最低成本的改造,但是硬装是基础,软装的配合只能尽可能让整体视觉舒适平衡!

最重要的是,仅软装搭配的方式,极度考验审美和选择能力!!!
关于精装房改造的三种方式就介绍到这里,具体选择怎么改,需要结合实际需求、钱包厚度、以及自己的审美品位,如果自己把握不好,欢迎来找飞墨呀~
(ps:部分图片来源于网络,如有侵权,请联系删除!)
飞墨设计|飞墨设计 一种生活方式的选择