本次设计户型:锦华上院二期145平方一楼带庭院 新中式风格。
下面请欣赏效果图

客厅效果图

入门玄关

餐厅效果图

主卧效果图

女孩房效果图

男孩房效果图

主卧卫生间

公卫卫生间

院子方案一

院子方案二效果图

院子实拍图(可往外扩建)

阳台院子实拍图
接下来就是施工图部分
首先分享的是部分SU施工图
视频加载中...
地面排水防潮SU施工图
视频加载中...
墙面造型SU施工图
视频加载中...
吊顶SU施工图
视频加载中...
隐形门SU施工图
视频加载中...
全屋水电SU施工图
由于SU施工图较多,文件较大,只分享部分施工图,
接下来是一些设计手稿

新中式主灯设计手绘图

客厅参考设计图
后来对比之后客户选择了无主灯效果
其次是一些家具手绘设计稿

茶桌设计手绘初稿

修改了各种家具设计稿

选择的女孩床

选择的男孩床

备用的沙发设计图稿

沙发设计图稿

沙发设计图稿

主卧衣柜设计图稿
其次是一些SU的部分施工图

地暖

地暖

地暖

全屋智能家居零线和网线

开关插座

顶部零火线和空调管道

顶部空调线路

继承控电箱

智能中控电路

智能中控墙体造型和中控屏幕

大金中央空调主系统

大金中央空调分布系统

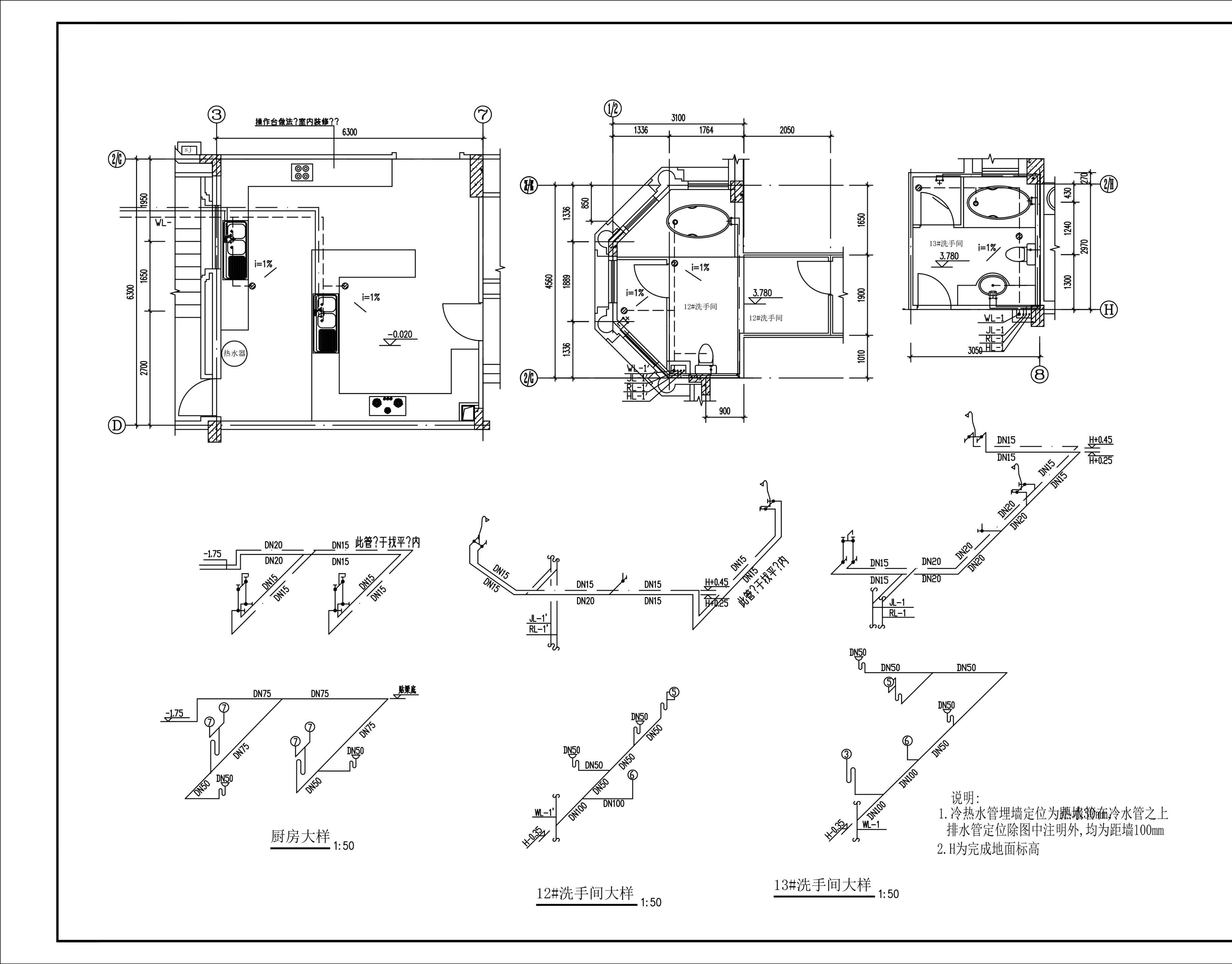
给排水

蹲便给排水

客卫生间给排水
下面就是常规的CAD施工墙体,吊顶,衣柜,定制等节点图啦

热循环系统

院子门 围墙型节点图

目录

施工设计说明1

施工设计说明2

施工设计说明3

施工设计说明4

施工工艺说明

施工标注说明

材料说明表

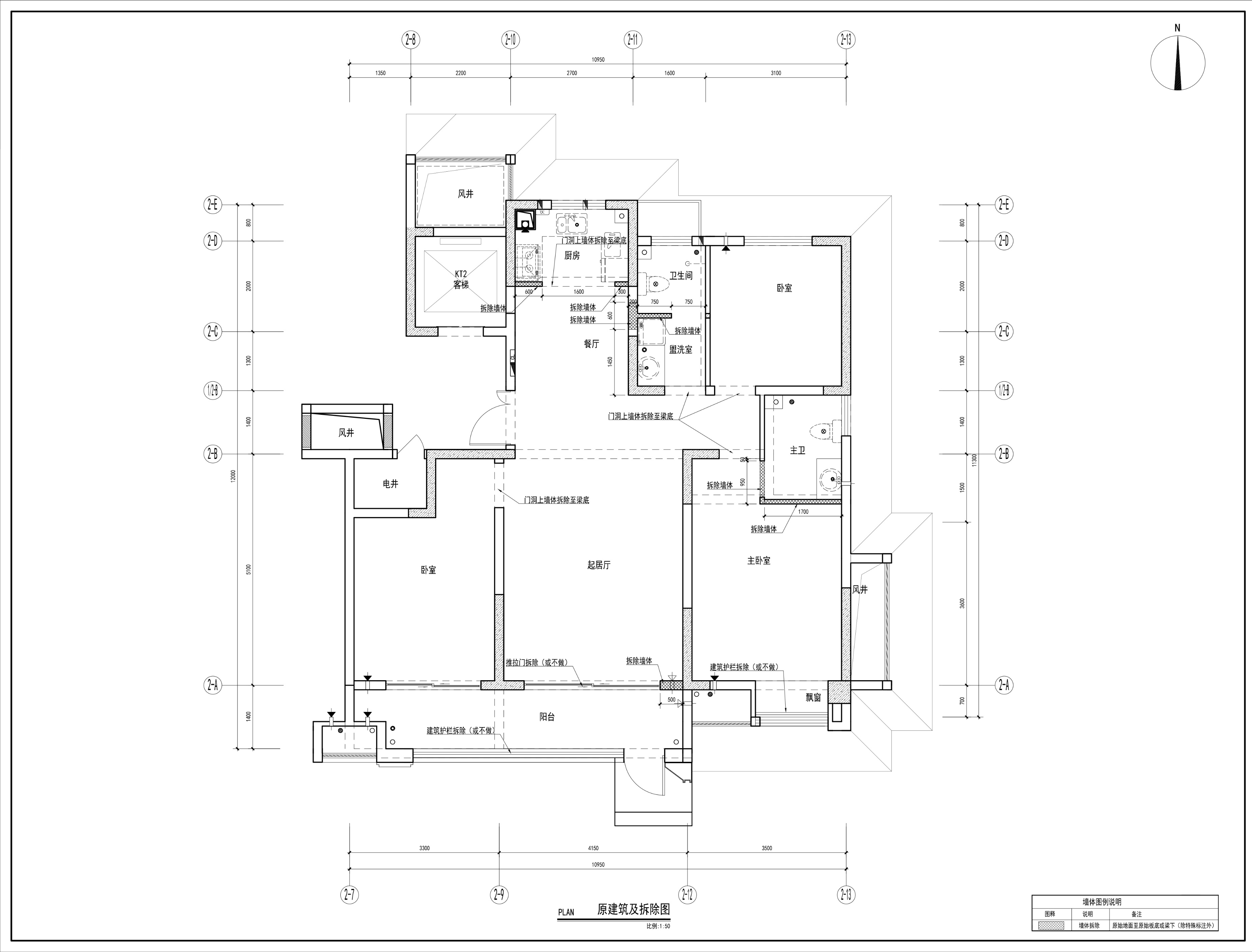
平面布局

墙体拆除

新建墙体

完成新建尺寸图

地砖铺贴图

天花板

灯具定位图

客厅立面图

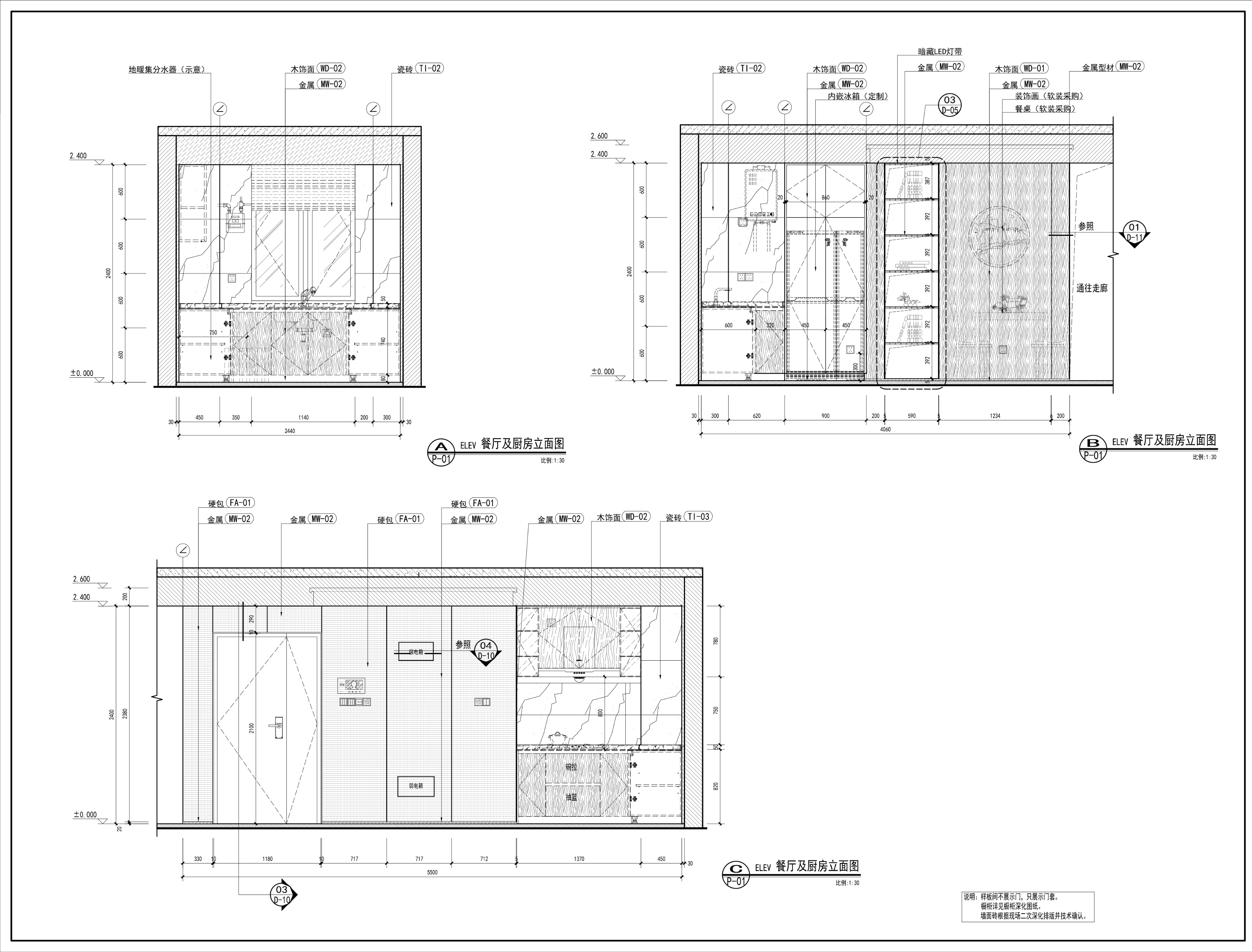
餐厅立面图

走廊立面图

阳台立面图

男孩房立面图

主卧立面图

女孩房立面图

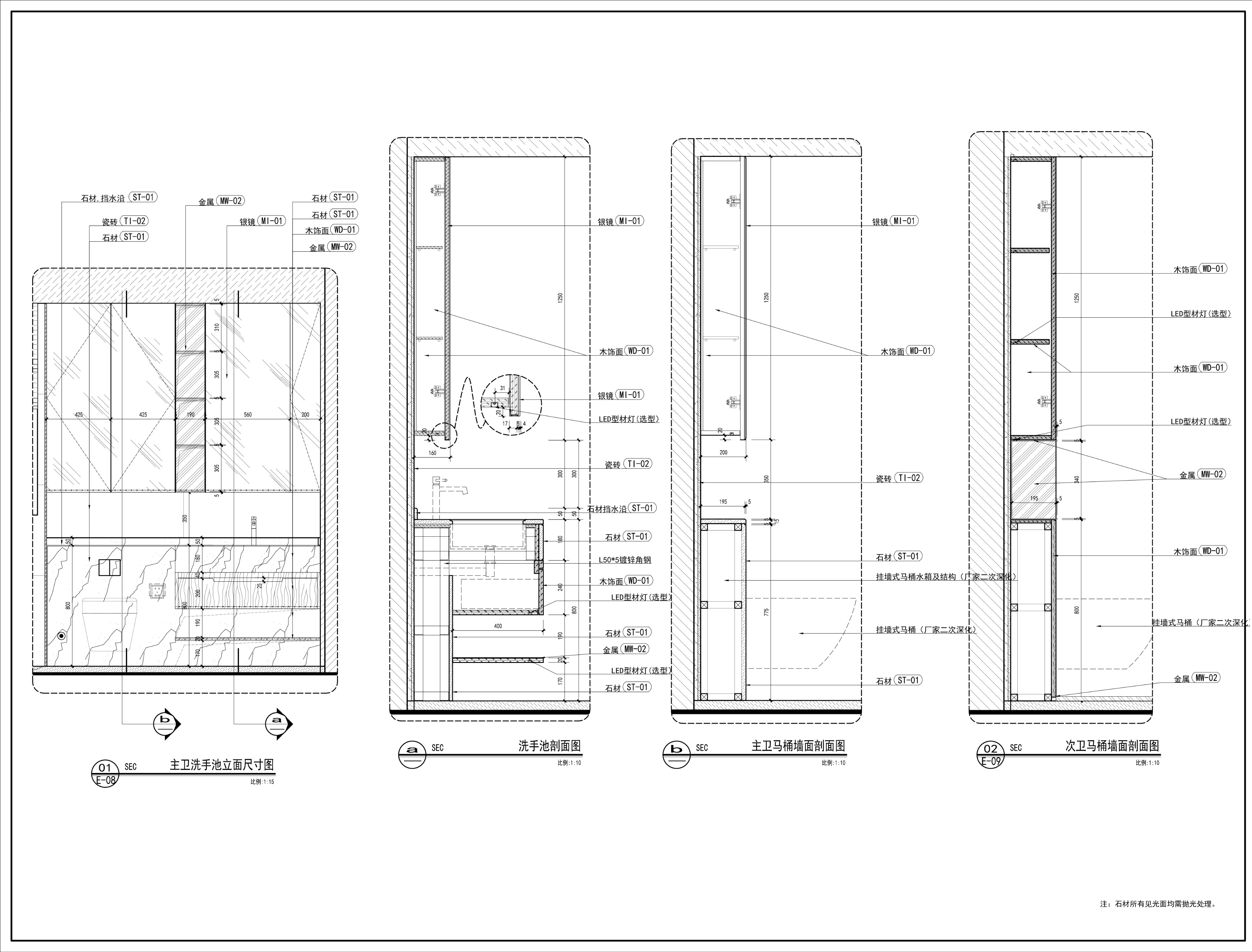
主卫立面图

客卫立面图

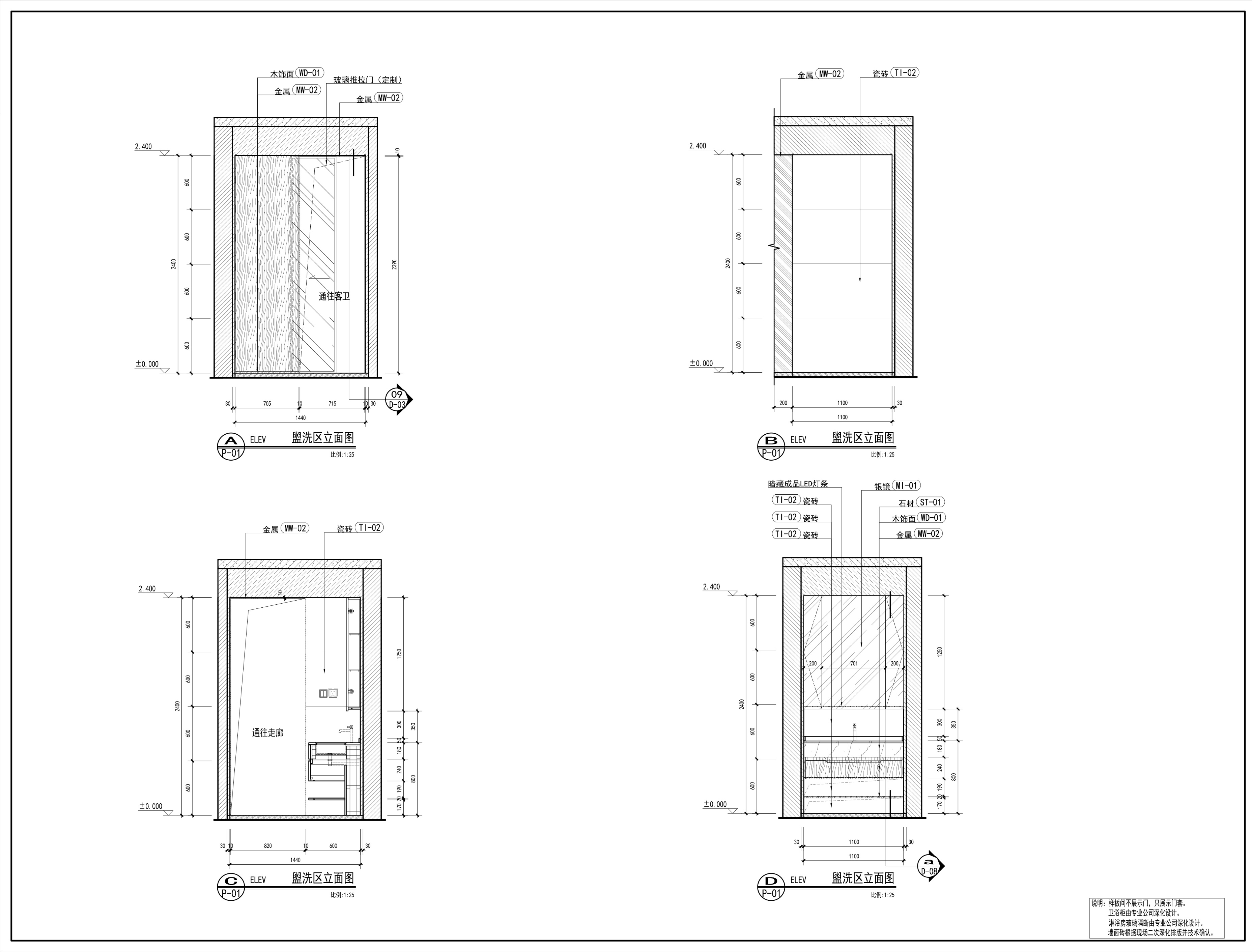
洗衣区立面图

吊顶节点图1

吊顶节点图2

卫生间节点图1

卫生间节点图2

柜子节点图

电视墙节点图1

电视柜节点图1

电视柜节点图2

主卧衣柜节点图

卫生间部分节点图

主卧背景墙节点图

电器设计说明

照明链接说明

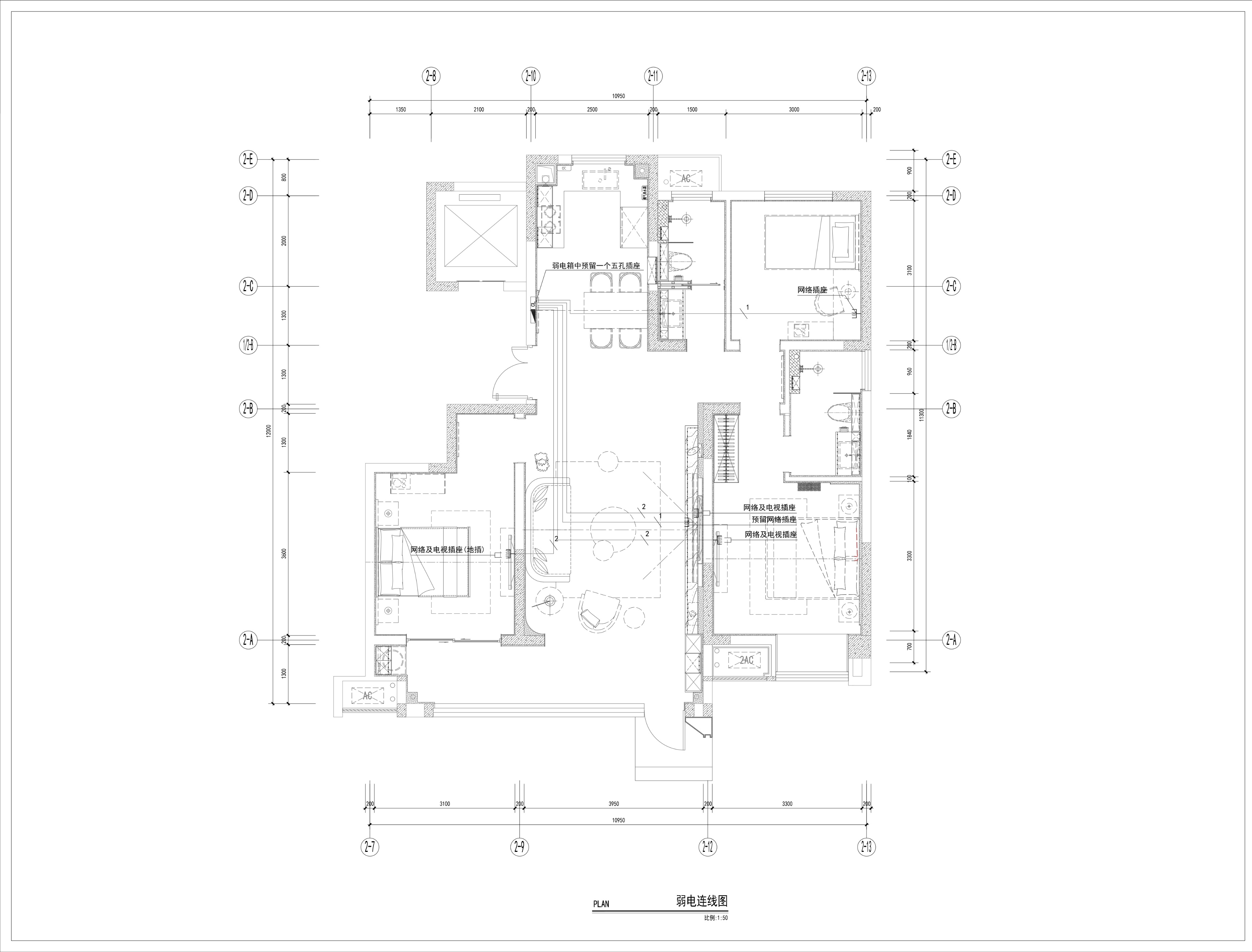
强弱电点位说明

弱点点位说明

继承电箱说明

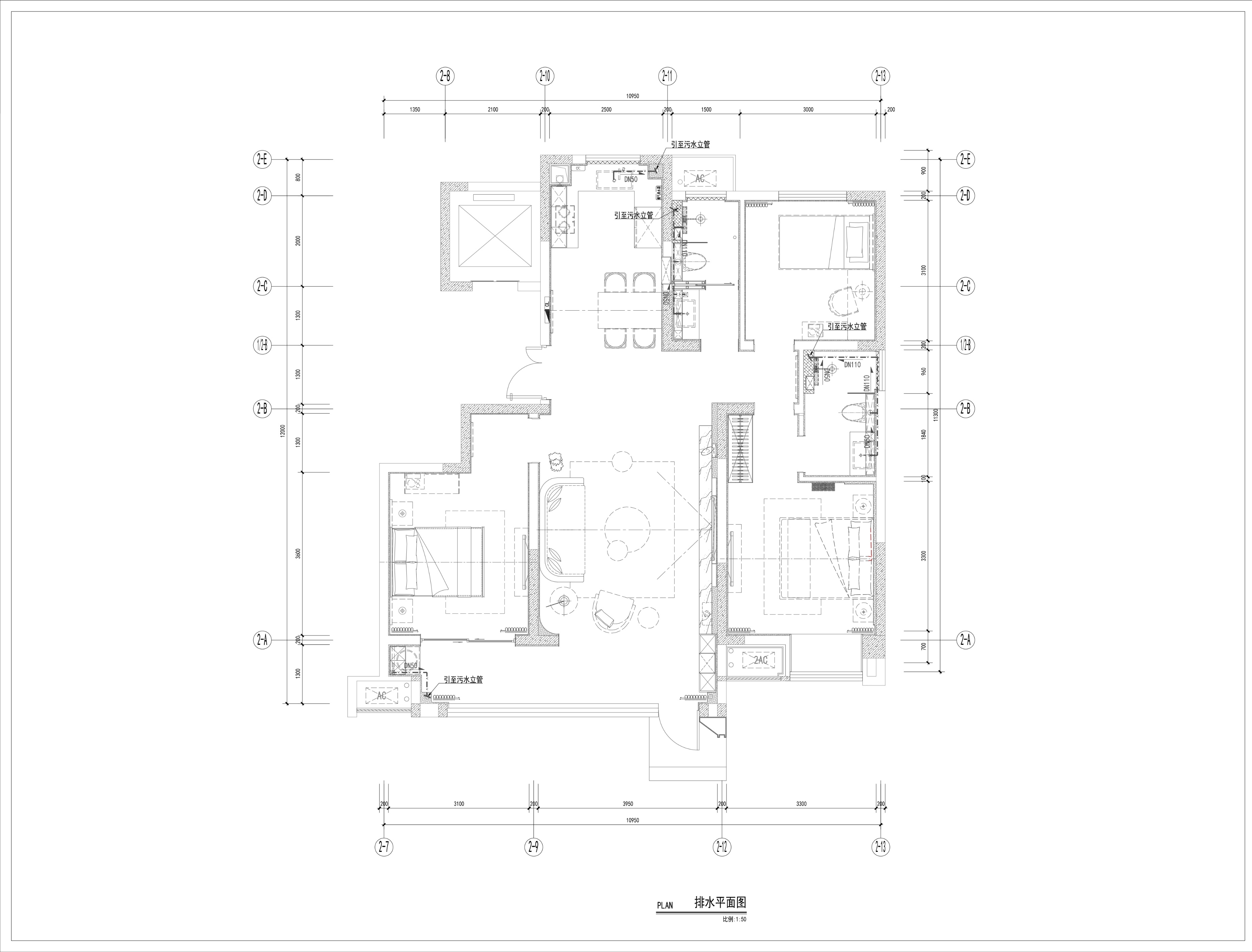
水路设计说明

给水点位图

给水平面图

排水平面图

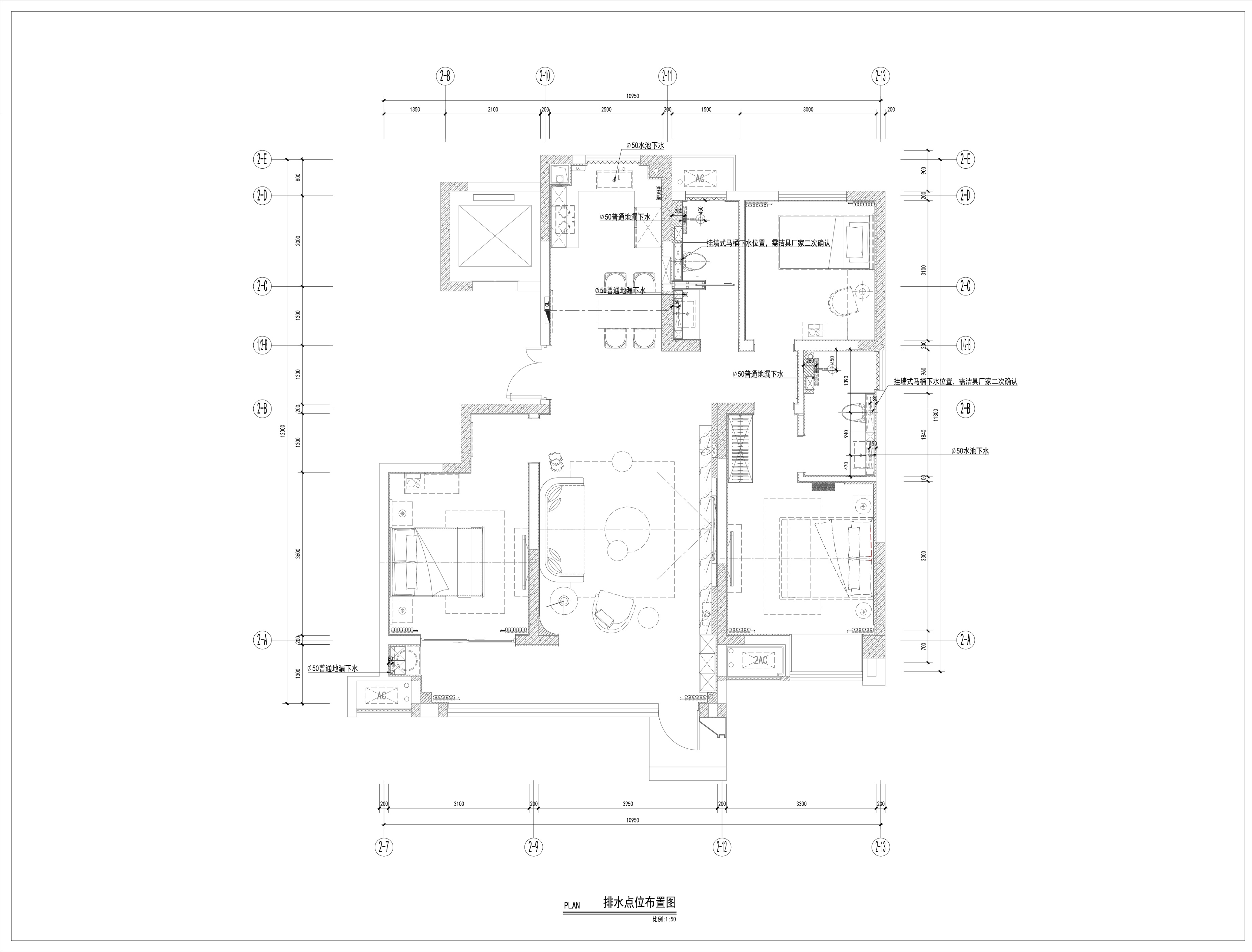
排水点位图

排水管道分布图

院子排水图

院子亭造型节点

院子亭造型节点

院子围栏节点

说明2

窗户1

窗户2
其次还有最开始的设计手绘也看一看吧

现代方案手绘图

参考地暖分布图
内容策划 / 米兰设计展
设计师:王高峰
未经允许,请勿转载