泉州·青庐别墅 | HOOP建筑设计
构建完整的生活场景,一家一世界
真正的家是一个完整的世界,是生活的天与地,是全场景的生活载体。

在与客户多次直接的沟通中,我们逐渐厘清了主人家居生活的全貌。除了一般的家庭生活行为以外,社交性和商务性的空间需求同样重要。总之,在这所宅子里,平衡家居生活的自在和社会责任的练达是设计必须关注的。

在这所宅子里,主人面对自然、世界、他人,甚至是面对神的态度,都要得以体现,真正成为安放身心的栖居之所。

内外空间立体融通,实现宅、院一体
住宅的一层和负一层安排家居生活的起居、就餐、娱乐、健身等功能,以及会客、茶室等社交生活空间。所有这些空间都围绕场地中心的院子布局。




特别是将茶室、会客部分空间与主体建筑相对脱开,留出近40平米的一个室外空间,增加了外部院落的层次和趣味。

同时整个宅院有三组垂直交通,一组是室内的楼梯,第二组是从院子导入住宅主入口的结合绿植的室外台阶,第三组是茶室与主体建筑之间连廊通到室外地面的楼梯。这三组楼梯,使内外交通形成完整的循环,使整个住宅的室内外空间融为一个整体,真正实现传统宅院中亭台楼阁融入自然的空间意向。



保留植物,延续家庭记忆
这所宅院是在客户生活多年的住宅旧址上的重建,一砖一瓦、一草一木都是亲情的积淀,都是温暖的回忆。

设计师保留下其中最具代表性的一颗老树,在新的茶室和会客厅的外墙上开出一个圆形的花窗,正对这棵老树,使这棵形态优美的老树成为茶室的对景,成为所有绿植中的焦点,成为整个院落的视觉中心,持续地传递出温馨的家庭氛围。



温润而坚实,财富之家的经典表情
在立面处理上,各层都有宽大的出挑,立面水平展开。同时结合主入口形成竖向体量,与水平意向达到平衡,整个建筑展现出稳重而舒展的姿态。

整个外墙使用两种石材,一种为意大利木纹石,应用在主体,另一种是凹凸相间的黄金麻,作为背景;出挑部分和所有墙体收边都使用金属铜板。石材的温润和铜板的坚实富贵相得益彰,使整个建筑形象成为财富之家的最经典的表情。


每一个家都有自己独特的质感,是主人最细微的生活情趣。每一个家都有自己独特的工艺,是主人最清晰的生活逻辑。每一个家都有自己独特的空间,是主人最舒展的身体姿态。每一个家都有自己独特的时间,是主人最从容的精神节奏。




负一层平面图

一层平面图

二层平面图

三层平面图

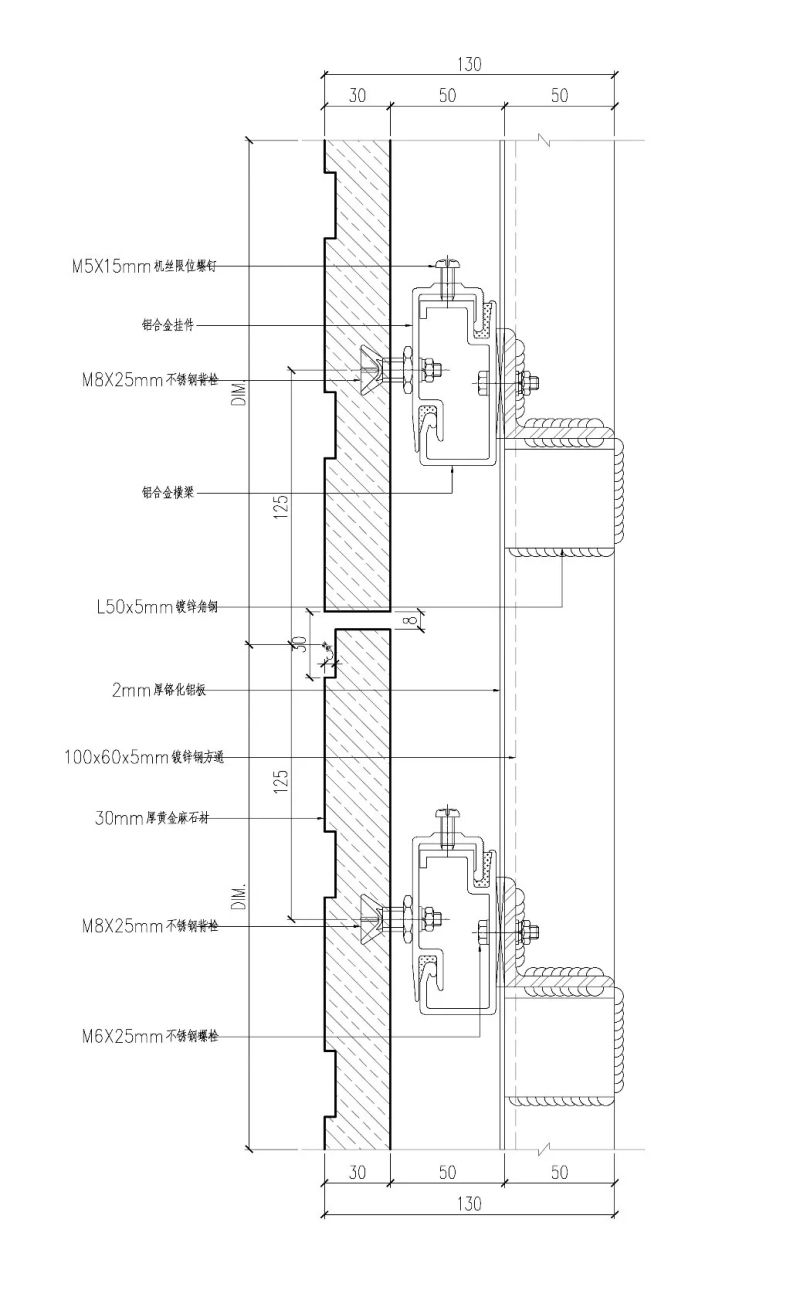
拉槽石材
细部构造

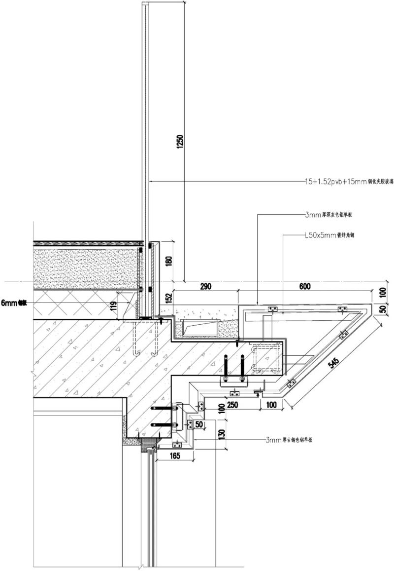
无框玻璃栏杆
细部构造
工程档案
项目名称丨泉州 · 青庐别墅
项目功能丨住宅
项目位置丨福建省泉州市
建筑设计丨深圳市霍普建筑设计有限公司
设计总负责丨王晓泉
设计主创丨吴小勇
设计团队丨王衡、苏妙丽、邓鹏
建筑摄影丨山东繁溪摄影工作室
内容转自:梅吟雪飞凤
©版权声明:平台尊重作品版权,精选作品均已注明作者和来源,网友分享作品属于原作者所有。
若涉及版权问题,请及时联系我们删除或修改。如需转载、链接、转贴或以其它方式使用本稿,须注明来源作者。