大家都知道,现在是一个看脸的时代,回农村建房也一样。很多人把房子看成自己的第二张脸,房子建的美观大气,自己脸上也更有光。今天给大家推荐10套高颜值别墅图纸,建成以后绝对能成为你们村一道亮丽的风景线,让你把面子赚足。
第1套:双入户门+大客厅+通透大窗,10×11米唯美新中式别墅,主体预算32万
占地尺寸:11.5m*10.8m
占地面积:115.4㎡
建筑面积:247㎡
总 高 度:10m
建筑情况:共设6室 2厅 2卫 1厨 1玄关 1储藏室 1走廊 2衣帽间 1书房 1阳台



第2套:大露台+庭院+马头墙,8×11米小面宽户型,主体预算40万
占地尺寸(不含庭院):8.7m*11.4m
占地面积(不含庭院):100㎡
建筑面积(不含庭院):283.1㎡
总 高 度:12.8m
建筑情况:共设5室 3厅 4卫 1厨 1棋牌室 2储藏室 1书房 1阳台 1露台 1庭院




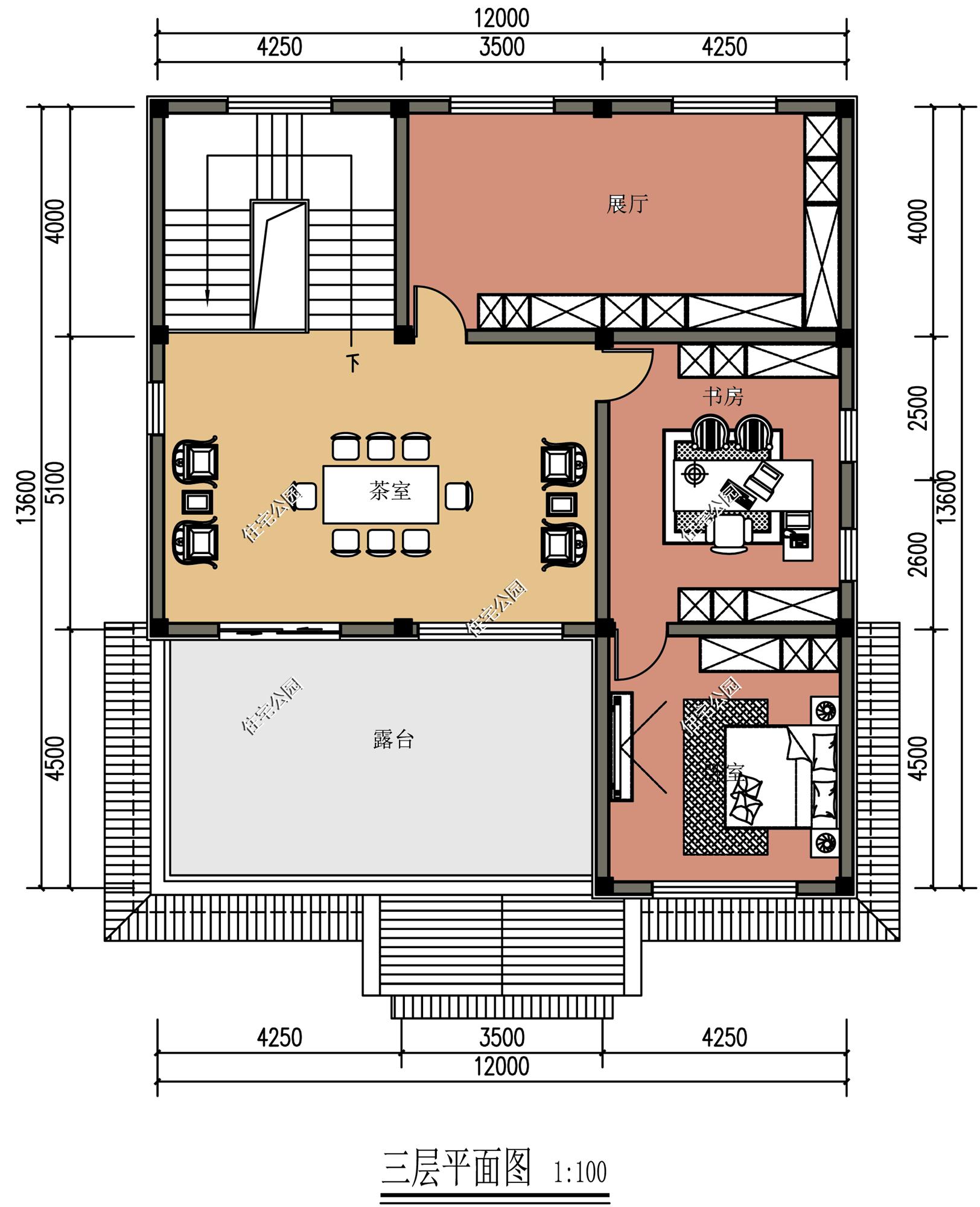
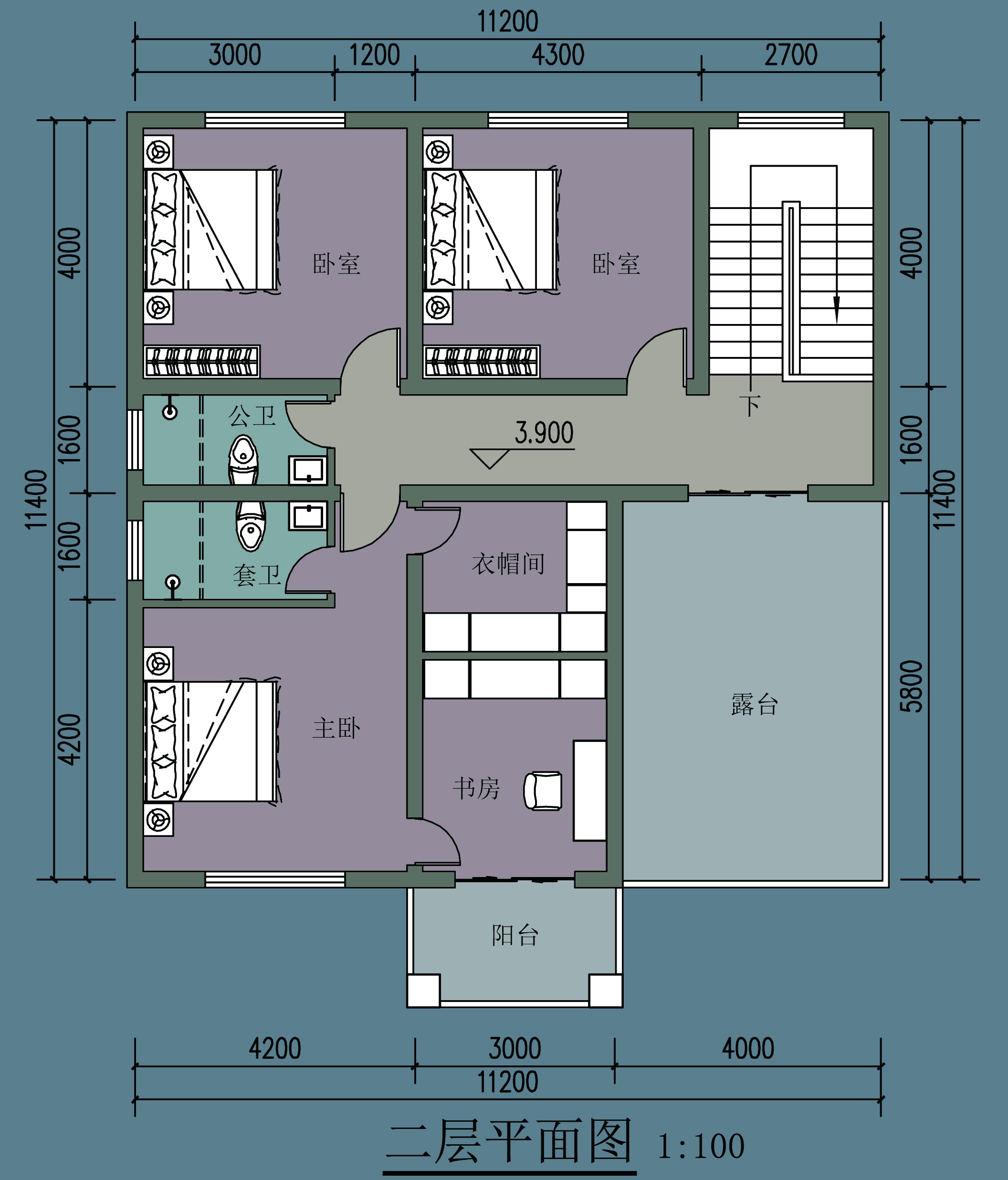
第3套:大露台+舒适套间+宽敞茶室,12×13米新中式美宅,主体预算60万
占地尺寸:12m*13.6m
占地面积:175㎡
建筑面积:488㎡
建筑高度:13.7m
建筑情况:5卧室 1客厅 1厨房 1餐厅 1起居室 2茶室 1书房 3卫生间 1展厅 1露台 1阳台




第4套:平屋顶+落地窗+舒适阳台,9×11米现代风别墅,主体预算25万
占地尺寸:9.1m*11m
占地面积:100.66㎡
建筑面积:208.77㎡
建筑高度:8.22m
建筑情况:共设4卧室 1客厅 1家庭活动室 1厨房 1餐厅 2卫生间 1储物间 1玄关 2阳台



第5套:挑空客厅+大露台+半开放式车库,12×14米现代别墅,主体预算40万
占地尺寸:12×14m
占地面积:148㎡
建筑面积:290㎡
建筑高度:9.3m
建筑情况:4室 2厅 3卫 1厨 1车库 1露台



第6套:双入户门+堂屋+南向阳台露台,12×14米新面貌现代美宅,主体预算40万
占地尺寸:12m×14.4m
占地面积:155㎡
建筑面积:297㎡
建筑高度:9.85m
建筑情况:设4室 2厅 4卫 1厨 1堂屋 2洗衣房 1杂物间 1起居室 1阳台 2露台



第7套:舒适走廊+餐客一体+大露台,10×8米美式风格别墅,主体预算20万
占地尺寸:10.18m×8.18m
占地面积:89.5㎡
建筑面积:155.5㎡
建筑高度:8.58m
建筑情况:设3室 2厅 3卫 1厨 1书房 1露台



第8套:双入户门+地下车库+大露台,11×11米方正美宅,主体预算50万
占地尺寸:11.2m×11.4m
占地面积:136㎡
建筑面积:341㎡
建筑高度:9.4m
建筑情况:6室 1厅 4卫 1衣帽间 1书房 1露台 1阳台 1车库 1娱乐室




第9套:对称外观+多卧室+老虎窗,12x12米浪漫法式乡村别墅,主体预算35万
占地尺寸:12m*12m
占地面积:128㎡
建筑面积:251㎡
总 高 度:9.3m
建筑情况:共设5室 2厅 2卫 1厨房 1起居室 1书房 1棋牌



第10套:挑空客厅+多边形采光窗+多卧室,11×13米高品位别墅,主体预算36万
占地尺寸:13m*11.4m
占地面积:142.48㎡
建筑面积:265.26㎡(不含阁楼)
建筑高度:10.8m
建筑情况:共设6卧室 1客厅 1厨房 1餐厅 4卫生间 1书房



想看更多农村别墅图纸,可以关注头条号:住宅公园。