
济南市,简称“济”,别称“泉城”,素有“四面荷花三面柳,一城山色半城湖”的美誉。是国家历史文化名城、首批中国优秀旅游城市,史前文化龙山文化的发祥地之一

门厅
The lobby
门厅起始素色的仿水磨石砖地面和金属镂空墙面结合在一起形成了干净简约的室内空间。在视觉与时空的旅行之间,在理性解析之外,解读空间的“感性之美”。


沙盘区
Sand tabledistrict
沙盘区拱形吊顶给人静谧的幽深感,如一叶扁舟卷画帘,把臂同游。上方的艺术吊灯行云流水般清透,有机形状和自然形态,相互作用,畅游无束。




洽谈区
Negotiate area













效果图




图纸呈现

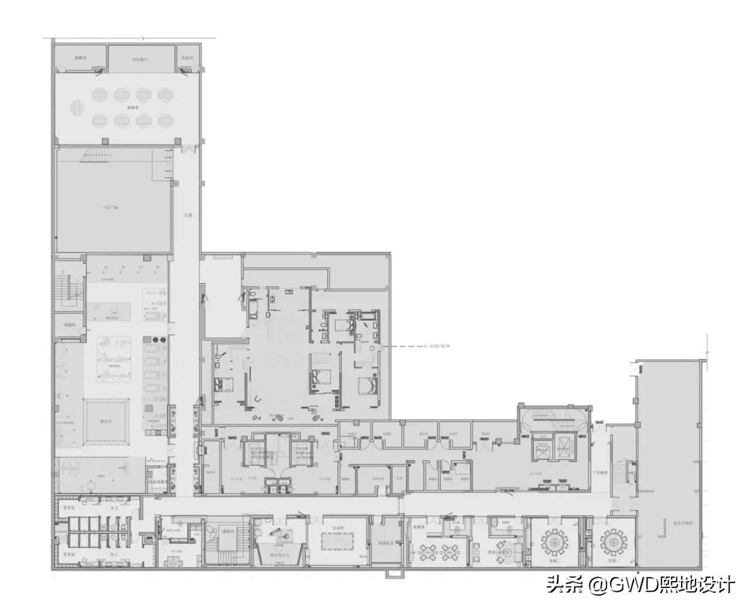
地下会所平面图

一层平面图

本案位于湖南省长沙市岳麓区,地理位置优越,附近拥有学校、医院、商圈等配套建筑,且靠近梅溪湖等公园林地,地域优势突出。
设计旨在打造以空间全感体验为核心,地域性、传承性、独特性相互交织的新型空间。
设计构思的 起始点是呈现出对生活的热爱 ,再 结合旭辉小熊IP 的故事叙事线,通过人文艺术性的审美体验,打破建筑中惯常的冷漠感与隔绝感,使之回归生活的本质,为空间融入自然体验。

1.品牌与艺术相融
空间整体呈规则的对称型,平衡了空间的场域和人的气场。
前厅设计遵循简洁原则,高大宽敞,展现当代潮流。同时加入旭辉小熊IP雕塑作为点缀,调和空间的距离感,增加活泼气息。




2.塑造生活的一体两面
咖啡体验区以棕色为主色调,设施精美优雅。高大整齐的展柜,以简约的线条,强调功能属性,拉高视觉体验感。宽敞通透的落地窗使室内与室外完美融合,人们在和美景的对话中品悦生活。
临窗而坐,参观者不仅可以小酌一杯,也能与三五好友洽谈。伴着夕阳西下的余晖,时间的脚步也仿佛在此放慢。






鲜花既是人们表情达意的工具,也是对生活仪式感的追求。在花艺体验区中,人们不仅可以置身于花的海洋,还能体会在网红氛围场景中打卡的乐趣。柔和多变的灯光,拉近了建筑与人的距离。
让人们身处于鲜花的簇拥中,从喧嚣中争夺对生活的热爱。在艺术中寻找自由的表达,在秘境中探索纯粹的光芒。

3.源于初心的自由
设计满足了人们对于空间体验感的高度追求。以自由流畅的动线处理,明净的大体量玻璃外墙,勾连起室内外的联系,顺应人们对自然的亲近心理。



再用富有艺术气息的皮质座椅,红色的吧台椅,赋予空间满满的时尚感与现代感。
冲突与和谐,华丽与朴实,往昔与现代,都是建筑在无声中演绎出的丰富乐章。


4.色彩与形态的穿插衔接
吊顶采用金属质的装饰物,减少了上方环境的空旷感,使空间更加紧凑。装饰物别致而有条不紊的纹理如同凌空绽放的花簇,在光与风的舞动中上演光影的斑驳与变换。




螺旋形的楼梯延伸了视觉感,并且为以直线为主的空间增加了更多流动性。跳脱的红色与周围的色彩形成鲜明对比,丰富了空间层次。
点缀其间的艺术挂画,令人们在有限的空间中体会无限的美之律动。



儿童活动区的小熊装置,以亮丽的色彩和懵懂的形态,增加了空间的趣味性。
当参观者踏入这里,便立刻会被空间中可爱的小熊形象所感染,无论是大人还是小孩,都能在这里体会到童真与美好。



一楼平面图
