以前人们都是为了有个能生活的房子就行了,建房子都是参考别家建成的,或者施工队咋样建就成啥样,家家户型基本一样;现在人们的要求高了,不仅要求户型好而且外观还得漂亮,而且还得宽敞,既可以网上找户型,也可以专门让人设计。今天看看这三款农村三间三层自建房图吧,不仅布局好,还宽敞漂亮有特色。
第一款:农村三层楼房设计图纸及效果图
图纸介绍:本户型为三层三间别墅设计方案,简欧风格,带屋顶花园,蓝色屋顶显得清新脱俗,宽大的窗户提供足够的采光,视野极佳。室内布局的功能区域划分明确,动静分离。

别墅效果图展示
占地面积:13.2m*15.3m,201平方米左右;
建筑层高:三层;
建筑高度:12.51米(含屋顶);
设计功能:
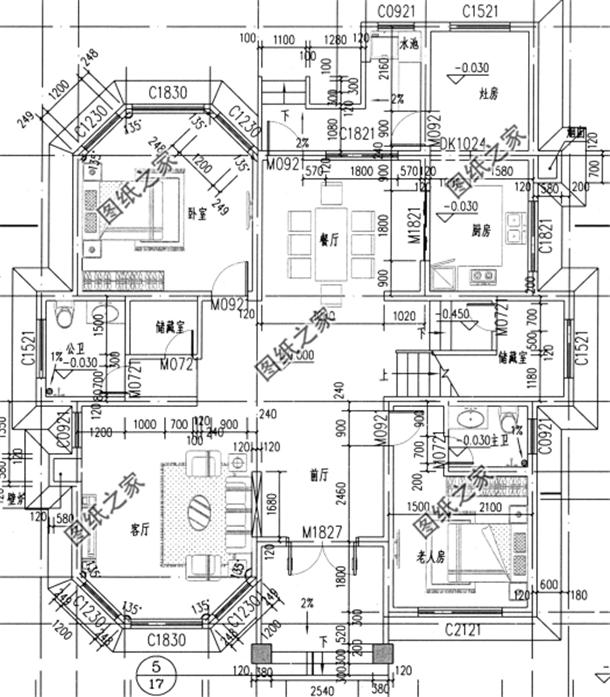
一层户型展示:前厅、客厅、老人房、卧室、储藏室x2、厨房、餐厅、卫生间、仓库
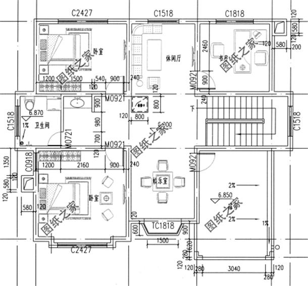
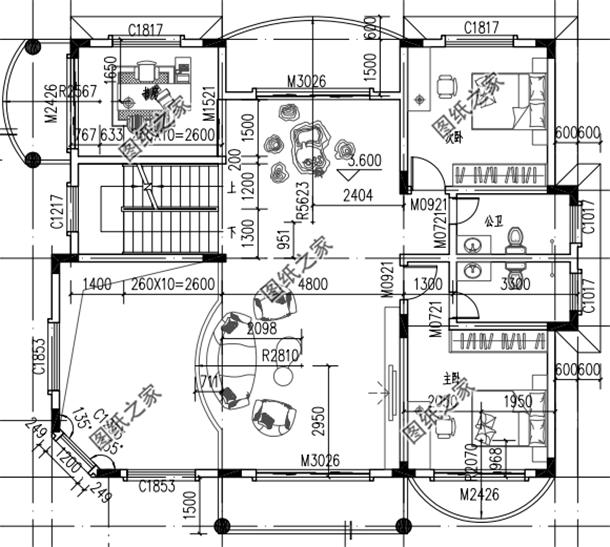
二层户型展示:小厅、棋牌室、主卧x2、衣帽间、卧室x2、卫生间、阳台
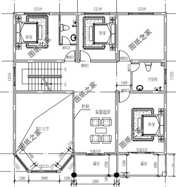
三层户型展示:休闲厅、书房、卧室x2、卫生间、娱乐室、露台;

别墅一层户型图展示

别墅二层户型图展示

别墅三层户型图展示
第二款:带车库三间复式三层楼房设计图
图纸介绍:本方案为带车库三间复式三层楼房设计图,外观精致、大方,配色比较好看,户型功能齐全、实用。

别墅效果图展示
占地面积:12.7m*11.8m,150平方米左右;
建筑层高:三层;
建筑高度:12.70米(含屋顶);
设计功能:
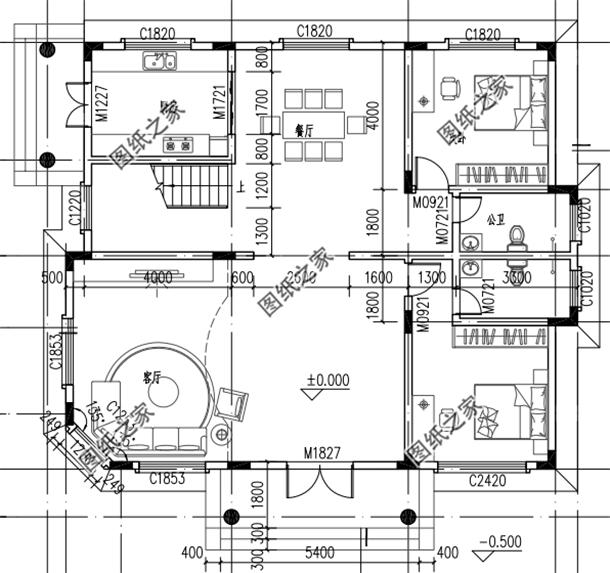
一 层:过厅、客厅、主卧(带卫生间)、卧室、娱乐间、卫生间、车库;
二 层:客厅上空、起居室、主卧(带卫生间)、卧室x2、书房、卫生间、露台x2;
三 层:起居室、影音室、书房、卧室x2、卫生间、露台x3;

别墅一层户型图展示

别墅二层户型图展示

别墅三层户型图展示
第三款:最新农村三层楼房设计图纸,客厅中空
图纸介绍:最新农村三层楼房设计图纸,客厅中空,采用暖黄色为主色,搭配砖红色坡面屋顶,温馨自然,四面采用多窗设计,室内采光效果极佳。

别墅效果图展示
占地面积:14.4m*12.9m,一层占地160平方米左右;
建筑层高:三层;
建筑高度:12.9米(含屋顶);
设计功能:
一 层:客厅、厨房、餐厅、卧室(带卫生间)、卧室、卫生间;
二 层:客厅上空、客厅、卧室(带卫生间)、卧室、书房、卫生间、阳台;
三 层:家庭娱乐厅、健身房、卧室(带卫生间)、卧室、卫生间、大露台、阳台;

别墅一层户型图展示

别墅二层户型图展示

别墅三层户型图展示
以上就是农村三间三层自建房图,不仅布局好,还宽敞漂亮有特色,你更喜欢哪一款?本文由图纸之家官网原创,欢迎关注,带你一起长知识!