"枯藤老树昏鸦,小桥流水人家,古道西风瘦马。夕阳西下,断肠人在天涯。“这是马致远的著名小曲,虽然作者抒发的是漂泊天涯的旅人的愁思,但是在现在的人看来却有几分美好,甚至那些向往返璞归真、回归田园生活的人更加羡慕那种”小桥、流水、人家......的生活。

在农村,好山、好水、好景色,我们还可以在自家宅基地上建一座农家小院,不需要多么奢华,也不需要什么艺术装饰,就像上面这座小房子,有前庭后院,也有猪圈和鸡舍。前院弄个小菜园,每天不用为“今天吃什么”发愁,多余的蔬菜还可以喂喂鸡、养养鸭,生活就是这么自在。
立面图:

从立面图来看这座乡村小墅,房屋呈轴线对称,坡屋顶和平屋顶相结合,建筑语言丰富,四面开窗,日照率充足,采光好。

剖面图:此住宅可独栋可双拼,适合家有兄弟两个的建造。
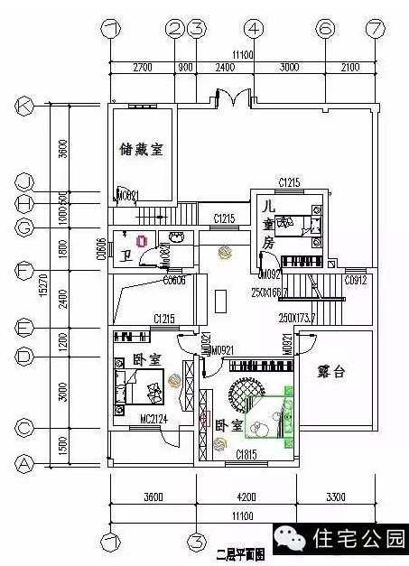
平面布局图:
从单户来看,它占地11.1X15.27米,南侧设有车库、客厅和老人房,北侧是餐厅、厨房和卫生间,中间设有天窗,通风换气、空气流通。
二层2卧室、1儿童房、1卫生间、1储藏室、1阳台、1露台,设备齐全。
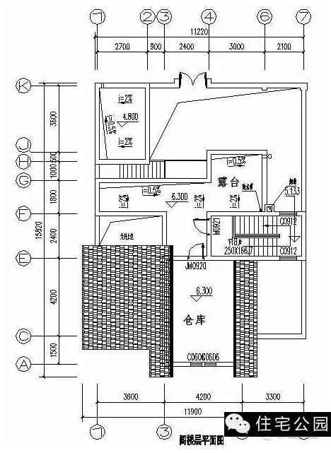
阁楼有露台和仓库,空间利用率高
屋顶平面图:

这样的农家小院你喜欢吗?大家可以各抒己见、畅所欲言!还可以根据图片右下方水印寻找更多图纸。