很喜欢这个家的采光,哪里都是亮堂堂的。当然墙面大量留白也起到了点亮的作用。超爱阳台的多彩配色,呈现出满满活力。餐厅的龙猫手绘墙让我仿佛一下子回到了那些年追动漫电影的纯真时光。原木家具,个性花砖,精致壁灯......哪里都做了精心的搭配,值得参考。
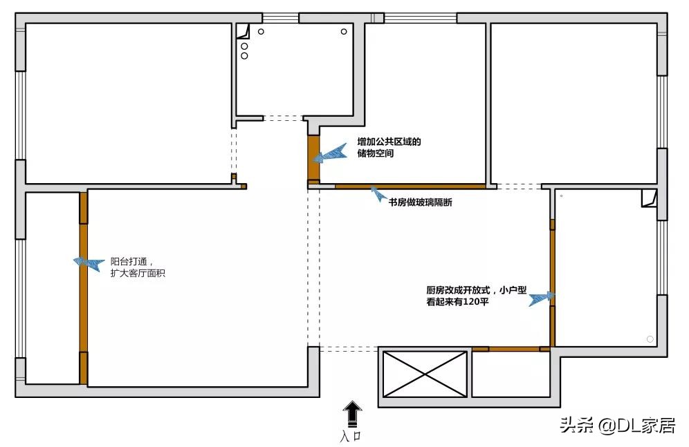
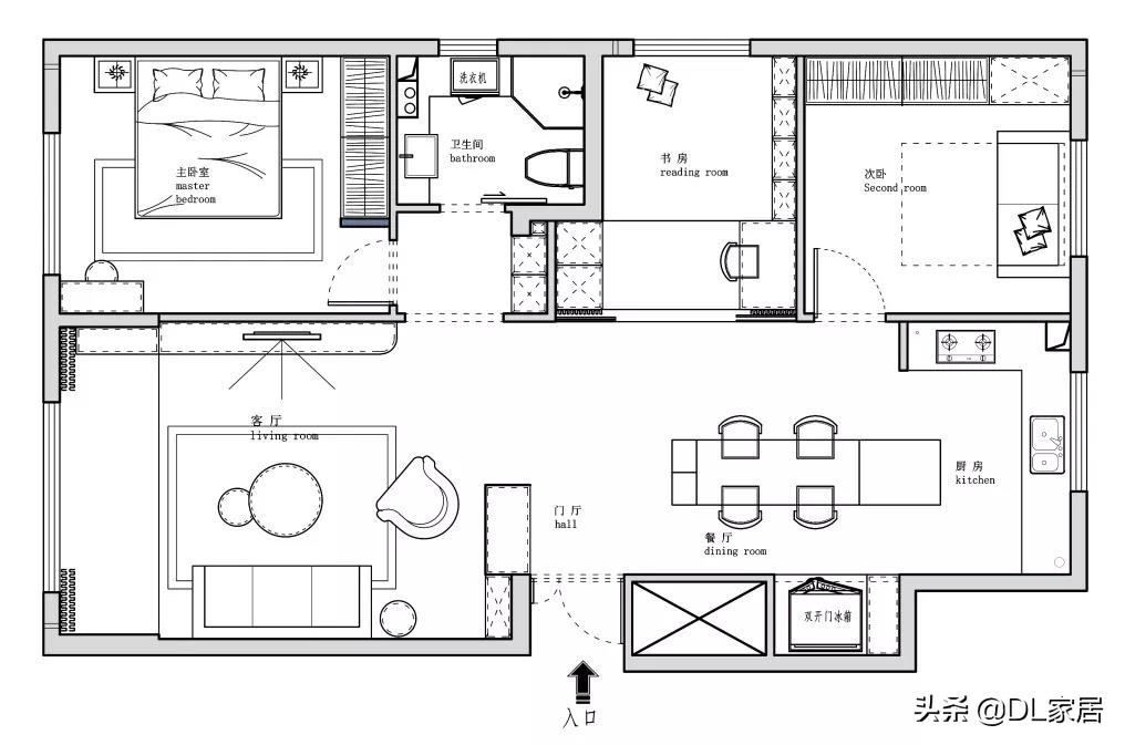
平面布置图


▲改造后,餐厨开放式布局,阳台打通融入客厅,书房采用玻璃门做隔断,整个空间看起来更加通透明亮,实用性也大大加强。
客厅


▲客厅背景墙大量留白,因为阳台被打通,所以整个屋子显得特别亮堂。浅灰色的布艺沙发一看就非常柔软,各种温馨的抱枕也点缀得恰到好处。
阳台


▲阳台也太美了吧!在墙面、地面、顶面刷上了彩漆,打造出了一个超艺术的休闲空间。暖黄色的休闲椅,小巧实用的书架已经到位,只等你来享受舒服的阅读时光了。
厨房


▲开放式厨房的颜值也特别高,通过一个中岛台和餐厅进行隔断,还兼具储物功能。纯白+原木+个性花砖的搭配,真的十分吸晴。
餐厅


▲被餐厅里的这面龙猫手绘墙惊艳到了!小时候最爱看的动画电影,回忆满满。餐桌和中岛台属于定制款,清新的原木风配上这浓浓绿意,真的好有大自然的感觉。
主卧


▲主卧设计搭配都比较简约,在这里可以寻找到最极简的舒适感,回归内心的本真,享受最放松的生活状态。


▲看到这木地板的纹路,就知道这绝对是原生态的,浅色 基调下搭配这种温润的木色家具,最最合适了。
书房


▲餐厅旁边就是小书房,通过黑框玻璃门来做隔断,里面依旧是舒适的原木风,清新到了心底。榻榻米组合收纳柜、书桌的设计,大大提高了空间利用率。
卫生间


▲卫生间窗边位置设计成了洗衣区,洗手盆下打造了充足的储物空间,墙面彩色花砖简直美爆,地面的六边形砖铺设得也十分有个性!
关注我~每日更新~