
石材干挂工艺,主要通过型钢横竖龙骨及挂件,将石材形成墙面,由于内部没有采用粘接材料,没有湿作业,可以提高工程质量,加快施工工期。目前大部分的公共空间的墙柱面均采用干挂工艺。
石材墙面干挂,由于需要固定在基层墙体,对于不同的基层墙体材料内部的工艺做法不同,墙体的高度不同,基层的龙骨等做法也不同。
今天跟大家聊一聊墙面石材干挂的工艺。
01.
基本构造


02.
工艺流程
1、 施工工艺流程
施工准备→放线弹线→埋板安装→钢骨架制作安装→石材安装→修理保护。
2、 主要施工方法
① 施工准备:
a.现场根据设计图纸,进行测量放线,根据测量结果进行深化图纸的绘制。
b.进行石材排版、编号,确定下单表,准备石材加工及供应。
c.基体的处理,对基体墙体进行垂直度、平整度检查,必要时进行凿除、修整。

② 放线弹线:
根据设计要求在地上放样并弹出骨架、饰面轮廓线和墙上水平基准线,并放好各部位的垂直槽钢线。
③ 埋板安装:
按照竖龙骨槽钢位置,确定埋板位置,在混凝土梁、墙上用膨胀螺栓固定埋板。
建议采用5-8mm厚钢板用φ10金属膨胀螺栓固定,埋板上下间距不宜大于3000mm,横向间距同竖龙骨间距,一般应小于1000mm。

④ 钢骨架制作安装:
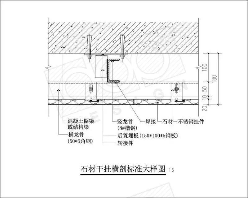
需要安装钢骨架的墙面按照所弹的分割线合理布置钢骨架的竖龙骨,间距一般控制在1000mm左右。竖龙骨一般采用槽钢,竖龙骨与埋板四边满焊连接。
横龙骨采用镀锌角钢,间距视石材规格而定,与竖龙骨满焊连接,安装前根据石材规格在角钢一面预先打孔以备挂件固定用。
横龙骨水平偏差不宜超过3mm,钢骨架经验收合格后将所有焊接部位防锈处理。

⑤ 石材安装:
a.在钢骨架上插固定螺栓,镶不锈钢或铝合金固定挂件。
b.根据设计尺寸,将石材固定在专用模具上,进行石材上、下端开槽。开槽深度15mm左右,槽边与板材正面距离约15mm并保持平行,背面开一企口以便干挂件能嵌入其中。
c.用AB结构胶嵌下层石材的上槽,插连接挂件,嵌上层石材下槽。
d.临时固定上层石材,镶不锈钢挂件,调整后用AB结构胶固定。
⑥ 修理保护:
用珍珠薄膜盖住安装好的石材墙面,保证地面以上 2m 范围均覆盖好,进行成品保护。
03.
重点控制及主要部位做法
1、 关于龙骨规格大小、间距以及石材干挂墙面的基层尺寸
石材干挂墙面的竖龙骨规格一般采用5#-8#槽钢,决定槽钢的规格一般跟槽钢与墙体连接的固定点距离,也就是固定埋板的上下间距有关系。横龙骨的规格一般与竖龙骨的间距、以及石材的板块尺寸有关系。
具体规格可以通过计算得出,一般按照经验,可以按照以下数值:埋板上下间距不大于2.5m,竖龙骨可选用5#槽钢,若石材厚度为30mm以上。

埋板上下间距在3m-4m间,建议选择8#槽钢;竖龙骨横向间距为1米,横龙骨竖向间距在1m内(石材板块也为1m)横龙骨可采用50角钢。
石材干挂墙面的基层尺寸,按照横竖龙骨的规格、连接方式,一般可达到80mm-200mm左右,具体可以参照例图。






2、 室内石材干挂墙面,由于石材种类不同,排版分格时要考虑石材的特性,一般花岗岩类石材质地坚硬,强度较高,板块可以加大。大理石强度差,容易断裂,板块尺寸不宜大于1M2,必要时背面采用加强肋加固。
石材的厚度不宜小于20mm,若墙面高度高于4米,建议石材厚度不小于25mm。大理石类石材开槽后为加强挂件部位强度,可以在开槽部位背面用结构胶粘贴加固石材。
3、 若墙体没有混凝土圈梁,结构梁之间距离大于4米,必要时采用穿墙螺栓固定埋板,在中间部位增加连接点。

4、石材挂件一般位于两个石材板块之间,挂件的上下短槽刚好固定两个板块,对于底部、顶部以及特殊造型部位,可采用挑件固定石材。


室内石材墙面干挂,从工艺讲实际也应该属于石材幕墙的一部分,很多的工艺要求做法也基本相同,只是室内石材干挂所受到的风荷载的影响较小,一般干挂的墙体高度不高,钢骨架做法相对幕墙要简化一些。
目前大部分的做法还是采用这种钢骨架焊接、挂件安装的方式,可能随着工艺的进步,也会像室外石材幕墙一样,采用单元式或工厂装配式的工艺。
好了,今天的文章就聊到这里,如果你对墙面石材干挂有更多看法和经验,欢迎留言探讨。