农村建房是随着大家钱包鼓起来后,对改善居住环境的迫切需求。如今要问哪种结构最受大家欢迎,恐怕一时难有定论。但是轻钢结构以其优良的性能,超短的建设周期,在如今建房浪潮中异军突起却是不争的事实。

今天的投稿来自河北的杨先生,他同样在建房时选择了轻钢别墅。让我们一起去看看吧。
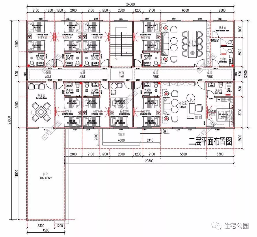
既然要建房当然要建一栋让自己满意的房子。如何保证房子让自己满意?当然是先从图纸开始。

从平面图我们可以看出,杨先生建房不止是要居住,更可以以后办公洽谈业务使用。工作生活两不误,极为便利。

二层客房都是标准间的配制。图纸已经准备妥当,然后依图做好房屋基础,

自己做好房屋基础,这时轻钢主材就可以入场了。

主材到场便可以立即开始框架搭建。首先是一层框架。


一层完成接着搭建二层,就和搭积木差不多,施工很快。

二层完成,就可以开始搭接屋顶龙骨。

屋顶结构成品看着简单,其实是全屋最复杂的结构之一。


搭建过程也较为复杂。

终于搭建完成,让我们看看最终效果吧。

完成之后只能看到龙骨平整规律,但是其中施工的辛苦却是看不到的。


屋顶框架完成,随后覆瓦。本例中选用沥青瓦,施工快捷方便,防水性与耐候性较好。

主体龙骨框架完成,再来让我们看看各处细节。



龙骨施工完成接下来自然是开始墙体施工。

首先在龙骨上钉立一层欧松板。

接着在欧松板上覆盖一层呼吸纸。


然后开始外墙保温施工,装钉保温板——挤塑聚苯板。

今天的照片较多,可以给大家做个全面展示。


可以看到为了节省工期,施工队两路人马,一遍钉欧松板一遍装保温板。大大的提高了施工效率。

外墙保温施工完成,就可以考虑外墙装饰了。


在此房主选用的外墙挂板。外墙挂板具有施工快捷、抗腐蚀性好等特点,是性价比较好的外墙装饰材料。


外墙装饰完成,房屋已经初具模样。

在蓝天白云的映衬下,是不是更加好看了?

为了节省工期,在进行外墙装饰的时候可以同时开始房屋内保温施工。

内保温填充岩棉卷材。

岩棉由于材质特性,具有一定的阻燃与隔音性能。

填充好岩棉,再钉一层石膏板。

这里选用石膏板防火性更佳。

石膏板的使用可以一定程度补足轻钢房屋防火性不足的缺点。建房子就是图一个安全不是?
如此一栋二层轻钢别墅即告完成。让我们再来看看整体效果吧。

房屋建完,我们来说说大家最为关心的房屋造价。首先房屋主体按建筑面积全包给施工队,包人工,包外墙,不包基础,不包运费,毛坯造价是1300元每平。加上运费和基础折合1450元每平。房屋造价总计110万。

最后和效果图做个对比,这还原度绝对高达95%以上吧。

怎么样?你会愿意用110万建这样一栋轻钢别墅吗?
关注本号,每天都有新户型,还有乡邻晒家,建房省钱小妙招一手掌握。