项目面积 | 135㎡
项目类型 | 商业空间
主创设计 | 胡哲·全志鑫
设计&施工单位:广州本家建筑空间设计有限公司

世俗纷扰,不如觅一处静谧之所,赏春夏秋冬之乐本案旨在打造一处立繁华都市,却怡然自得的私人会所。设计巧妙的将金属、大理石、白漆融合于一体,摆脱了以往高档会所庸俗的刻板印象。空间整体以白色为主,配以木质饰面,自然典雅;水波纹铜质不锈钢吊顶,打造镜像世界,如同盗梦空间;黑与白的交织,是科技与自然、时间与空间的碰撞。

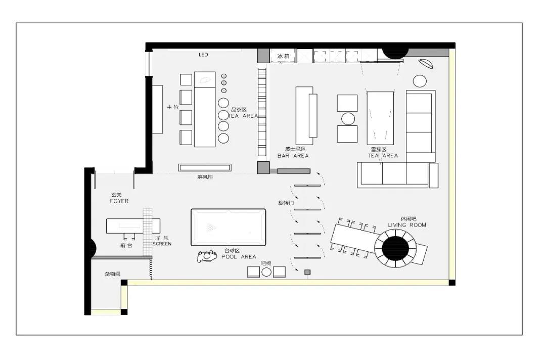
空间按功能分为:台球厅、休闲吧,雪茄区、品茶区、威士忌区;平面布局动态流线合理,各功能区既相互连接又互不干扰。

接待处的设计表达了“解构主义”的态度,金属架层屏风的力量感与大理石结构块体交织,仿佛置身虚与实交接;意在解构、叠加、重组、打破生活的桎梏。大理石,坚毅有质感;金属,单薄有温度,二者结合,时尚感up,牢牢地吸引目光引人入胜。


台球桌选用与黑与红的撞色的设计加上金色的腰线镶嵌,沉稳大气更显生活态度;鲜艳的红色台球桌面更加凸显运动的激情。


水纹金属板吊顶,简约大气;格纹地毯搭配灰色皮质沙发,尽显轻奢态度。高级灰色系+金属质感,营造优雅迷人的氛围。


雪茄区以深灰色系皮革质感沙发配合黑色光面大理石台面,尽显沉稳大气质感,金色水波纹吊顶为空间增添了一笔艳丽。

整个空间采用去除主光处理方式,以辅助照明为主,营造了一个私密放松的交谈空间。

威士忌区突出都市时尚气息,吊灯采用与顶面相同的黄铜材质,如同从水面滴落的水滴,增加了空间的联动性。

多开间的黑色旋转门高级感十足,在分割空间的前提下,也增加了视线联动性。

休闲区以大理石桌面横贯整个空间,突破人与人之间的界限,金属钢架环绕柱体延伸到顶端,拉伸了视觉高度;大理石水墨般的花纹与水波纹的吊顶相呼应,为较为刚毅的空间增加了如水一般的温润。


在黑白灰为主色调的空间中,橙红色的单椅如奔涌而来的血液,为沉静的空间注入活力。


品茶区透明玻璃珠帘如雨滴落下,营造雨中品茶怡然自乐之感。实木茶桌、藤编落地灯带有泥土中散发出的芬芳,平淡、纯粹、却富有无尽的生机。

效果图与实景图对比

上:效果图/下:实景图

上:效果图/下:实景图

上:效果图/下:实景图

上:效果图/下:实景图

金属波纹吊顶灵感来源于日出时的海面,迎着朝阳,充满着朝气与活力


建筑脚手架是金属层架的灵感来源,将建筑解构回归原始,就如我们的脊梁,单薄却又力量;金属层架镂空的设计,分割了空间也在视觉上起到了沟通的作用。

左:胡哲/右:全志鑫


想查看其他精选案例,请点击了解更多